
|
建房是大事,千萬急不得,建房之前一定要選好戶型,如果自己沒有什么好的想法,看看今天這幾款! 戶型一
建筑面積:230.11m² 一層 尺寸:11.189×12.089m 一層設有臥室(含衣帽間),廚房,餐廳,客廳,堂屋,衛生間,儲藏室,門廊 二層 尺寸:11.189×12.089m 二層設有主臥(含露臺),次臥×2,客廳,露臺,公衛 戶型二
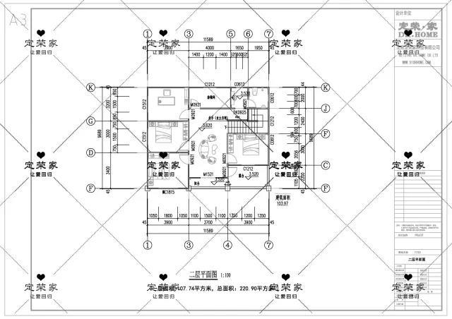
建筑面積:220.90m² 露臺面積:8.46m² 一層 尺寸:11.589×9.689m 一層設有臥室,廚房,露臺,餐廳,客廳,衛生間,儲物間 二層 尺寸:11.589×9.689m 二層設有臥室×3,客廳,書房,雜物間,公衛,露臺 戶型三
建筑面積:238.60m² 露臺面積:18.84m² 一層 尺寸:11.911×9.911m 一層設有臥室×2,堂屋,儲物間,廚房,公衛,餐廳,客廳 二層 尺寸:11.911×9.911m 二層設有臥室×3,兒童房,公衛,客廳,露臺 戶型四
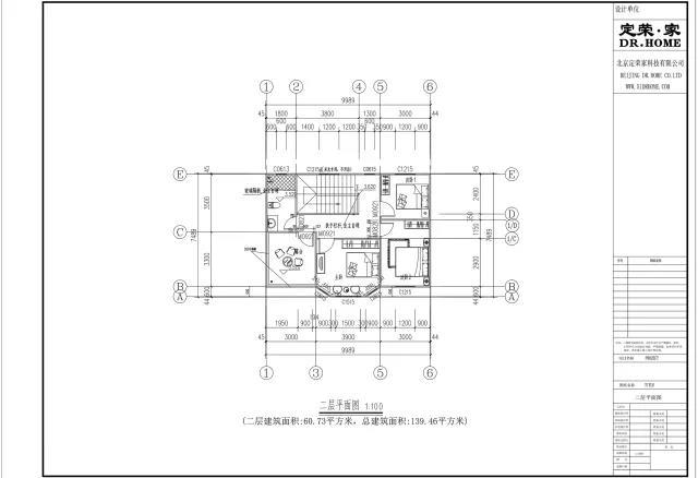
建筑面積:139.46m² 露臺:9.82m² 一層 尺寸:9.989×7.489m 一層設有臥室,公衛,客廳,廚房,餐廳,堂屋 二層 尺寸:9.989×7.489m 二層設有主臥,次臥×2,公衛,露臺 圖紙之家-專注農村別墅/自建房設計18年,集合國內200余位經驗豐富的設計師,被評為口碑最好的農村建筑設計公司! |

簡單實用二層雙拼樓房設計圖,造價30萬左右
占地:180平方米
8萬元二層農村房子圖片及設計圖,簡易二層小樓,占地50平米
占地:50平方米
帶車庫的新中式風格一層別墅設計圖,鳥語花香回家建房
占地:184平方米
帶獨立堂屋的農村自建房設計,二層別墅設計方案圖
占地:109平方米左右
最漂亮的一層平房圖片及設計圖,造價18萬左右,結構簡單易于施
占地:186平方米
90平方米小戶型自建三層房屋設計圖紙及外觀效果圖
占地:91平方米左右
歐式兩層別墅樓房設計圖紙施工方案,高端豪華外觀圖片
占地:138平方米
歐式大氣新農村三層別墅豪宅設計圖,外觀高端,對稱設計
占地:225平方米左右
農村四間三層豪華別墅設計方案圖,造型輕奢雅致
占地:200平方米
帶陽光房的二層簡歐別墅圖紙,戶型經典實用
占地:147.2平方米
二層半新中式別墅設計圖,農村自建24萬,帶庭院規劃設計
占地:140.68平方米
帶地下室三層別墅設計圖紙(含外觀效果圖),別墅設計方案
占地:134平方米
帶閣樓二層別墅設計圖,帶外觀效果圖片
占地:160平方米
新農村一層平屋頂簡單自建房別墅設計圖紙,全套設計
占地:130平方米
歐式新農村自建三層建筑施工設計圖紙及效果圖大全
占地:106平方米
140平米平屋頂二層新農村自建房設計圖,極簡主義設計 ,實用優
占地:143平方米
中式二層三合院設計圖紙含外觀效果圖片,大氣又實用
占地:216.04平方米
占地90平米四層超現代風別墅設計圖,享受高品質生活
占地:3.76平方米
帶地下室二層雙拼別墅設計圖,兄弟和睦又省錢,全家人都滿意!
占地:308平方米
130平米新農村自建房屋施工建筑圖紙及效果圖
占地:132平米
推薦:10套新農村自建房設計圖,2026年最新設計
閱讀次數:4825737次
100套鄉村別墅圖片大全,2026年最新設計
閱讀次數:2492203次
6款農村蓋一層平房的設計圖,10萬元就能建起來
閱讀次數:1852637次
這11個一層農村自建房別墅火爆了朋友圈!我最喜歡戶型十!你呢
閱讀次數:750268次
農村6萬元建一層小別墅圖,你敢相信嗎
閱讀次數:567686次
農村5萬塊就能自建房,6套普通房子設計圖分享,你沒看錯!
閱讀次數:419410次
8套農村漂亮三間平房圖片,非常適合在農村修建!
閱讀次數:411197次
農村自建房化糞池怎么做?附方案及施工過程
閱讀次數:391783次
農村一層三間平房設計圖,告別土氣養老房,讓人忍不住點贊
閱讀次數:350581次
新農村二層樓房圖片造價12萬,挑一套回家建房吧!
閱讀次數:349126次
