
|
很多人認為農村建房子都是照葫蘆畫瓢,誰家房子建得還行,叫包工頭去看看,建個一樣的就行了,根本沒有“設計”這個概念。 花了幾十萬重建的房子,卻還和幾十年前的房子一樣,實在是太可惜了!其實想要建一棟體面而又大氣的別墅,一份合理的農村自建別墅設計圖也是必不可少的!下面這13套新農村別墅,沉穩大氣有內涵,建房好戶型!
大氣實用的二層別墅
編號: DC0331 結構形式: 框架結構 主體造價: 38-43萬 開間: 16.2米 進深: 11.4米 占地面積: 177.43平方米 建筑面積: 424.29平方米 首層戶型:
二層戶型:
一 層:門廳、客廳(附觀景臺)、臥室(附衛生間)、2臥室、廚房、餐廳、衛生間 二 層:起居室(附觀景臺)、臥室(附書房,衛生間,陽臺)、臥室(附陽臺)、3臥室、衛生間 三層半農村大氣別墅
編號: DC0003 結構形式: 框架結構 主體造價: 40-50萬 開間: 11.7米 進深: 12.9米 占地面積: 120.1平方米 建筑面積: 316.66平方米 首層戶型:
一 層:玄關、客廳、臥室、廚房、餐廳、2衛生間、車庫(附儲藏間) 二 層:臥室(附衛生間,陽臺)、臥室、衛生間 三 層:臥室(附更衣間,衛生間,陽臺)、臥室(附書房)、臥室、娛樂室(附露臺)、衛生間 四 層:多功能廳(附陽臺)、露臺 三層帶屋頂平臺歐式別墅
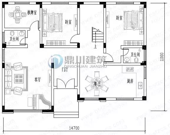
編號: DC0316 結構形式: 框架結構 主體造價: 44-50萬 開間: 14.7米 進深: 11.1米 占地面積: 154.95平方米 建筑面積: 487.39平方米 首層戶型:
一 層:門廳、客廳(中空)、臥室(附衛生間)、臥室、棋牌室、廚房、餐廳、衛生間 二 層:起居室、主臥(附書房,衣帽間,衛生間,陽臺)、2臥室、衛生間 三 層:健身廳、臥室(附陽臺)、臥室(附衣帽間)、2臥室、衛生間、陽臺 頂 層:露臺 三層大氣旋轉樓梯復式別墅
編號: DC0216 結構形式: 框架結構 主體造價: 35-40萬 開間: 12.9米 進深: 9.8米 占地面積: 124.19平方米 建筑面積: 337.42平方米 首層戶型:
一 層:門廳、客廳(中空)、2臥室、廚房、餐廳、衛生間 二 層:起居室、2臥室、棋牌室、衛生間 三 層:主臥(附書房,衣帽間,衛生間,陽臺)、臥室、洗衣房、衛生間、露臺 三層帶內院現代風格小別墅
編號: DC0307 結構形式: 框架結構 主體造價: 35-40萬 開間: 13.5米 進深: 14.7米 占地面積: 99.72平方米 建筑面積: 352.87平方米 首層戶型:
一 層:花園(內院)、2臥室、廚房、餐廳、衛生間 二 層:客廳、臥室(附書房,陽臺)、2臥室、衛生間 三 層:2臥室、衛生間、露臺 三層帶露臺歐式別墅
編號: DC0218 結構形式: 框架結構 主體造價: 35-42萬 開間: 11.8米 進深: 12.5米 占地面積: 134.94平方米 建筑面積: 360.63平方米 首層戶型:
一 層:客廳(中空)、臥室(附衛生間)、棋牌室、廚房、餐廳、衛生間 二 層:會客廳(附露臺)、多功能廳、臥室(附衛生間)、2臥室、衛生間 三 層:多功能廳、棋牌室、臥室(附衛生間)、2臥室、衛生間、露臺 復式三層旋轉樓梯別墅
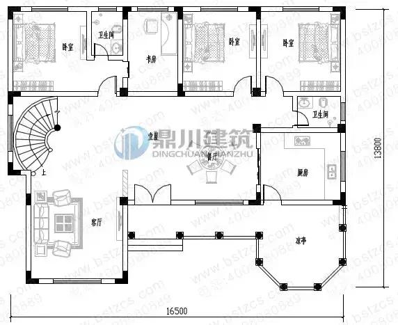
編號: DC0326 結構形式: 框架結構 主體造價: 50萬以上 開間: 16.5米 進深: 13.8米 占地面積: 229.61平方米 建筑面積: 486.15平方米 首層戶型:
一 層:堂屋、客廳(中空)、臥室(附書房,衛生間)、2臥室、廚房、餐廳、衛生間、涼亭 二 層:起居室(附露臺)、臥室(附衛生間)、2臥室、衛生間、露臺 三 層:健身廳、2臥室、衛生間、2露臺 三層復式豪華別墅
編號: DC0011 結構形式: 框架結構 主體造價: 50萬以上 開間: 15米 進深: 13.2米 占地面積: 165.47平方米 建筑面積: 548.51平方米 首層戶型:
一 層:客廳(中空)、臥室(附衛生間)、臥室、廚房、餐廳、衛生間 二 層:起居室、2臥室(附衛生間)、衛生間、露臺 三 層:主臥(附更衣室,衛生間)、2臥室(附衛生間)、露臺 漂亮的三層復式別墅
編號: DC0217 結構形式: 框架結構 主體造價: 35-40萬 開間: 11.94米 進深: 13.64米 占地面積: 150.77平方米 建筑面積: 398.05平方米 首層戶型:
一 層:客廳、休閑廳(中空)、臥室、廚房、餐廳、儲藏室、衛生間 二 層:主臥(附衣帽間,衛生間)、2臥室、衛生間 三 層:活動室、2臥室、書房、衛生間、露臺 四層帶露臺大氣豪華別墅
編號: DC0018 結構形式: 框架結構 主體造價: 50萬以上 開間: 11.1米 進深: 15.7米 占地面積: 158.52平方米 建筑面積: 543.98平方米 首層戶型:
一 層:客廳(中空)、臥室(附衛生間)、棋牌室、廚房、餐廳、衛生間、車庫 二 層:起居室、臥室(附衛生間,陽臺)、2臥室、書房(附陽臺)、衛生間 三 層:影音室(附陽臺)、臥室(附衛生間)、2臥室、書房(附陽臺)、衛生間 四 層:臥室(附衛生間)、臥室、娛樂間(附露臺)、衛生間、露臺 三層復式帶車庫歐式別墅
編號: DC0248 結構形式: 框架結構 主體造價: 45-50萬 開間: 15米 進深: 11.4米 占地面積: 151.84平方米 建筑面積: 383.9平方米 首層戶型:
一 層:玄關、客廳(中空)、臥室、廚房、餐廳、衛生間、車庫 二 層:休息廳、臥室(附衛生間,陽臺)、臥室(附陽臺)、臥室、衛生間 三 層:客廳(附露臺)、臥室(附衛生間,陽臺)、臥室(附陽臺)、臥室、衛生間、露臺 閣 樓:涼亭、儲藏間 二層帶閣樓小別墅
編號: DC0356 結構形式: 磚混結構 主體造價: 28-33萬 開間: 13.2米 進深: 11.3米 占地面積: 138平方米 建筑面積: 314.53平方米 首層戶型:
二層戶型:
一 層:走廊、門廳、客廳、臥室(附衛生間)、廚房、餐廳、衛生間、儲物間 二 層:起居室、臥室(附衛生間,陽臺)、臥室(附陽臺)、臥室、書房、衛生間 閣 樓:2臥室、儲物間 歐式四層豪華別墅
編號: DC0344 結構形式: 框架結構 主體造價: 50萬以上 開間: 13.2米 進深: 15.1米 占地面積: 179.10平方米 建筑面積: 703.30平方米 首層戶型:
二層戶型:
三層戶型:
四層戶型:
一 層:門廳、客廳(中空)、臥室(附衛生間)、2臥室、廚房、餐廳、衛生間 二 層:起居室、休息區(附陽臺)、臥室(附衛生間)、臥室(附陽臺)、2臥室、衛生間 三 層:起居室、臥室(附書房,衣帽間,衛生間)、臥室(附衣帽間,內陽臺)、臥室(附陽臺)、2臥室、衛生間 四 層:健身廳、臥室(附衣帽間,內陽臺)、臥室(附露臺)、書房、衛生間、露臺 在農村,一份合理的農村自建別墅設計圖,不僅能把房子建的更加美觀大方,全家人有面子,而且建筑配筋結構更安全同時又經濟適用,施工隊對照圖紙施工還能縮短工期,可謂百利而無一害! 圖紙之家-專注農村別墅/自建房設計18年,集合國內200余位經驗豐富的設計師,被評為口碑最好的農村建筑設計公司! |

鄉村20萬內三層別墅房屋設計圖,面積適中、戶型經典
占地:100平方米
農村2026新式好看又簡單的二層樓房設計圖,外形美觀,家用足夠
占地:200平方米
現代田園風格一層農村別墅設計圖效果圖,帶閣樓設計
占地:220平方米
帶地下室二層雙拼別墅設計圖,兄弟和睦又省錢,全家人都滿意!
占地:308平方米
新款漂亮農村三層別墅建筑設計圖紙帶效果圖片,3種戶型
占地:125平方米
經濟實用二層樓房設計圖紙,功能布局多,12×11米
占地:130平方米
兩層半雙拼別墅設計方案,超大露臺+歐式風格,好設計別錯過!
占地:175.8平方米
中國最好看的二層農村房子圖片及施工圖紙,20萬現代風格
占地:130平方米
80平方米二層房屋設計圖,造價10萬左右
占地:80平方米
大開間小進深的一層別墅設計圖,進深僅8.7米,獨立餐廚照樣美觀
占地:130.32平方米
140平歐式二層半帶露臺的獨棟別墅圖片,含全套設計圖
占地:140平方米
60多平三層現代風格別墅設計圖,小戶型平屋頂
占地:66.4平方米
陽臺封閉的簡約實用二層別墅設計圖,15x12.8米
占地:165平方米
農村大氣四層樓房圖片及全套設計圖紙,復式客廳旋轉樓梯
占地:143平方米
90平方米小戶型自建三層房屋設計圖紙及外觀效果圖
占地:91平方米左右
精致簡歐一層別墅設計圖,經典大氣百看不厭
占地:139.57平方米
三層獨棟別墅設計圖紙帶效果圖,全套施工方案(建筑圖+結構圖
占地:144平方米
新中式二層農村住宅設計圖,戶型方正,主體造價21萬
占地:135.81平方米
14米×10米農村二層小別墅自建房設計圖,外觀設計時尚美觀
占地:125平方米
雙拼豪華高端三層別墅設計圖,外觀效果圖大氣
占地:300平方米
推薦:10套新農村自建房設計圖,2026年最新設計
閱讀次數:4825737次
100套鄉村別墅圖片大全,2026年最新設計
閱讀次數:2492203次
6款農村蓋一層平房的設計圖,10萬元就能建起來
閱讀次數:1852637次
這11個一層農村自建房別墅火爆了朋友圈!我最喜歡戶型十!你呢
閱讀次數:750268次
農村6萬元建一層小別墅圖,你敢相信嗎
閱讀次數:567686次
農村5萬塊就能自建房,6套普通房子設計圖分享,你沒看錯!
閱讀次數:419410次
8套農村漂亮三間平房圖片,非常適合在農村修建!
閱讀次數:411197次
農村自建房化糞池怎么做?附方案及施工過程
閱讀次數:391783次
農村一層三間平房設計圖,告別土氣養老房,讓人忍不住點贊
閱讀次數:350581次
新農村二層樓房圖片造價12萬,挑一套回家建房吧!
閱讀次數:349126次
