
|
戶型使用灰色、白色、寶藍色搭配,色彩低調雅觀,門柱的造型頗具特色,二樓三樓均有露臺,適合放松休閑,觀賞美景,還能晾曬東西。一樓有挑空大客廳,空間開闊明亮,超大落地窗是該戶型的設計亮點,美觀時尚。
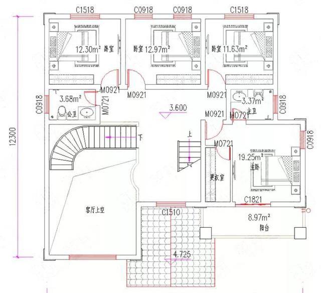
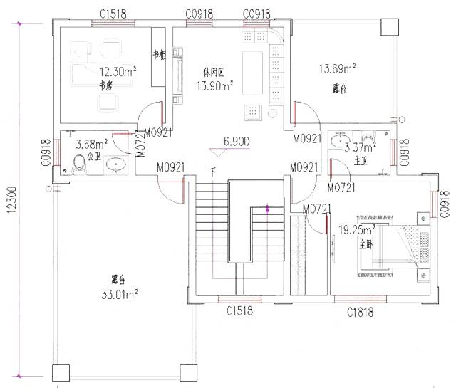
這款三層別墅設計圖開間進深13.1米×12.3米,采用磚混結構,占地面積147.43㎡,總建筑面積341.49㎡,建筑高度12.06米,主體造價大概32萬。一層設有2廳1廚2衛,二層設有4臥2衛1露臺,三層設有1廳1臥2衛1書房1露臺。
建筑平面圖展示
一層:車庫27.02㎡、玄關14.69㎡、挑空客廳19.36㎡、餐廳19.92㎡、廚房11.63㎡、臥室14.21㎡(帶私衛3.68㎡)、公衛3.37㎡
二層:主臥19.25㎡(帶露臺8.97㎡、更衣室、主衛3.37㎡)、臥室11.63㎡、臥室12.97㎡、臥室12.3㎡、公衛3.68㎡
三層:休閑區13.9㎡、露臺13.69㎡、主臥19.25㎡(帶主衛3.37㎡)、書房12.3㎡、公衛3.68㎡ 圖紙之家-專注農村別墅/自建房設計18年,集合國內200余位經驗豐富的設計師,被評為口碑最好的農村建筑設計公司! |

奢華歐式二層樓房設計圖,入戶設有玄關,一層大窗設計
占地:190平方米
農村三層樓房設計圖及效果圖,復式磚混結構
占地:148平方米
二層小別墅設計方案圖,平頂設計帶cad施工圖和外觀效果圖
占地:147平方米
三層農村自建別墅設計圖紙及效果圖,占地110平米,外觀精致又大
占地:110平方米
125平方米新農村三層自建別墅施工設計圖,13x10米
占地:125平方米
新農村兩層帶露臺自建房設計圖,造價30萬內
占地:170平方米
四層別墅豪宅外觀效果圖及全套施工圖,高端歐式風格
占地:176.97平方米
新徽派農村三層小別墅設計圖,白墻黛瓦中式風,12米乘11米
占地:115.46平方米
農村三層兄弟雙拼別墅設計圖及效果圖片,14X12米自建戶型
占地:154平方米
新農村四層獨棟復式別墅設計圖,設計豪華時尚
占地:140平方米
三層蓋房子歐式挑空客廳別墅設計圖,外觀漂亮戶型實用
占地:多種戶型
預算30萬三層樓房設計圖含效果圖,戶型經典
占地:125平方米
帶地下室的農村三層雙拼別墅設計圖,復式戶型,面寬23米
占地:261.6平方米左右
新款鄉村二層半別墅設計圖紙帶效果圖,三層別墅外觀圖片大全
占地:108.795平方米
新中式一層合院別墅圖,15米×15.8米,主體造價低至15萬
占地:183.08平方米
135平鄉村三層復式樓房設計圖,自建房推薦
占地:135平方米
簡易農村別墅房子設計圖,好看實惠,施工也簡單
占地:200平方米
不帶廚房的一層別墅設計圖,三臥二廳超巴適,室外獨立廚房
占地:120平方米
簡約精致的二層房子設計圖,農村自建經濟實用
占地:89.76平方米
占地百平三層歐式別墅設計圖,回到家鄉建一棟,大氣美觀有內涵
占地:99.94平方米
推薦:10套新農村自建房設計圖,2026年最新設計
閱讀次數:4825737次
100套鄉村別墅圖片大全,2026年最新設計
閱讀次數:2492203次
6款農村蓋一層平房的設計圖,10萬元就能建起來
閱讀次數:1852637次
這11個一層農村自建房別墅火爆了朋友圈!我最喜歡戶型十!你呢
閱讀次數:750268次
農村6萬元建一層小別墅圖,你敢相信嗎
閱讀次數:567686次
農村5萬塊就能自建房,6套普通房子設計圖分享,你沒看錯!
閱讀次數:419410次
8套農村漂亮三間平房圖片,非常適合在農村修建!
閱讀次數:411197次
農村自建房化糞池怎么做?附方案及施工過程
閱讀次數:391783次
農村一層三間平房設計圖,告別土氣養老房,讓人忍不住點贊
閱讀次數:350581次
新農村二層樓房圖片造價12萬,挑一套回家建房吧!
閱讀次數:349126次
