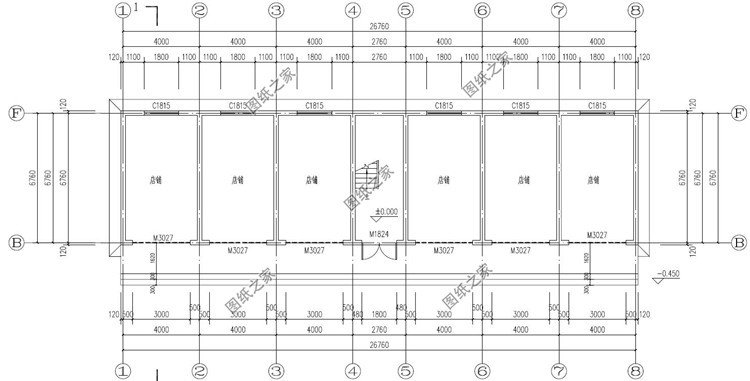
占地面積:26.76m*6.76m,189平方米左右;
建筑層高:三層;
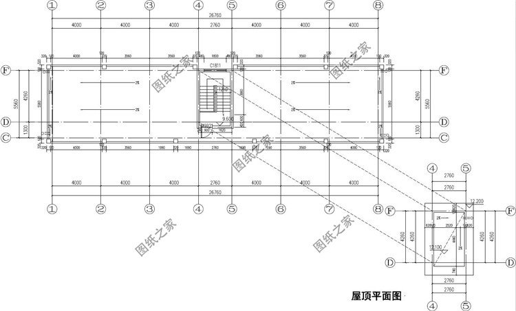
建筑高度:12.2米(含屋頂);
設計功能:
一層戶型:商鋪x6;
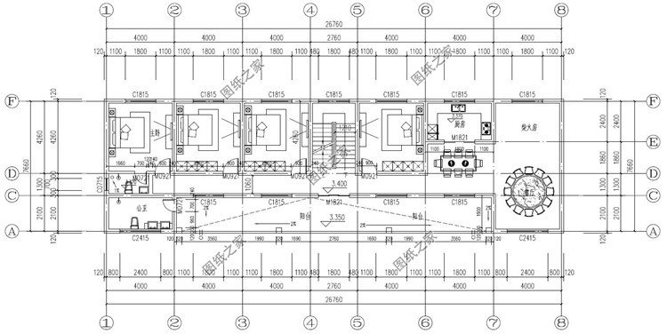
二層戶型:廚房、餐廳、柴火房、臥室(帶衛生間)、臥室x3、衛生間、陽臺;
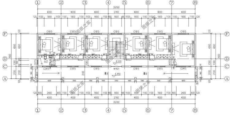
三層戶型:臥室x6、衛生間、露臺;








占地面積:26.76m*6.76m,189平方米左右;
建筑層高:三層;
建筑高度:12.2米(含屋頂);
設計功能:
一層戶型:商鋪x6;
二層戶型:廚房、餐廳、柴火房、臥室(帶衛生間)、臥室x3、衛生間、陽臺;
三層戶型:臥室x6、衛生間、露臺;















一、圖紙均為高清藍圖,包含全套設計圖,交給施工隊可直接建造;
二、圖紙每個數據都是環環相扣的,修改工作量大,還容易出錯,不支持修改服務;
三、如果您對圖紙的尺寸、戶型不滿意,我們可以按您的要求進行定制;
四、圖紙通俗易懂,只需按圖施工即可1比1還原效果圖,我們還提供在線指導服務。
帶門面房的三層樓房設計圖紙及外觀圖片,開間16米
造價:78萬
帶商鋪三層四開間自建樓房設計圖紙及效果圖
造價:75萬
帶門面房的農村三層別墅自建房效果圖及全套圖紙
造價:53萬
一二層是商品門面,三層是住宅的農村自建房設計圖
造價:55萬
帶商鋪門面的三層復式別墅圖紙及效果圖
造價:59萬
一層是商鋪的三層別墅圖紙及外觀設計效果圖
造價:40萬
一層辦公二三層住宅的別墅設計圖紙及外觀效果圖
造價:57萬
兩開間帶商鋪三層自建房子設計圖紙及效果圖
造價:37萬
帶商鋪的三層半別墅自建房設計圖紙及效果圖大全
造價:40萬
聯排帶商鋪的三層自建房別墅設計圖紙
造價:132萬
三層帶商鋪的鄉村別墅圖紙及外觀效果圖設計
造價:51萬
一層一半商鋪一半住宅的三層別墅自建房設計圖
造價:51萬
一層是商鋪的二層普通小樓設計圖,造型簡單
造價:54萬
帶商鋪的二層自建小別墅設計圖紙及效果圖
造價:28萬
帶地下室帶商鋪的二層自建房別墅設計圖紙及效果圖
造價:43萬
開間12米帶商鋪的二層小別墅設計圖紙
造價:27萬
中式風格帶商鋪二層別墅設計圖紙及效果圖
造價:框架結構
帶門面的二層自建房子設計圖紙及效果圖
造價:32萬
農村一層帶商鋪的二層自建房子設計圖紙
造價:29萬
平屋頂帶門面房的三層自建樓房設計圖及外觀圖
造價:59萬
帶商鋪的酒店二層自建房子設計圖紙及效果圖
造價:62萬
四層帶商鋪門面房的別墅設計圖及效果圖
造價:54萬
一層一半商鋪一半住宅的二層別墅設計圖紙及效果圖
造價:29萬
一排門面的二層自建房商鋪設計圖紙及效果圖
造價:77萬
90平帶商鋪二層小戶型自建房子設計圖及效果圖
造價:15萬
一層帶一半門面的二層中式別墅設計圖
造價:22萬
一層是商鋪的二層別墅小樓設計圖紙及效果圖
造價:39萬
100平左右四層帶商鋪自建房子設計圖紙
造價:27萬
一層商鋪門面,二、三層住宅的自建房設計圖紙及外觀
造價:52萬
四層帶商鋪別墅農村自建房設計圖紙及效果圖
造價:64萬
兩開間三層帶商鋪平屋頂自建房設計圖及效果圖
造價:27萬
一層商鋪門面,二、三層住宅的自建房設計圖紙及外觀
造價:52萬
一層門面二層、三層別墅設計圖紙及外觀效果圖
造價:70萬
一二層是商品門面,三層是住宅的農村自建房設計圖
造價:55萬
一二層商業門面,三四層住宅的自建房設計圖紙
造價:140萬
四層帶商鋪別墅農村自建房設計圖紙及效果圖
造價:64萬
農村帶商鋪四層自建樓房設計圖紙及外觀效果圖,11×13米
造價:58萬
一層商鋪二三層住宅的三層別墅圖紙,四開間面寬18米
造價:65萬
兩層半(三層)帶商鋪別墅設計圖,農村自建房
造價:38萬
小戶型四層帶商鋪自建樓房設計圖紙,小開間
造價:47萬
農村帶門面的三層自建別墅設計圖紙,外觀漂亮時尚
造價:45萬
兩開間帶門面的三層自建房子設計圖,開間僅8米
造價:36萬
帶商鋪門面的三層別墅設計圖紙,外觀很漂亮
造價:30萬
農村三層帶商鋪自建別墅設計圖,外觀圖片高大上
造價:33萬
帶商鋪的二層自建小別墅設計圖紙及效果圖
造價:28萬
一層帶商鋪的三層別墅設計圖紙及外觀效果圖
造價:40萬
三層帶商鋪別墅設計圖,既能出租又能住
造價:67萬
兩層半(三層)帶商鋪別墅設計圖,農村自建房
占地:146.48平方米
三層帶商鋪別墅設計圖,既能出租又能住
占地:315.55平方米
帶商鋪門面的三層別墅設計圖紙,外觀很漂亮
占地:105.91平方米
一層商鋪二三層住宅的三層別墅圖紙,四開間面寬18米
占地:210.81平方米
農村三層帶商鋪自建別墅設計圖,外觀圖片高大上
占地:125平方米
小戶型四層帶商鋪自建樓房設計圖紙,小開間
占地:108平方米
農村帶商鋪四層自建樓房設計圖紙及外觀效果圖,11×13米
占地:143平方米
兩開間三層帶商鋪平屋頂自建房設計圖及效果圖
占地:93.6平方米
一層門面二層、三層別墅設計圖紙及外觀效果圖
占地:242.05平方米
農村帶門面的三層自建別墅設計圖紙,外觀漂亮時尚
占地:195.5平方米
帶商鋪的二層自建小別墅設計圖紙及效果圖
占地:177.21平方米
四層帶商鋪別墅農村自建房設計圖紙及效果圖
占地:169.84平方米
一二層是商品門面,三層是住宅的農村自建房設計圖
占地:199.92平方米
一層商鋪門面,二、三層住宅的自建房設計圖紙及外觀
占地:180.5平方米
一層帶商鋪的三層別墅設計圖紙及外觀效果圖
占地:127.71平方米
兩開間帶門面的三層自建房子設計圖,開間僅8米
占地:88平方米
一二層商業門面,三四層住宅的自建房設計圖紙
占地:403.2平方米
