圖紙介紹:簡歐風二層農村別墅設計圖,遠離城市的喧囂與繁華,回歸最質樸的生活。別墅外觀設計大氣華麗,門庭寬闊加強了入戶感受,同時為二層提供了室外陽臺。外墻采用米白和淺黃外墻磚,搭配藍色的坡屋頂,白色腰線和窗套,經典的三段式外墻設計再配上歐式圍欄,更是使得整棟建筑的歐式韻味十足,堪稱農村最好看的二層小樓。
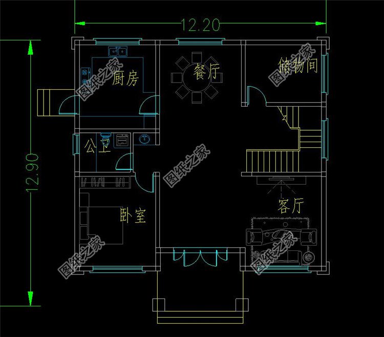
占地面積:12.2m*12.9m,146.27平方米;
建筑層高:二層;
建筑高度:10.9米(含屋頂);
設計功能:
一層戶型:客廳、廚房、餐廳、臥室、儲物間、衛生間;
二層戶型:起居室、書房、臥室x4、衛生間、陽臺;
圖紙目錄:
建 筑 圖:建筑設計說明、一層平面圖、二層平面圖、屋頂平面圖、正立面圖、背立面圖、左立面圖、右立面圖、1-1剖面圖、樓梯大樣圖、門斗大樣圖、節點大樣圖、門窗詳圖、門窗表等;
結 構 圖:結構設計說明、基礎平面布置圖、基礎大樣圖、一層梁結構平面圖、二層梁結構平面圖、屋頂梁結構平面圖、二層板結構平面圖、屋面板結構平面圖、樓梯大樣圖、節點大樣圖等;
給排水圖:給排水設計說明、一層給排水平面圖、二層給排水平面圖、屋頂給排水平面圖、衛生間大樣圖、給排水系統圖等;
電 氣 圖:電氣設計說明、配電系統圖、弱電系統圖、配電干線系統圖、一層照明平面圖、二層照明平面圖、一層插座平面圖、二層插座平面圖、一層弱電平面圖、二層弱電平面圖、接地平面圖、屋頂防雷平面圖等;
本套方案包含全套A3設計圖+彩色效果圖。


































































































