圖紙介紹:本設計為新中式二層別墅設計圖,外觀為現代中式風格,平屋頂,戶型空間利用率高。
占地面積:14.0m*11.7m,一層建筑面積146平方米左右;
建筑層高:二層(帶悶頂層);
建筑高度:8.57米(含屋頂);
設計功能:
一層戶型布局:大廳、客廳、廚房、餐廳、主臥(帶衛生間)、臥室x2衛生間;
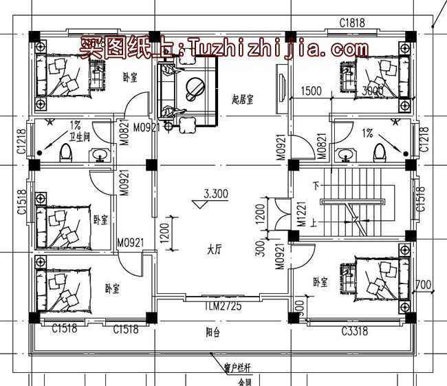
二層戶型布局:大廳、起居室、主臥(帶衛生間)、臥室x3、衛生間;
悶頂層:悶頂
圖紙目錄:
建筑圖:建筑施工圖目錄、建筑設計說明、一層平面圖、二層平面圖、屋頂平面圖、正立面圖、背立面圖、左立面圖、右立面圖、1-1剖面圖、樓梯大樣圖、節點大樣圖、門窗表
結構圖:建筑施工圖目錄、結構設計總說明、基礎配筋圖、基礎大樣圖、梁結構配筋圖、板結構配筋圖、屋面結構配筋圖、樓梯結構圖配筋圖、節點大樣圖
給排水圖:給排水圖目錄、給排水設計說明、一層給排水平面圖、二層給排水平面圖、給水系統圖、排水系統圖、衛生間排水大樣圖
電氣圖:電氣圖目錄、電氣設計說明、等離子電位做法、強電系統圖、弱電系統圖、照明布置圖、插座布置圖、基礎接地布置圖、屋頂防雷布置圖
本套方案包含整套設計圖A3+A4彩色效果圖,全國包郵。


































































































