圖紙介紹:獨棟農村兩層歐式別墅設計圖紙(效果圖+建筑施工圖),外觀外觀簡約優雅,采光好,造價低,美觀精致,內部布局舒適合理,最主要是面積和尺寸適合大多數自建房尺寸,很良心的一款設計,自建房不錯的選擇。二樓的露臺是增加用戶的空間利用率,從內部結構看,該戶型功能設計合理,布局緊湊,實用性較強,非常適合農村自建房
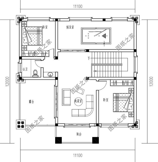
占地面積:11.1m*12m,125平方米左右;
建筑層高:二層;
建筑高度:9.95米(含屋頂);
設計功能:
一層戶型:客廳、廚房、餐廳、臥室x2、衛生間;
二層戶型:起居室、臥室x2、衛生間、娛樂室、陽臺、露臺;
圖紙目錄:
建 筑 圖:建筑設計說明、一層平面圖、二層平面圖、屋頂平面圖、正立面圖、背立面圖、左立面圖、右立面圖、1-1剖面圖、樓梯大樣圖、門斗大樣圖、節點大樣圖、門窗詳圖、門窗表等;
結 構 圖:結構設計說明、基礎平面布置圖、基礎大樣圖、一層梁結構平面圖、二層梁結構平面圖、、屋頂梁結構平面圖、二層板結構平面圖、屋面板結構平面圖、樓梯大樣圖、節點大樣圖等;
給排水圖:給排水設計說明、一層給排水平面圖、二層給排水平面圖、屋頂給排水平面圖、衛生間大樣圖、給排水系統圖等;
電 氣 圖:電氣設計說明、配電系統圖、弱電系統圖、配電干線系統圖、一層照明平面圖、二層照明平面圖、一層插座平面圖、二層插座平面圖、一層弱電平面圖、二層弱電平面圖、接地平面圖、屋頂防雷平面圖等;
本套方案包含全套A3設計圖+彩色效果圖。



































































































