開間:22米 進深:12米(不含門樓)
占地面積:260平米
建筑面積:530平米
造價預算:55萬
設計功能:
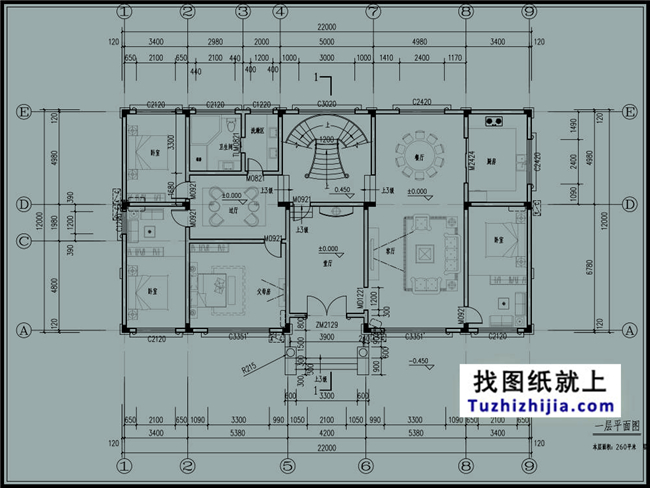
一層:客廳、堂廳、廚房、餐廳、臥室x4、衛生間、洗漱區;
二層:起居室、臥室x5、衛生間x3、書房x2、棋牌室、露臺x3;
圖紙詳情:
建施:建筑設計總說明、門窗表、一層平面圖、二層平面圖、屋頂平面圖、東立面 圖、南立面圖、西立面圖、北立面圖、剖面圖、樓梯平面圖/剖面圖、門窗 大樣圖、天溝大樣圖;
結施:結構設計總說明、基礎平面布置圖、基礎大樣、基頂~二層樓面柱配筋圖、 二層樓面~隔熱層樓面拄配筋圖、隔熱層樓面~屋面柱配筋圖、地梁配筋圖 二層梁配筋圖、隔熱層梁配筋圖、屋面梁配筋圖、二層板配筋圖、隔熱層板 酉己筋圖、屋面板配筋圖、樓梯大樣圖;水施:給排水設計說明、 一層給排水平面圖、 二層給排水平面圖、 衛生間大樣圖、 給排水系統圖;
電施:電氣設計說明及圖例、一層照明平面圖、二層照明平面圖、一層插座平面圖 二層插座平面圖、一層接地及弱電平面圖、二層弱電平面圖、屋頂防雷裝 5平面圖、配電系統圖、弱電系統圖、衛生間局部等電位聯接示意詳圖。
全套A3圖紙+效果圖,拿到即可施工。





































































































