
|
很多在城市打拼的人,終極夢想的就是能有一個真正屬于自己的棲身之所,為了實現這個夢想,努力為之奮斗,可是到頭來,面對高昂的房價,很多人即使節衣縮食就買不上豪華地段的一個廁所,這就是現實。其實你還有另外一種選擇,在外打拼的同時,在農村建一棟真正屬于自己的自建房,房子不需要多高,更不需要多大,三室兩廳足矣,這樣的生活已經足夠讓很多人羨慕。先給自己一個穩定的后方,然后鼓起勇氣加油奮進,這才是正解。 本期,我們推薦三套三室兩廳的單層農村自建房設計方案,這應該是很多人向往的生活方式。 第一套:
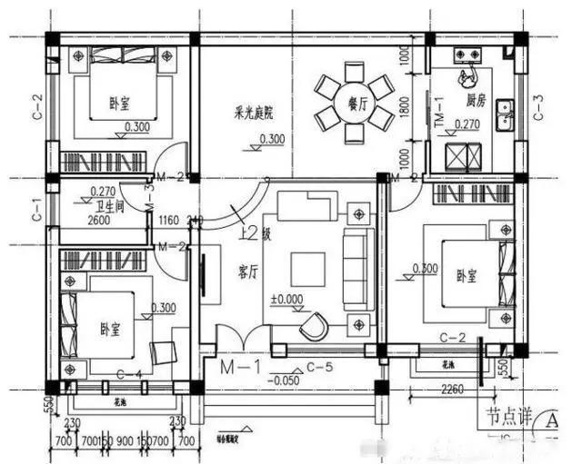
戶型設計尺寸:開間12.7米,進深9.5米,建筑占地120平米,建筑外觀選用白色和青色的墻磚,搭配青色的屋頂,十分的清新淡雅;建筑入戶設客廳,預留三間臥室,其中陽面兩間,陰面一間,除了廚房、餐廳和公衛,還預留一處小內院,做陽光房使用。
第二套:
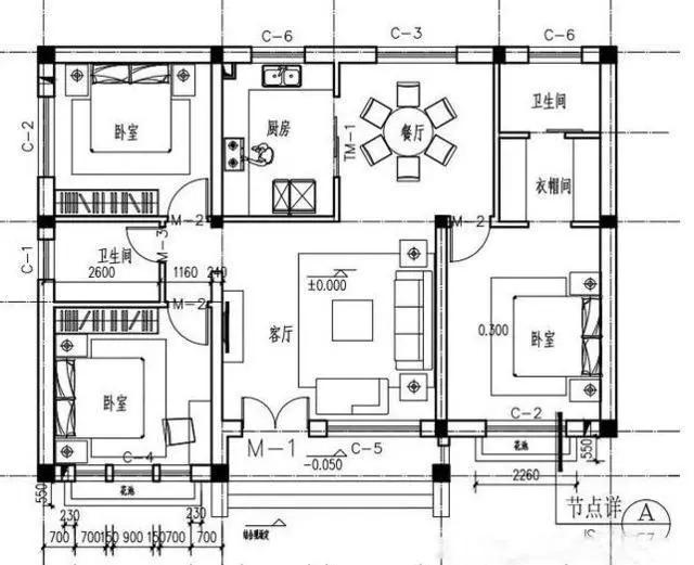
該戶型占地尺寸跟第一套完全一致,只是在建筑外形裝飾和內部結構布局上,做了相應的改進,入戶設客廳,原有三臥室的布局不變,但是陽面主臥加入衣帽間和衛生間,套房的設計更加豪華和實用,餐廳位置不變,廚房在原先內院的位置。
第三套:
架空設計的單層自建房,建筑裝飾簡潔明了,外觀樸實無華,設計尺寸:開間14.2米,進深10.5米,建筑入戶設玄關,右側生活區設客廳、餐廳、廚房,左側休息區,設三間臥室,一間烤火房和一個獨立衛生間。該戶型改造也比較方便,而且架空層有1.5米,只要再多挖一米,就有了一個不錯的地下室。
三款設計方案,不管怎么變,三室兩廳的設計是基本配置,也是目前多數家庭的主流配置,非常實用。 圖紙之家-專注農村別墅/自建房設計18年,集合國內200余位經驗豐富的設計師,被評為口碑最好的農村建筑設計公司! |

三層蓋房子歐式挑空客廳別墅設計圖,外觀漂亮戶型實用
占地:多種戶型
二層農村房子圖片及全套施工圖紙,占地150平面左右
占地:150平方米
經典美式風100平米二層小別墅設計方案,鄉村建房首選
占地:100.17平方米
三層新農村住宅設計圖及效果圖,三層樓房設計圖展示
占地:140平方米
新中式二層雙拼別墅農村自建房子設計圖紙,面寬19米
占地:240平方米左右,單
二層美式花園洋房設計圖,帶堂屋戶型,外觀簡直美爆了
占地:159.32平方米
10萬內2層小洋樓設計圖,平屋頂,戶型設計合理
占地:90平方米
農村新款二層中式別墅設計圖效果圖,帶堂屋設計
占地:144平方米
農村三層帶車庫、帶露臺別墅設計圖,經典自建別墅設計方案
占地:160平方米
中式古風別墅設計圖,一層三合院設計,經濟舒適,時尚與傳統的
占地:275.7平方米
140平方米三層豪華新中式別墅設計圖紙帶外觀效果圖
占地:141.35平方米
三層兩開間小面寬別墅設計圖紙帶外觀效果圖,95平方米
占地:94.61平方米
最漂亮的一層平房圖片及設計圖,造價18萬左右,結構簡單易于施
占地:186平方米
仿古中式四合院別墅設計戶型圖,外觀圖古典風格
占地:524平方米
鄉村一層房屋設計圖,養老還是一層好,多臥室的設計
占地:195平方米
2026新款農村15萬元二層小樓圖,占地90平米左右
占地:多種戶型
農村中式兩層雙拼別墅房屋設計圖,含效果圖片
占地:200平方米
挑空客廳戶型歐式二層別墅設計圖紙,高端大氣帶車庫
占地:236.09平方米
仿古建筑中式祠堂設計圖紙及外觀效果圖
占地:546平方米
帶車庫二層165平別墅房屋設計圖,含效果圖
占地:165平方米
推薦:10套新農村自建房設計圖,2026年最新設計
閱讀次數:4825737次
100套鄉村別墅圖片大全,2026年最新設計
閱讀次數:2492203次
6款農村蓋一層平房的設計圖,10萬元就能建起來
閱讀次數:1852637次
這11個一層農村自建房別墅火爆了朋友圈!我最喜歡戶型十!你呢
閱讀次數:750268次
農村6萬元建一層小別墅圖,你敢相信嗎
閱讀次數:567686次
農村5萬塊就能自建房,6套普通房子設計圖分享,你沒看錯!
閱讀次數:419410次
8套農村漂亮三間平房圖片,非常適合在農村修建!
閱讀次數:411197次
農村自建房化糞池怎么做?附方案及施工過程
閱讀次數:391783次
農村一層三間平房設計圖,告別土氣養老房,讓人忍不住點贊
閱讀次數:350581次
新農村二層樓房圖片造價12萬,挑一套回家建房吧!
閱讀次數:349126次
