
|
大多數人的宅基地地理位置都不是位于街道邊上的,但也有一部分人很幸運的擁有著一塊這樣的宅基地,地理優勢既然已經存在,肯定要合理的利用起來,怎么利用?建一棟帶商鋪的房子,一層有商鋪可以做生意,上面的空間自住,一舉兩得。 兩棟帶商鋪的農村自建房,第一棟14×13米,外墻用真石漆或者是面磚來裝飾。
整個外墻面看上去是非常的干凈,沒有多余的裝飾物。
平面布局說明:在房子的東邊有兩邊商鋪,因為這邊是靠近公路的,一層商鋪兩間,另有一室兩廳一廚一衛,戶型通透;二層也是帶廚房和餐廳的套房,一個獨立的生活主體,三室兩廳一廚兩衛,另有衣帽間一個,還有陽臺;三層兩室兩廳一廚一衛,外配大露臺。
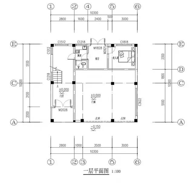
第二棟別墅是一個四層的戶型,也是一層做商鋪,上面自住的類型,尺寸10.3×10.2米。
平面布局說明:一層一間較大面積的門面,另有老人房,廚房和餐廳,公衛;二層一室兩廳一廚兩衛,主臥帶獨衛,三層的布局和二層是一模一樣的;四層兩個臥室,配一個書房,一個露臺。
有了這樣一棟房子,還怕不來錢嗎?所以說建了這樣一棟房子,家里財運肯定差不了。 圖紙之家-專注農村別墅/自建房設計18年,集合國內200余位經驗豐富的設計師,被評為口碑最好的農村建筑設計公司! |

農村中式兩層雙拼別墅房屋設計圖,含效果圖片
占地:200平方米
帶地下室設計三層自建房別墅設計圖,復式挑空客廳
占地:192平方米
120平米三層小別墅設計方案和效果圖,端莊大氣很經典
占地:120平方米
面寬17米農村一層平房設計圖,簡約空間敞亮
占地:169.393平方米
別致美觀的簡歐二層別墅房屋設計圖,含外觀效果圖
占地:145平方米
農村三層別墅新款圖片及戶型設計圖紙大全,110平簡歐風格
占地:110平方米左右
100平方米自建三層半別墅設計圖紙,帶地下車庫
占地:100平方米
新中式三層樓房設計圖紙,帶地下室,地下車庫,帶電梯
占地:230平方米
私人經濟小別墅設計圖,農村自建小洋樓100平左右戶型
占地:104平方米
簡單大氣二層兄弟雙拼樓房設計圖,外觀簡約
占地:268平方米
2026新款農村15萬元二層小樓圖,占地90平米左右
占地:多種戶型
適合農村自建四合院圖片,中式二層四合院別墅設計施工圖紙
占地:232平方米
三層歐式豪華別墅設計方案,全套圖紙+效果圖
占地:168平方米
帶大套間新農村二層別墅自建房設計圖紙帶效果圖
占地:185平方米
200平方米別墅設計圖紙(含效果圖),農村別墅方案精選
占地:200.26平方米
50萬左右農村三層別墅設計圖紙,帶大露臺,外觀大氣
占地:150平方米
最新農村20萬元二層半別墅設計圖,占地僅110多平
占地:110平方米
大面寬一層別墅設計圖紙,新中式風格兩款戶型
占地:多戶型可選
2026最火的現代別墅設計圖農村三層戶型,帶地下室
占地:119.79平方米
二層新中式小別墅設計圖紙,舒適實用,16米乘12米
占地:189.88平方米
推薦:10套新農村自建房設計圖,2026年最新設計
閱讀次數:4825737次
100套鄉村別墅圖片大全,2026年最新設計
閱讀次數:2492203次
6款農村蓋一層平房的設計圖,10萬元就能建起來
閱讀次數:1852637次
這11個一層農村自建房別墅火爆了朋友圈!我最喜歡戶型十!你呢
閱讀次數:750268次
農村6萬元建一層小別墅圖,你敢相信嗎
閱讀次數:567686次
農村5萬塊就能自建房,6套普通房子設計圖分享,你沒看錯!
閱讀次數:419410次
8套農村漂亮三間平房圖片,非常適合在農村修建!
閱讀次數:411197次
農村自建房化糞池怎么做?附方案及施工過程
閱讀次數:391783次
農村一層三間平房設計圖,告別土氣養老房,讓人忍不住點贊
閱讀次數:350581次
新農村二層樓房圖片造價12萬,挑一套回家建房吧!
閱讀次數:349126次
