浙江臺州歐式別墅,造型霸氣,引鄰里羨慕
項目名稱:浙江臺州歷家歐式別墅
項目地點:浙江省臺州市
建筑面積:348㎡
基地面積:458㎡
建筑尺寸:13.2m×11m
占地面積:130㎡
圖紙編號:481
戶型概況:5室2廳5衛1廚2儲藏1書房1活動1工具1土灶
建筑結構:框架結構
主創建筑師:范亞朋
工程造價:53萬元(不包含室內裝修費用)
項目概況
浙江臺州歐式別墅,造型霸氣,引鄰里羨慕
△設計前期業主提供鄰居現狀圖
該項目業主本人能接受極為新潮的建筑風格,個人也十分喜歡現代風格的大開窗,但綜合考慮家庭其他成員的接受程度,建筑最終設計為歐式風格。
浙江臺州歐式別墅,造型霸氣,引鄰里羨慕
△總平面示意圖
建筑占地130平米,基地西側為鄰居家住宅,東、南、北三個方向均為農田。基地四周整體環境較為空曠和簡單,兼且項目基地面積比較大,因此周圍環境對建筑基本沒有影響。
圖紙設計
浙江臺州歐式別墅,造型霸氣,引鄰里羨慕
△一層平面圖
業主在設計初期為我們提供了平面和立面的初步方案,結合業主及其家人的使用習慣,平面設計時主要在使用上對方案進行了優化。
一層主要作為公共區域和儲物使用,北側的廚房考慮到當地習俗和家人的使用習慣增加了土灶的設計。三個入戶門提供了不同的入戶路徑,大大方便了業主一家的日常使用。
浙江臺州歐式別墅,造型霸氣,引鄰里羨慕
△二層平面圖
二層設計為起居和活動空間。套間的設計為業主家人提供了相對私密的空間。室外陽臺出入口在走廊位置,公共空間的出入路徑方便陽臺使用。
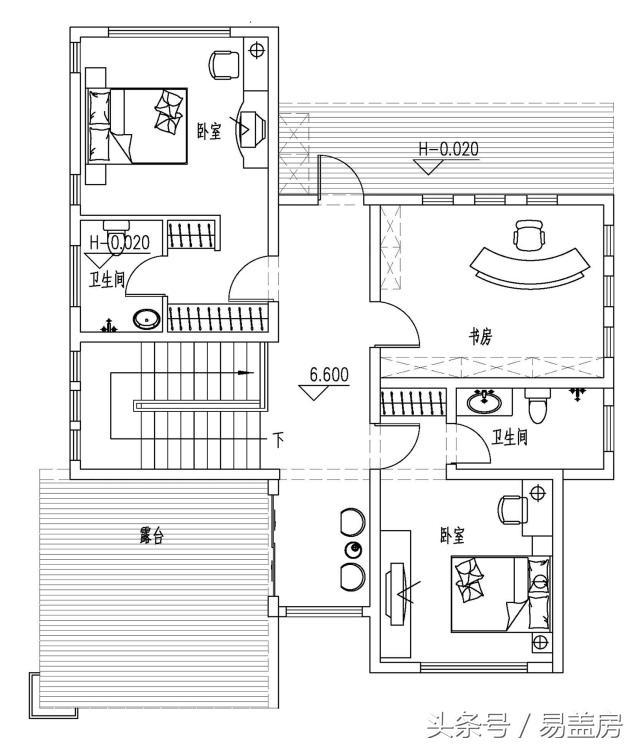
浙江臺州歐式別墅,造型霸氣,引鄰里羨慕
△三層平面圖
三層將活動室對應位置修改為書房,并增加了露臺。露臺與室外陽臺呈對角布置,保證了建筑更全面的觀景視角。南側走廊與露臺相鄰處的室內休息平臺提高了空間的使用率,保證了房間的開闊。
造型設計
浙江臺州歐式別墅,造型霸氣,引鄰里羨慕
△鳥瞰圖
建筑整體為歐式風格。外立面選擇暖色系真石漆,大面積的純色在灰瓦屋頂的點綴下使得建筑表現出一種生活的愜意。
浙江臺州歐式別墅,造型霸氣,引鄰里羨慕
△鳥瞰圖
兩側的豎向條窗在造型上使得建筑更具英倫風。立面造型美觀的同時,豎向條窗也能為室內帶來更大的采光面積,條窗在光照時均勻光線的能力也十分突出。
浙江臺州歐式別墅,造型霸氣,引鄰里羨慕
△鳥瞰圖
浙江臺州歐式別墅,造型霸氣,引鄰里羨慕
△鳥瞰圖
庭院分為前、后院,一側景觀、一側實用,庭院環繞建筑,讓建筑在周邊環境中得以突出,同時將建筑受周圍環境影響的可能降到最低。
浙江臺州歐式別墅,造型霸氣,引鄰里羨慕
△東南側效果圖
浙江臺州歐式別墅,造型霸氣,引鄰里羨慕
△西南側效果圖
檐口處的設計配合坡屋頂使得建筑具有有組織排水的能力。院墻部分鐵藝欄桿與磚石結合,是工藝氣息與紳士風格的碰撞,充滿設計感的建筑在第一時間吸引眼球。
浙江臺州歐式別墅,造型霸氣,引鄰里羨慕
△庭院效果圖
浙江臺州歐式別墅,造型霸氣,引鄰里羨慕
△入戶效果圖
門頭方正的立柱搭配二層位置華麗的石膏護欄使得入戶視角的建筑十分震撼。兩層高度的拱形窗讓建筑更為挺拔,同時也具有較好的抗風性能。
浙江臺州歐式別墅,造型霸氣,引鄰里羨慕
△陽臺效果圖
建筑北側二、三層陽臺呈階梯狀分布,獨特的設計給人留下深刻的印象。階梯狀的陽臺不會對室內產生多余負擔,造型上也能讓建筑更為立體和多變。
浙江臺州歐式別墅,造型霸氣,引鄰里羨慕
△東立面圖
浙江臺州歐式別墅,造型霸氣,引鄰里羨慕
△西立面圖
浙江臺州歐式別墅,造型霸氣,引鄰里羨慕
△南立面圖
浙江臺州歐式別墅,造型霸氣,引鄰里羨慕
△北立面圖







































