圖紙介紹:本戶型為復式大面積私人別墅設計圖,歐式風格,客廳中空,旋轉樓梯,外觀大氣。
本外觀還有非復式、大客戶戶型,點擊查看》》》大客廳三層別墅設計圖
占地面積:16.5m*15.0m,247平方米左右;
建筑層高:三層;
建筑高度:10.2米(含屋頂);
設計功能:
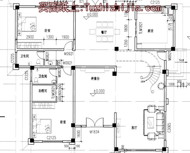
一層戶型設計:玄關、客廳、餐廳、廚房、衛生間、主臥(帶衛生間、帶衣帽間)、臥室;
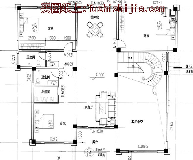
二層戶型設計:客廳、棋牌室、主臥(帶衛生間、帶衣帽間)、臥室x2、衛生間、小露臺;
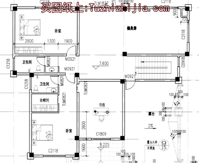
三層戶型設計:健身房、主臥(帶衛生間、帶衣帽間)、臥室、書房、衛生間、大露臺;
圖紙目錄:
建筑圖:圖紙目錄、建筑說明、各層平面圖、立面圖x4、剖面圖、大樣圖、樓梯大樣圖、節點大樣圖、門窗表等;
結構圖:圖紙目錄、結構說明、基礎配筋圖、基礎大樣圖、梁結構配筋圖、板結構配筋圖、屋面結構配筋圖、樓梯結構配筋圖、節點大樣圖等;
給排水圖:圖紙目錄、設計說明、給排水平面圖、衛生間排水大樣圖、給排水系統圖、排水系統圖等;
電氣圖:圖紙目錄、電氣說明、照明布置圖、插座布置圖、弱電布置圖、基礎接地布置圖、屋頂防雷布置圖等。
本套圖紙為A3圖紙+高清效果圖,拿到即可施工!




































































































