圖紙介紹:本戶型為高端三層帶地下室(三層半)別墅設計圖方案,復式(客廳中空),含外觀效果圖,歐式風格,外觀高端、氣派,自建非常有面子。
占地面積:11.7m*11.7m,135平方米左右;
建筑層高:三層(帶地下室);
建筑高度:13.42米(含屋頂);
設計功能:
地下:車庫、影音室、酒窖、臺球廳、健身房、儲藏間;
一 層:門廳、客廳、廚房、餐廳、衛生間、主臥(帶衛生間);
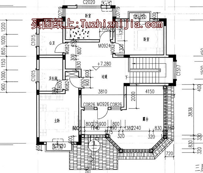
二 層:過道、主臥(帶衛生間)、臥室x2、衛生間、露臺;
三 層:過道、主臥(帶衛生間)、臥室x2、衛生間、大露臺;
圖紙目錄:
建 筑 圖:建筑施工總說明、建筑構造設計說明、地下層平面圖、一層平面圖、二層平面圖、三層平面圖、屋頂平面圖、正立面圖、背立面圖、左立面圖、右立面圖、1-1剖面圖、樓梯大樣圖、門頭大樣圖、節點大樣圖、門窗詳圖、門窗表等;
結 構 圖:結構設計總說明、大樣圖、基礎平面布置圖、基礎大樣圖、地下層和一層頂板結構平面圖、二層頂板結構平面圖、悶頂板結構平面圖、屋頂板結構平面圖、地下層和一層頂梁結構平面圖、二層頂梁結構平面圖、悶頂梁結構平面圖、樓梯配筋圖等;
給排水圖:給排水設計說明、地下層和一層給排水平面圖、二層給排水平面圖、三層給排水平面圖、屋頂給排水平面圖、衛生間大樣圖、給排水系統圖等;
電 氣 圖:電氣設計說明、設備材料表、等電位聯結做法、配電系統圖、弱電系統圖、配電干線系統圖、地下層和一層照明平面圖、二層照明平面圖、三層照明平面圖、地下層和一層插座平面圖、二層插座平面圖、三層插座平面圖、地下層和一層弱電平面圖、二層弱電平面圖、三層弱電平面圖、接地平面圖、屋頂防雷平面圖等;





































































































