
|
在農村建房子,大家一定會很關心這個建房的價格問題,因為一旦決定要建房子,那要花錢的地方還是很多的,大的小的,各方面都要考慮,所以還是要精打細算的好,錢沒有那么好賺,所以花的時候也要算一下,做到心中有數。今天小編給大家介紹的兩款自建房別墅,價格上相差一倍,風格上、色彩上也不盡相同。隨小編一起來看看嘍! 別墅一效果圖: 這款別墅既簡約大氣,又擁有自己獨特韻味,簡潔大方,窗戶、窗框都是設計師精心設計的,有特點、有造型。
基本信息 占地尺寸:12.2×10.2米 占地面積:124.5平方米 建筑面積:228平方米 結構類型:磚混結構 建筑層數:2層 建筑高度:9.496米 主體造價:18萬左右 別墅北立面圖: 多窗設計,滿足北面采光和南門通透的問題。
別墅東立面圖: 廚房處設計了一個側門,幫助油煙排放、通風、方便。
別墅西立面圖: 衛生間和淋浴區都設立了窗戶,利于排氣、通風,家里無異味。
一層平面圖: 設有:1臥室、1客廳、1堂屋、1廚房、1餐廳、1儲物間、1衛生間,入戶平臺一進門是堂屋,右邊是客廳,再往里走是餐廳,餐廳旁邊是廚房,廚房處設計的是推拉門,方便進出廚房,廚房另一邊設有一個側門,通風、方便出入,很好的保持家里的清潔,堂屋的左側是一個臥室,可以作為老人房,老人房一出房門就是衛生間,非常方便老人如廁、洗浴。衛生間和臥室之間保留一定位置,方便擺放洗衣機。衛生間的側邊為上樓的樓梯,樓梯下方另設有儲物間,合理利用空間。
二層平面圖: 設有:3臥室、1客廳、1衛生間、2露臺,從一層上樓梯來到二樓,正面和側面是3個臥室和衛生間,向左走到底是二樓的客廳和露臺,二樓另外設計一個客廳,非常的方便樓上住的家人休閑娛樂。2個露臺都在南邊,觀景效果都非常的好。
別墅二效果圖: 這款別墅沒有大面積的使用文化石,而是文化石、瓷磚、木質材料相結合,相輔相成,很小清新,不是那么浮夸的感覺。一般的別墅外型都是中規中矩的四方形,這款的一個特點是,東邊有個圓弧度設計,非常的柔美,住在這樣的一個房間里,一個墻的圓形落地窗,是不是感覺心里美滋滋呢?
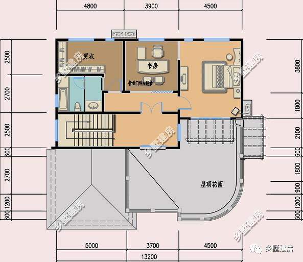
基本信息 占地尺寸:13.2×12.8米 占地面積:170.38平方米 建筑面積:412.72平方米 結構類型:框架結構 建筑層數:3層 建筑高度:10.65米 主體造價:41萬左右 一層平面圖: 設有:挑高客廳、廚房、餐廳、玄關、儲藏室、客房、衛生間、麻將室、車庫兼儲藏室。入戶是玄關,左側是客廳、樓梯、樓梯下是儲藏室、衛生間、客房。右側是餐廳、廚房、車庫兼儲藏室、車庫和客房之間是棋牌室。客廳用餐視野好,一樓布局合理,功能齊全。
二層平面圖: 設有:3臥室、娛樂室、3衛生間、起居廳、陽臺。二層主要是居住層,雙套房設計更隱私,生活更方便,娛樂室的設計增加了娛樂空間,主臥設計在南測。南測起居室外是陽臺,晾曬、觀景效果佳。
三層平面圖: 設有:臥室、書房、獨立衣帽間、衛生間。三層相當于一層一套房的感覺。一個臥室配備書房、更衣室、浴缸、衛生間,相當奢華的配置。
分享:
圖紙之家-專注農村別墅/自建房設計18年,集合國內200余位經驗豐富的設計師,被評為口碑最好的農村建筑設計公司! |

西班牙風格農村二層樓房設計圖及效果圖,實用美觀
占地:170平方米
110平預算20萬內三層別墅設計圖,含效果圖
占地:110平方米
七字型一層平房別墅設計圖紙,15X16米
占地:177.9平方米
30萬以下的經典二層新農村別墅設計圖紙及效果圖,簡單大氣
占地:170平方米
新農村二層房屋設計圖紙(全套建筑施工圖紙+外觀效果圖)
占地:85平方米
旋轉樓梯挑空獨棟二層簡歐小別墅設計圖,大氣時尚
占地:189.26平方米
二層樓房設計圖,占地120平米左右,符合現代農村的建房政策
占地:120平方米
三層兩開間小面寬別墅設計圖紙帶外觀效果圖,95平方米
占地:94.61平方米
七字型設計新中式一層別墅設計圖,類合院風格
占地:267.3平方米
230平方農村雙拼別墅設計圖,26x11米自建房屋戶型
占地:230平方米
2026新款農村15萬元二層小樓圖,占地90平米左右
占地:多種戶型
漂亮的二層中式現代別墅圖,配色非常的溫馨淡雅
占地:160平方米
面寬13米簡簡單單一層農村自建別墅設計圖,方正大氣經濟宜居
占地:126.1平方米
農村中式一層合院別墅設計圖,帶小院子規劃設計
占地:202平方米左右
開間20米雙拼別墅三層設計圖,兄弟合建省時省力又省心
占地:205.8平方米
好看精致的三層自建房別墅設計圖,開間12米進深12米左右
占地:125.73平方米
農村二層樓建房造型圖及全套施工圖紙,占地110平米左右,帶地下
占地:110平方米
農村三室二廳一層小平房設計圖,簡單實用型
占地:113.4平方米
占地130平三層現代別墅設計圖方案,帶電梯和地下室設計
占地:134.75平方米
面寬20多米二層新中式雙拼別墅設計圖,外觀漂亮時尚
占地:246.66平方米左
推薦:10套新農村自建房設計圖,2026年最新設計
閱讀次數:4825737次
100套鄉村別墅圖片大全,2026年最新設計
閱讀次數:2492203次
6款農村蓋一層平房的設計圖,10萬元就能建起來
閱讀次數:1852637次
這11個一層農村自建房別墅火爆了朋友圈!我最喜歡戶型十!你呢
閱讀次數:750268次
農村6萬元建一層小別墅圖,你敢相信嗎
閱讀次數:567686次
農村5萬塊就能自建房,6套普通房子設計圖分享,你沒看錯!
閱讀次數:419410次
8套農村漂亮三間平房圖片,非常適合在農村修建!
閱讀次數:411197次
農村自建房化糞池怎么做?附方案及施工過程
閱讀次數:391783次
農村一層三間平房設計圖,告別土氣養老房,讓人忍不住點贊
閱讀次數:350581次
新農村二層樓房圖片造價12萬,挑一套回家建房吧!
閱讀次數:349126次
