
|
“家”本就該是一處讓人放松的場所,工作學習累了回到家,感受溫馨舒適的家庭環境,可以讓人忘記所有煩惱,所以現在越來越多農村人建房的時候,他們愿意花錢設計圖紙,再根據圖紙把房子蓋起來。農村自建房,不僅在價格上容易被接受,還可以根據需求來設計,而且農村環境好,空氣質量佳,住著舒服自在,今天小編給大家分享2套三層25萬農村私家自建別墅全套施工效果圖。 第一套 開間進深:9.2m×10.2m 占地面積:88㎡ 總建筑面積:258㎡ 結構形式:框架結構 主體參考造價:26萬
該設計充分考慮了住房的實用性,室內各區域劃分明確合理,功能齊全,一層設計有后門,方便出行。二層主臥帶陽臺,寬敞舒適。從外觀上看,本戶型采用了現代與古風相結合的設計方式,打造一個意義非凡的生活空間。 室內布局:
一層平面圖 一層: 客廳、廚房、餐廳、臥室、公共衛生間、樓梯。
二層平面圖 二層: 客廳上空、主臥室帶陽臺、書房、次臥室、公共衛生間、過道。
三層平面圖 三層: 休息廳、臥室、衛生間、大露臺。
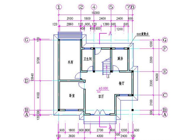
第二套 開間進深:10.54m×10.64m 占地面積:100㎡ 總建筑面積:300㎡ 結構形式:磚混結構 主體造價:25萬
本套設計時尚美觀,正立面突出結構部分采用灰色蘑菇石飾面,還有四個對稱的拱形玻璃,富有現代感。此外,從采光及休閑的角度考慮,還特意設計了兩個架空陽臺、一個露臺,實現人性化設計。
一層平面圖 一層: 客廳、臥室、廚房、餐廳、衛生間、車庫
二三層平面圖 二層: 客廳、臥室(附衛生間)、臥室、書房、衛生間、陽臺 三層: 客廳、臥室(附衛生間)、臥室、書房、衛生間、陽臺
圖紙之家-專注農村別墅/自建房設計18年,集合國內200余位經驗豐富的設計師,被評為口碑最好的農村建筑設計公司! |

四層別墅豪宅外觀效果圖及全套施工圖,高端歐式風格
占地:176.97平方米
農村二層仿古尖屋頂別墅設計圖,外觀古樸耐看
占地:87平方米左右
農村自建超漂亮中式四合院別墅設計圖,22X25米
占地:473平方米
260平方米兩層帶車庫四合院房屋設計圖紙及效果圖
占地:260平方米
農村20萬元二層小樓圖片及全套圖紙,外型美造價低
占地:多種戶型
10萬內2層小洋樓設計圖,平屋頂,戶型設計合理
占地:90平方米
二層農村房子圖片及全套施工圖紙,占地150平面左右
占地:150平方米
復式別墅新農村二層房屋設計圖紙,屋頂錯落有致
占地:多戶型可選
7字型一層半農村別墅設計圖,美觀舒適,買了別墅的都會羨慕你
占地:229.14平方米
農村二層半樓房效果圖及全套設計圖紙,自建房簡單實用
占地:121平方米
80多平米二層小型自建房設計圖,經濟舒適別具一格
占地:84.48平方米
帶地下車庫的三層別墅設計圖,160平復式戶型
占地:159.03平方米
一層鄉村別墅設計戶型圖,占地100平左右,外觀很時尚
占地:100平方米左右
120平米二層別墅樓設計圖,簡約省錢也能建的漂亮
占地:121.74平方米
130平新農村三層房屋設計圖紙,預算30萬以內,蓋房推薦
占地:132平方米
自建房共堂屋雙拼別墅設計圖方案,三層挑空復式戶型
占地:199.5平方米左右
新中式三層豪華大氣三層別墅自建房屋設計圖,帶地下室,土豪專
占地:194平方米
二層新中式別墅設計施工圖,廚房在配房,占地140平米
占地:141平方米
經典三層小別墅設計圖紙(效果圖+全套cad建筑圖),新農村自建
占地:120平方米
新款三層豪華大氣歐式別墅設計圖,3種戶型設計方案
占地:125平方米左右
推薦:10套新農村自建房設計圖,2026年最新設計
閱讀次數:4825737次
100套鄉村別墅圖片大全,2026年最新設計
閱讀次數:2492203次
6款農村蓋一層平房的設計圖,10萬元就能建起來
閱讀次數:1852637次
這11個一層農村自建房別墅火爆了朋友圈!我最喜歡戶型十!你呢
閱讀次數:750268次
農村6萬元建一層小別墅圖,你敢相信嗎
閱讀次數:567686次
農村5萬塊就能自建房,6套普通房子設計圖分享,你沒看錯!
閱讀次數:419410次
8套農村漂亮三間平房圖片,非常適合在農村修建!
閱讀次數:411197次
農村自建房化糞池怎么做?附方案及施工過程
閱讀次數:391783次
農村一層三間平房設計圖,告別土氣養老房,讓人忍不住點贊
閱讀次數:350581次
新農村二層樓房圖片造價12萬,挑一套回家建房吧!
閱讀次數:349126次
