
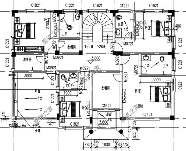
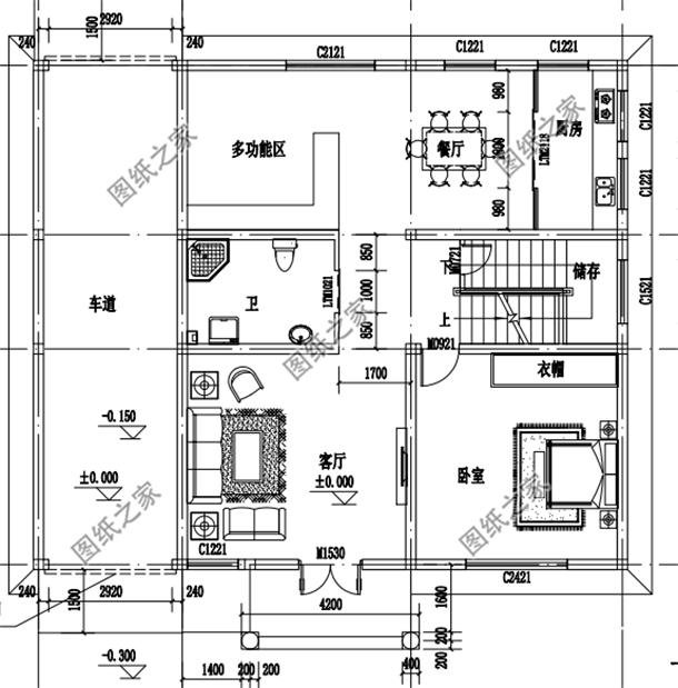
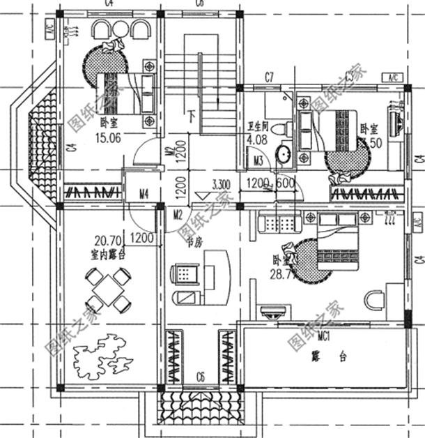
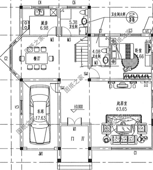
戶型一:帶車庫二層別墅房屋設計圖圖紙介紹:本方案為帶車庫二層別墅房屋設計圖,二層有一個露天露臺和一個室內露臺,外墻配色協調,戶型設計合理。(如果不需要車庫,建造時車庫可以改成臥室) ![]() 占地面積:12.30m*13.50m,165平方米左右; 建筑層高:二層; 建筑高度:8.47米(含屋頂); 設計功能: 一層戶型:客廳、餐廳、廚房、衛生間、臥室(帶衛生間)、車庫(可以做臥室); 二層戶型:主臥(帶衛生間)、臥室(帶書房、衣帽間、露臺)、臥室、室內露臺; ![]() ![]() 戶型二:農村二層小別墅設計圖,外觀效果圖美觀、精致圖紙介紹:本戶型為帶車庫、帶露臺的二層小別墅設計圖,車庫可以做成雙車庫,本方案外觀經典,紅色屋頂,淺黃色的外墻,底部是文化磚,整體看起來精神,戶型以實用為主,功能齊全,布局合理。 ![]() 占地面積:14.0m*11.8m,165平方米左右; 建筑層高:二層; 建筑高度:9.9米(含屋頂); 設計功能: 一層房屋戶型:客廳、餐廳、廚房、臥室、樓梯間、衛生間、多功能區(自定義,可隔斷)、車道(車庫x2或車庫x1+儲藏室); 二層房屋戶型:小客廳、主臥(帶衛生間)、臥室x2、書房、衛生間、露臺; ![]() ![]() 戶型三:農村4間兩層樓房設計圖,戶型方正,四平八穩圖紙介紹:農村4間兩層樓房設計圖,戶型方正,四平八穩的二層農村別墅。,方正的房子戶型形狀,可以使氣的能量產生平衡的循環流動,不會產生太過或不及的禍患,從而有益于宅主的身心健康。 ![]() 占地面積:15.2m*11.6m,180平方米左右; 建筑層高:二層; 建筑高度:11米(含屋頂); 設計功能: 一層戶型:客廳、餐廳、廚房、衛生間、主臥(帶衛生間)、臥室; 二層戶型:臥室(帶衛生間、衣帽間)×2、臥室(帶衛生間)×2、洗衣房、露臺; ![]() ![]() 以上就是農村簡單大氣最新房子款式,樣式新穎,外觀靚麗,接地氣,不張揚,非常符合我們農村老百姓人的眼光。
圖紙之家-專注農村別墅/自建房設計18年,集合國內200余位經驗豐富的設計師,被評為口碑最好的農村建筑設計公司! |

爆火農村養老房設計:16 米面寬一層戶型,自住養老全拿捏
占地:169.87平方米
歐式新農村三層復式樓自建房別墅圖紙,旋轉樓梯設計
占地:128平方米
豪華高端三層帶地下室別墅設計圖,可帶電梯
占地:210平方米
經典四合院別墅設計圖,復式挑空客廳讓四合院更高端
占地:175平方米左右
面寬13米三層新中式獨棟別墅設計圖,復式自建房戶型方案
占地:201.25平方米
160平方米二層自建別墅設計施工建筑圖紙及效果圖,15x11米
占地:163平方米
12×11米兩層農村建房圖紙,農村建房最佳戶型,簡單的風格
占地:140平方米
占地200平米簡歐三層農村別墅設計圖,既顯華麗又接地氣
占地:209.27平方米
8.5×12米四層歐式房屋設計圖紙,占地100平,落地窗中嵌入了雕花
占地:100平方米
農村18萬元二層小樓圖紙,漂亮實用的農村二層樓房設計圖
占地:140平方米
大氣豪華四層別墅設計圖紙,占地180平米左右
占地:180平方米
平屋頂12米寬別墅三層設計圖,平頂照樣建的漂亮
占地:129.6平方米
歐式大氣三層小別墅設計圖紙,外觀、造型大方,色彩明快
占地:140平方米
鄉村別墅現代風平屋頂四層自建房設計圖,簡約時尚
占地:144.7平方米
100平二層精致小別墅房屋設計圖,外觀精致、漂亮
占地:100平方米
占地200平米時尚現代三層農村別墅設計圖,簡簡單單百看不厭
占地:202.95平方米
兩層平屋頂帶地下室別墅設計方案(全套自建房施工圖+效果圖)
占地:152.55平方米
農村一層中式三合院別墅設計圖紙,外觀漂亮極了
占地:195平方米
兩層半20萬農村自建房,占地120平米左右
占地:120平方米
農村二層復式小別墅設計,進深12米,農村建房最受歡迎的款
占地:149.096 平方
推薦:10套新農村自建房設計圖,2026年最新設計
閱讀次數:4825737次
100套鄉村別墅圖片大全,2026年最新設計
閱讀次數:2492203次
6款農村蓋一層平房的設計圖,10萬元就能建起來
閱讀次數:1852637次
這11個一層農村自建房別墅火爆了朋友圈!我最喜歡戶型十!你呢
閱讀次數:750268次
農村6萬元建一層小別墅圖,你敢相信嗎
閱讀次數:567686次
農村5萬塊就能自建房,6套普通房子設計圖分享,你沒看錯!
閱讀次數:419410次
8套農村漂亮三間平房圖片,非常適合在農村修建!
閱讀次數:411197次
農村自建房化糞池怎么做?附方案及施工過程
閱讀次數:391783次
農村一層三間平房設計圖,告別土氣養老房,讓人忍不住點贊
閱讀次數:350581次
新農村二層樓房圖片造價12萬,挑一套回家建房吧!
閱讀次數:349126次
