
|
一層平房新農村自建別墅,造價20萬以內,占地面積200平米左右,設計新穎,沉穩大氣,獨一無二。在農村建套一層的平房,不僅住著舒服,而且造價經濟實惠。
如圖一層的農村自建房,入口在正中,建議入口兩側加門廊,一可防風雨,二如果前面走廊封閉的話,平時開窗可通風,關上窗戶冬天便于保暖。
這是從屋頂看上去的效果,這個是造價略微高點,也可不要坡屋頂,只需要在女兒墻部分加上一定高度的坡屋檐即可,人視角度效果差別不大。
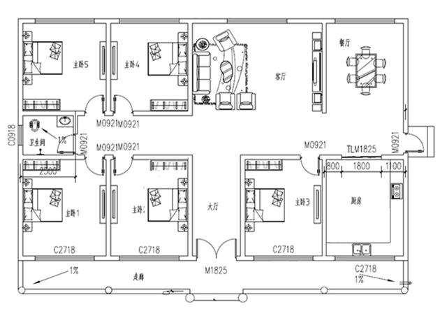
可以看下平面,右側是客廳、餐廳、客臥和廚房,右側的房間是可以南北向互換的,也可以客廳、餐廳在南側,客臥、廚房在北側,看個人喜好。左側為四間臥室,可充分滿足農村三代人的需求。
立面整體對稱,這樣雖然是一層,但是比較有氣勢。 圖紙之家-專注農村別墅/自建房設計18年,集合國內200余位經驗豐富的設計師,被評為口碑最好的農村建筑設計公司! |

農村三層私人住宅設計圖紙及效果圖,帶車庫,帶露臺
占地:150平方米
三間三層樓房設計圖紙,復試的設計,漂亮的一塌糊涂
占地:175平方米
平屋頂二層自建房帶商鋪別墅設計圖紙及外觀圖
占地:225平方米
新農村自建20萬二層小樓外觀圖及戶型圖,簡單大方,漂亮接地氣
占地:130平方米
占地70平米一層小戶型別墅設計圖,功能齊全造價低,耐看實用
占地:70.19平方米
新中式三層別墅,旋轉樓梯+挑空客廳,高級感拉滿
占地:125平方米
新款漂亮農村三層別墅建筑設計圖紙帶效果圖片,3種戶型
占地:125平方米
50萬左右農村三層別墅設計圖紙,帶大露臺,外觀大氣
占地:150平方米
農村四間兩層樓房設計圖,外觀時尚,戶型實用
占地:180平方米
二層復式農村豪宅別墅設計圖,挑空客廳旋轉樓梯高級感十足
占地:215.43平方米
11.5米乘 11.5米自建房:兩層設計 + 戶型方正,誰看誰心動
占地:128.77平方米
農村二層半樓房效果圖及全套設計圖紙,自建房簡單實用
占地:121平方米
農村一層半房屋設計圖,帶外觀效果圖,外觀時尚
占地:155平方米
高端大氣四層復式別墅房屋設計圖,含外觀效果圖
占地:270平方米
人氣頗高的三層新中式別墅方案,五種戶型,五種尺寸
占地:120-165平方米
20萬左右普通農村房子設計圖,二層簡約小別墅
占地:140平方米
豪華歐式三層別墅住宅設計圖紙,占地面積150平方米
占地:150平方米
經典四合院別墅設計圖,復式挑空客廳讓四合院更高端
占地:175平方米左右
農村三層樓房圖造價26萬,客廳中空,占地90平米
占地:90平方米
漂亮時尚二層樓房設計圖紙,經濟實用,戶型通透
占地:150平方米
推薦:10套新農村自建房設計圖,2026年最新設計
閱讀次數:4825737次
100套鄉村別墅圖片大全,2026年最新設計
閱讀次數:2492203次
6款農村蓋一層平房的設計圖,10萬元就能建起來
閱讀次數:1852637次
這11個一層農村自建房別墅火爆了朋友圈!我最喜歡戶型十!你呢
閱讀次數:750268次
農村6萬元建一層小別墅圖,你敢相信嗎
閱讀次數:567686次
農村5萬塊就能自建房,6套普通房子設計圖分享,你沒看錯!
閱讀次數:419410次
8套農村漂亮三間平房圖片,非常適合在農村修建!
閱讀次數:411197次
農村自建房化糞池怎么做?附方案及施工過程
閱讀次數:391783次
農村一層三間平房設計圖,告別土氣養老房,讓人忍不住點贊
閱讀次數:350581次
新農村二層樓房圖片造價12萬,挑一套回家建房吧!
閱讀次數:349126次
