
|
很多人雖然不常在農村老家,但也愿意在老家建一棟房子,對于他們來說,老家的房子是自己的歸宿。無論在外打拼多苦多累,只要老家的房子還在,就有一條退路、一個寄托。 給大家分享6套農村別墅設計,各有特點、精致漂亮,簡直是“回家的誘惑”! 第一套
正面效果圖
背面效果圖
鳥瞰圖 占地面積:12.0m*13.5m,146平方米左右; 建筑高度:9.75米(含屋頂); 設計功能: 一層:玄關、客廳、餐廳、廚房、衛生間、主臥(帶衛生間)、 娛樂室、儲藏間; 二層:起居室、主臥(帶衛生間)×2、臥室x2、衛生間、書房、露臺;
一層平面圖
二層平面圖
立面圖 第二套
正面效果圖
背面效果圖
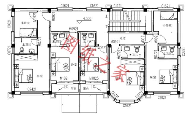
鳥瞰圖 占地面積:18.0m*9.0m,170平方米左右; 建筑高度:11.1米(含屋頂); 設計功能: 一層:客廳、餐廳、廚房、衛生間、臥室(帶衛生間)×2; 二層:臥室(帶衛生間、小臥室)×2、臥室(帶衛生間)×3;
一層平面圖
二層平面圖
屋頂平面圖
立面圖 第三套
正面效果圖
背面效果圖
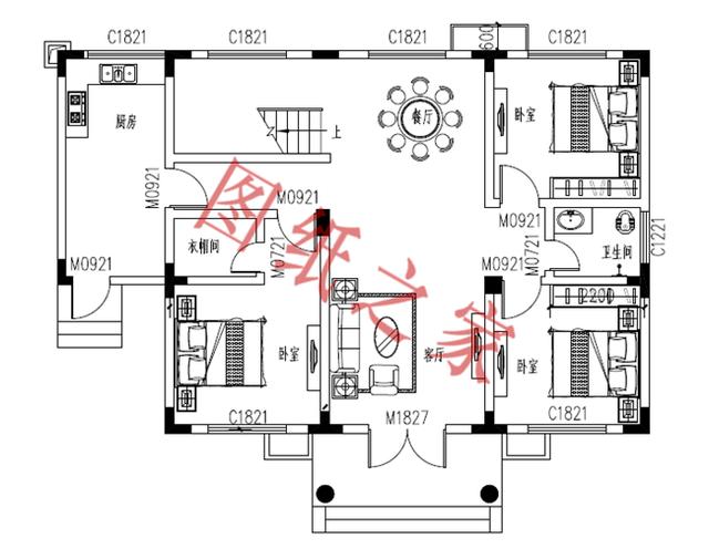
鳥瞰圖 占地面積:14.6m*11.6m,150平方米左右; 建筑高度:9.8米(含屋頂); 設計功能: 一層:客廳、餐廳、廚房、衛生間、主臥×2、書房; 二層:休閑廳、主臥(帶衛生間、衣帽間、小露臺)、臥室×2、書房、衛生間;
一層平面圖
二層平面圖
立面圖 第四套
正面效果圖
背面效果圖
鳥瞰圖 占地面積:13.5m*10.2m,110平方米左右; 建筑高度:9.77米(含屋頂); 設計功能: 一層:客廳、餐廳、廚房、衛生間、主臥(帶衣帽間)、臥室×2; 二層:客廳、、臥室x3、書房、衛生間、陽臺、露臺;
一層平面圖
二層平面圖
立面圖 第五套
正面效果圖
背面效果圖
鳥瞰圖 占地面積:20.5m*14.6m,240平方米左右; 建筑高度:9.9米(含屋頂); 設計功能: 一層:堂屋、客廳、餐廳、廚房、土灶房、衛生間×2、臥室×2、棋牌室、儲藏間、車庫; 二層:休閑廳、主臥(帶衛生間)×3、臥室x2、衛生間、大露臺;
一層平面圖
二層平面圖
立面圖 第六套
正面效果圖
背面效果圖
立面圖 占地面積:15.6m*10.9m,160平方米左右; 建筑高度:10.00米(含屋頂); 設計功能: 一層:中堂、客廳、餐廳、廚房、衛生間、臥室×2; 二層:起居室、主臥(帶衛生間,衣帽間)、臥室x2、臥室(帶露臺)、多功能室、衛生間、露臺;
一層平面圖
二層平面圖
立面圖 這6套別墅的效果圖,你最喜歡哪一套? 圖紙之家-專注農村別墅/自建房設計18年,集合國內200余位經驗豐富的設計師,被評為口碑最好的農村建筑設計公司! |

125平兩層別墅房屋設計圖,帶普通和復式兩個戶型
占地:125平方米
110平方米新農村實用現代的二層建筑設計圖紙帶外觀圖11X10米
占地:110平方米
新中式別墅一層自建房設計,戶型實用緊湊
占地:170.54平方米
農村二層帶車庫四合院別墅設計圖,新中式外觀圖片,戶型實用方
占地:247平方米
高端大氣三層歐式別墅設計圖,客廳中空,旋轉樓梯
占地:150平方米
農村一層平房設計圖及效果圖,一層房屋設計方案推薦
占地:270平方米
面寬8米農村二間二層小別墅設計方案,施工簡單造價低
占地:73.77平方米
現代風格二層別墅設計圖,外觀時尚、大氣
占地:153平方米
農村二層住宅設計圖,大窗戶客廳,一起享受大面積采光的溫暖
占地:220平方米
帶架空層一層農村別墅設計圖,回鄉建房優選,家有豪宅幸福來敲
占地:124.76平方米
3款簡單舒適二層別墅設計圖,低調配色,造型簡單大氣
占地:多戶型可選
12.8乘10米一層平房別墅設計圖,四室二廳南北通透
占地:128.85平方米
二層小別墅外觀圖片,別墅圖紙,外觀時尚,布局簡單實用,挑空
占地:230平方米
農村2開間三層經濟別墅設計圖,9.6米面寬,實用布局
占地:127.68平方米
20萬左右農村雙拼別墅住宅設計圖,簡單小戶型設計
占地:120平方米
13.5米乘11米兩層半別墅設計圖,中式與現代相融合
占地:148.5平方米
最美二層樓別墅圖片大全及全套建筑設計圖紙,20萬左右
占地:140平方米
新中式二層農村別墅設計圖紙及外觀圖,面寬15米左右
占地:148.86平方米
90平小戶型四層房屋設計圖,農村自建別墅推薦
占地:90平方米
豪華雙拼三層別墅設計圖,在農村建一棟,將是最靚的風景!
占地:186.85平方米
推薦:10套新農村自建房設計圖,2026年最新設計
閱讀次數:4825737次
100套鄉村別墅圖片大全,2026年最新設計
閱讀次數:2492203次
6款農村蓋一層平房的設計圖,10萬元就能建起來
閱讀次數:1852637次
這11個一層農村自建房別墅火爆了朋友圈!我最喜歡戶型十!你呢
閱讀次數:750268次
農村6萬元建一層小別墅圖,你敢相信嗎
閱讀次數:567686次
農村5萬塊就能自建房,6套普通房子設計圖分享,你沒看錯!
閱讀次數:419410次
8套農村漂亮三間平房圖片,非常適合在農村修建!
閱讀次數:411197次
農村自建房化糞池怎么做?附方案及施工過程
閱讀次數:391783次
農村一層三間平房設計圖,告別土氣養老房,讓人忍不住點贊
閱讀次數:350581次
新農村二層樓房圖片造價12萬,挑一套回家建房吧!
閱讀次數:349126次
