
|
如何營造別墅的高端感,很多人很頭痛,歐式別墅總有些說不出的土氣,要不人們一看到就土豪土豪的叫呢?想建現代風,又不知道從何下手,畢竟越是簡約越難設計。今天帶來的是國外的一款實景現代風別墅,高端的感覺隔著屏幕都感受的到,不需要大面積,簡簡單單80平足夠,小卻不容忽視,趕快學習起來,學到一般足以稱霸全村,準備存圖咯!
遠觀層次十足,純白的設計很亮眼,絲毫不會顯得單調。
近看一下,設計感爆棚,一層較為粗糙的石料的運用和光滑的真石漆產生材質對比,顯得高端美觀,不得不說現代風別墅跟暖色光太配了, 削弱了冰冷感,更有家的氛圍,
像這樣一棟遺世而獨立的小別墅更要配上一個小花園,不需要過多打理,展現自然的魅力,簡簡單單的和建筑就很搭。
室內設計依舊簡約,但木質的運用更顯柔和溫度。值得學習臺階的設計。
壁櫥很有設計感同樣也和實用。
超大的窗戶,全方位展現戶外美景,足不出戶也能感受自然。
升降榻榻米很實用,有朋友來喝喝茶打打牌,愜意萬分。
廚房同樣簡約時尚。
俯瞰圖
一層緊湊和諧,開放式的廚房更顯時尚簡約氣質,兩個房間讓你不再害怕朋友突然的留宿。
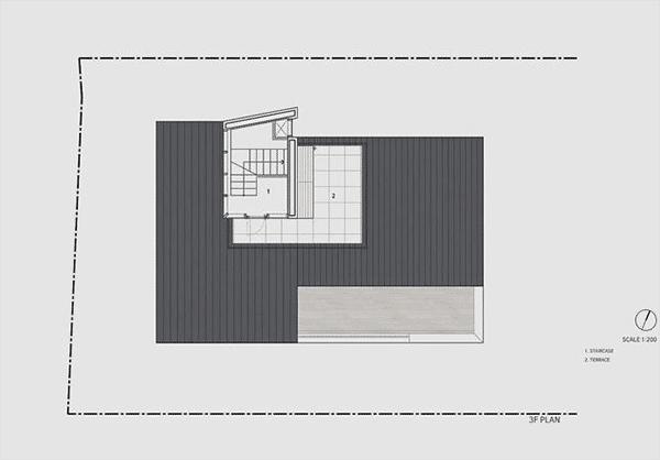
二樓的設計更加自由,可以按自己的喜好設計成房間或者書房。超大的露臺實用而美觀。
三層面積不大可以觀景或者做一個小花園,打造屬于自己的空間。 圖紙之家-專注農村別墅/自建房設計18年,集合國內200余位經驗豐富的設計師,被評為口碑最好的農村建筑設計公司! |

簡單經濟一層自建養老房,12米乘9.5米,溫暖舒適施工簡單
占地:103.2平方米
L字型自建房屋設計圖,一層別墅類型,外觀效果圖漂亮
占地:188.62平方米
高端歐式四層別墅房屋施工圖紙及效果圖,圓弧大窗
占地:170平方米
三層農村小別墅設計圖,一層帶商鋪,占地110平米,經濟實用
占地:110平方米
大氣農村三層歐式雙拼別墅全套施工圖紙,帶堂屋設計,外觀圖片
占地:196.056平方米
三層新農村小別墅設計圖紙,占地120平米,客廳中空,帶大露臺
占地:120平方米
農村一層平房設計圖及效果圖,一層房屋設計方案推薦
占地:270平方米
農村兩層新中式別墅圖紙設計圖,外觀圖片大氣,21萬左右
占地:108平方米
170平方米新農村實用的三層雙拼設計圖紙,帶公用堂屋!
占地:173.62平方米
農村帶地下室二層半自建房屋設計圖,樓中樓設計,歐式風格
占地:140平方米
面寬20米大氣的農村二層別墅設計圖,戶型帶車庫和土灶房設計
占地:250.85平方米
140平方米新農村四層房屋設計圖紙,農村自建推薦
占地:140平方米
兩層三間農村房屋設計圖,新農村住宅方案推薦
占地:155平方米
90平-100平小戶型一層三間平房農村別墅設計圖方案戶型
占地:多戶型可選
95平米二層別墅必蓋戶型圖,造型洋氣,布局接地氣,趕緊回村建
占地:95.38平方米
農村二層中式小三合院別墅全套設計圖,民族特色風格
占地:122平方米
農村現代新中式三合院設計圖及效果圖片,外觀好看極了
占地:多戶型可選
徽派自建房一層設計圖,七字型設計,獨立餐廚便捷實用
占地:171.65平方米
140平三層別墅房屋設計圖,含外觀圖片,外觀現代時尚
占地:143平方米
兩戶250平方米農村豪華歐式三層兄弟雙拼別墅設計圖
占地:251平方米
推薦:10套新農村自建房設計圖,2026年最新設計
閱讀次數:4825737次
100套鄉村別墅圖片大全,2026年最新設計
閱讀次數:2492203次
6款農村蓋一層平房的設計圖,10萬元就能建起來
閱讀次數:1852637次
這11個一層農村自建房別墅火爆了朋友圈!我最喜歡戶型十!你呢
閱讀次數:750268次
農村6萬元建一層小別墅圖,你敢相信嗎
閱讀次數:567686次
農村5萬塊就能自建房,6套普通房子設計圖分享,你沒看錯!
閱讀次數:419410次
8套農村漂亮三間平房圖片,非常適合在農村修建!
閱讀次數:411197次
農村自建房化糞池怎么做?附方案及施工過程
閱讀次數:391783次
農村一層三間平房設計圖,告別土氣養老房,讓人忍不住點贊
閱讀次數:350581次
新農村二層樓房圖片造價12萬,挑一套回家建房吧!
閱讀次數:349126次
