
|
城里的商品房,房價高不說,產權還只有70年。不像農村的房子是個人財產,雖然宅基地是村集體的,但是房子是可以繼承的,就是說,這塊宅基地可以一直更新房子。所以回村里蓋一棟別墅真是一個不錯的選擇,等我們老了還可以回農村養老。 今天帶來2套三層農村別墅設計,附帶效果圖和平面圖,超級經典實用。 第一套
正面效果圖
背面效果圖
鳥瞰圖 占地面積:10.76m*10.76m,一層建筑面積120平方米左右; 建筑高度:12.00米(含屋頂); 設計功能: 一層戶型:客廳、餐廳、廚房、臥室、衛生間、洗衣房(儲藏間或去掉)、儲藏間(樓梯下); 二層戶型:客廳、主臥(帶衛生間)、臥室x2、衛生間、棋牌室(或書房); 三層戶型:健身房、臥室x2、衛生間、大露臺;
一層平面圖
二層平面圖
三層平面圖
立面圖 第二套
正面效果圖
背面效果圖 占地面積:13.74m*12.67m,170平方米左右; 建筑高度:12.10米(含屋頂); 設計功能: 一層戶型:大廳、客廳、餐廳、廚房、臥室x2、衛生間、儲藏間; 二層戶型:客廳、主臥(帶書房、衛生間、衣帽間)、臥室(帶衣帽間)、臥室、衛生間、陽臺; 三層戶型:臥室(帶衣帽間)、臥室、娛樂健身房、衛生間、大露臺;
一層平面圖
二層平面圖
三層平面圖
屋面平面圖
立面圖 第三套
別墅效果圖一
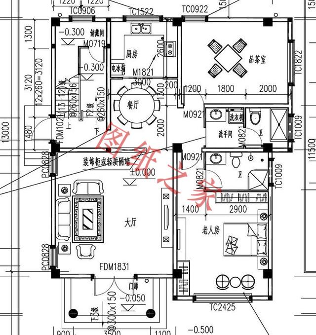
別墅效果圖二 占地面積:10.0m*13.5m,135平方米左右; 建筑高度:12.00米(含屋頂); 設計功能: 一層戶型:客廳、主臥(帶衛生間)、品茶室(可做臥室)、廚房、餐廳、衛生間、儲藏間(樓梯下); 二層戶型:客廳、主臥(帶衛生間)、臥室x2、衛生間(附淋浴房); 三層戶型:家庭活動房(健身房、棋牌室、家庭影院等)、主臥(帶衛生間)、臥室、屋面露臺;
一層平面圖
二層平面圖
三層平面圖
立面圖 第四套
別墅效果圖 占地面積:10.5m*11.5m,一層建筑面積120平方米左右; 建筑高度:12.688米(含屋頂); 設計功能: 一層戶型:客廳、餐廳、廚房、臥室、衛生間、衛生間(樓梯下面); 二層戶型:客廳、臥室x3、衛生間; 三層戶型:臥室x3、衛生間、大露臺;
一層平面圖
二層平面圖
三層平面圖
立面圖 第五套
別墅效果圖 占地面積:14.5m*12.4m,175平方米左右; 建筑高度:14.33米(含屋頂); 設計功能: 一層戶型:大廳、客廳、廚房、餐廳、主臥(帶衛生間)、臥室、衛生間、儲藏間(樓梯下面); 二層戶型:客廳、臥室(帶書房)、臥室x3(都帶衛生間,可以根據情況選擇不帶)、衛生間; 三層戶型:客廳、臥室x4(其中2個帶衛生間)、衛生間、露臺;
一層平面圖
二層平面圖
三層平面圖
立面圖 第六套
別墅效果圖 占地面積:9.0m*10.5m,95平方米左右; 建筑高度:11.5米(含屋頂); 設計功能: 一層戶型:客廳、主臥(帶衛生間)、衛生間、廚房、餐廳; 二層戶型:小客廳、主臥(帶衛生間)、衛生間、臥室x2、陽臺、露臺; 三層戶型:娛樂廳、臥室x2、衛生間、衣帽間、露臺;
一層平面圖
二層平面圖
三層平面圖
立面圖 這6套別墅的設計圖,你最喜歡哪一套? 圖紙之家-專注農村別墅/自建房設計18年,集合國內200余位經驗豐富的設計師,被評為口碑最好的農村建筑設計公司! |

最美農村一層合院設計圖紙,自建一棟火遍十里八鄉
占地:190平方米左右
復式、旋轉樓梯三層別墅設計方案圖,戶型合理、實用
占地:138平方米
大戶型美觀一層平房自建房設計圖,面寬19米左右
占地:245.1平方米
帶地下室一層別墅設計方案,功能布局齊全實用
占地:256.5平方米
農村10萬元一層小別墅設計圖紙,戶型實用又合理
占地:130平方米
2026年新款別墅外觀圖,新中式風格,比簡歐大氣,時尚
占地:135平方米
中國最美的四合院別墅設計圖方案,復式挑空客廳戶型
占地:343.57平方米
100平方米自建房二層設計圖紙及效果圖,12x9米
占地:100平方米
開間20米雙拼別墅三層設計圖,兄弟合建省時省力又省心
占地:205.8平方米
二層樓房設計圖,占地120平米左右,符合現代農村的建房政策
占地:120平方米
農村一層四開間養老別墅設計圖,造型美布局佳
占地:164.27平方米
帶車庫三層自建別墅設計圖紙,客廳中空,外觀洋氣時尚,這款戶
占地:170平方米
五開間農村豪華三層別墅設計圖,大格局大氣派,大家庭建房首選
占地:227.04平方米
單棟多戶三層別墅設計圖,適合兩三家一起住
占地:125平米
經典實用的新農村三層房屋設計圖紙,推薦自建使用
占地:165平方米
12X14米四層農村自建別墅設計圖,功能設計豐富齊全
占地:157平方米
150平米一層7字型別墅設計方案,功能齊全舒適簡約,設計感十足
占地:154.48平方米
農村二層別墅優選設計圖,戶型小巧精致,顏值與實用并存!
占地:95.25平方米
15米面寬田園風一層別墅!戶型新穎太吸睛,看過都想建
占地:141.13平方米
240平農村二層自建別墅設計圖紙,帶你體驗家的溫馨
占地:240平方米
推薦:10套新農村自建房設計圖,2026年最新設計
閱讀次數:4825737次
100套鄉村別墅圖片大全,2026年最新設計
閱讀次數:2492203次
6款農村蓋一層平房的設計圖,10萬元就能建起來
閱讀次數:1852637次
這11個一層農村自建房別墅火爆了朋友圈!我最喜歡戶型十!你呢
閱讀次數:750268次
農村6萬元建一層小別墅圖,你敢相信嗎
閱讀次數:567686次
農村5萬塊就能自建房,6套普通房子設計圖分享,你沒看錯!
閱讀次數:419410次
8套農村漂亮三間平房圖片,非常適合在農村修建!
閱讀次數:411197次
農村自建房化糞池怎么做?附方案及施工過程
閱讀次數:391783次
農村一層三間平房設計圖,告別土氣養老房,讓人忍不住點贊
閱讀次數:350581次
新農村二層樓房圖片造價12萬,挑一套回家建房吧!
閱讀次數:349126次
