
|
一個樓盤好不好,主要看它的銷量;同樣,一套農村自建別墅設計的合不合理,也要看它修建的數量。任何受大家歡迎的失誤,其中都有它的優點。今天給大家分享5套二層別墅設計,適合大家在農村自己修建別墅,一起來看看吧。 第一套
效果圖一正面
效果圖一背面
效果圖二正面
效果圖二背面 占地面積:16.00m*10.9m,一層建筑面積160平方米左右; 建筑高度:9.57米(含屋頂); 設計功能: 一層戶型:玄關、客廳、餐廳、廚房、雜物間、臥室x2、衛生間; 二層戶型:起居室、臥室x4、衛生間、露臺
一層平面圖
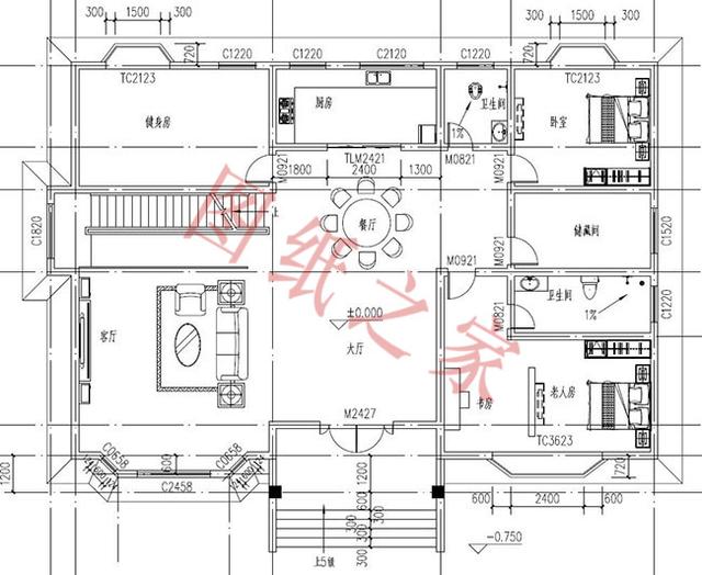
二層平面圖
立面圖 第二套
正面效果圖
背面效果圖 占地面積:11.1m*10.6m,120平方米左右; 建筑高度:10.13米(含屋頂); 設計功能: 一層戶型:玄關、客廳、餐廳、廚房、臥室x2、、衛生間; 二層戶型:起居室、主臥(帶書房/衣帽間)、次臥x3、衛生間; 悶頂層:功能自定義
一層平面圖
二層平面圖
悶頂層平面圖
立面圖 第三套
別墅效果圖一
別墅效果圖二 占地面積:13.5m*13.5m,一層建筑平房170平左右; 建筑高度:10.00米(含屋頂); 設計功能: 一層戶型:客廳、餐廳、廚房、臥室x2、衛生間、衛生間(樓梯下,可以做儲藏間); 二層戶型:起居室、書房、臥室x3、大露臺、陽臺; 悶頂層:功能自定義
一層平面圖
二層平面圖
悶頂層平面圖
立面圖 第四套
別墅效果圖 地面積:20.5m*13.0m,260平方米左右; 建筑高度:10.26米(含屋頂); 設計功能: 一層戶型:門廳、客廳、餐廳、廚房、主臥(帶衛生間)、健身房(可做臥室或娛樂室)、臥室、衛生間、儲藏間; 二層戶型:客廳上空、主臥(帶衛生間、衣帽間、書房);臥室x3(帶衛生間);露臺;
一層平面圖
二層平面圖
立面圖 第五套
別墅效果圖 占地面積:11.48m*15.48m,178平方米左右; 建筑高度:8.4米(含屋頂); 設計功能: 一層戶型:門廳、客廳、餐廳、廚房、主臥(帶衛生間)、次臥、衛生間、儲藏間; 一層半:樓梯上到一層半,可以進入露臺; 二層戶型:客廳上空、主臥(帶衛生間)、臥室x2、衛生間、書房、衣帽間;【衣帽間可以去掉,更寬敞】
一層平面圖
二層平面圖
露臺平面圖
立面圖 這5套別墅的設計圖,你最喜歡哪一套? 圖紙之家-專注農村別墅/自建房設計18年,集合國內200余位經驗豐富的設計師,被評為口碑最好的農村建筑設計公司! |

150平米簡歐三層農村別墅設計圖,低調又奢華
占地:151.2平方米
簡歐式三層小別墅設計圖,帶地下室,客廳中空,占地150平米
占地:150平方米
七字形農村自建房二層設計圖,“L”型別墅設計,簡約時尚!
占地:209平米左右
200平米左右二層樓房設計圖,外觀看著舒服、布局住著坦然
占地:190平方米
農村仿古四合院設計圖自建房,外觀中式古樸典雅
占地:378平方米
2026新款新式農村50萬三層別墅圖片,帶地下室,美觀大氣
占地:130平方米左右
130平米徽式古典風格的三層自建房屋別墅設計圖紙,戶型合極佳,
占地:130平米
廚房餐廳在配房的歐式三層農村別墅設計方案,華麗又宜居
占地:177.58平方米
農村4間2層樓房設計圖,帶車庫,外觀時尚,帶屋頂花園
占地:210平方米
農村三合院設計圖及效果圖,自建三合院圖紙
占地:470平方米
兄弟四間三層雙拼別墅設計圖,造價40萬左右
占地:210平方米
新農村自建房設計圖及效果圖大全,新農村住宅精選
占地:112平方米
歐式三層豪宅樓設計圖紙及外觀效果圖,占地180平左右
占地:177.82平方米
帶地下室+挑空客廳,農村三層洋樓別墅誰家圖在
占地:97.74平方米
兩層半帶閣樓別墅房屋設計圖,含外觀效果圖片
占地:118平方米
兩層半30萬農村自建房別墅設計圖紙,客廳挑空,帶大露臺
占地:130平方米
帶獨立廚房的二層自建房設計圖,大戶型方案
占地:233平方米
異形宅基地二層農村別墅設計圖,現代風時尚又大氣
占地:242.03平方米
新中式別墅一層自建房設計,戶型實用緊湊
占地:170.54平方米
130平四間二層小洋樓設計圖,含外觀圖片
占地:130平方米
推薦:10套新農村自建房設計圖,2026年最新設計
閱讀次數:4825737次
100套鄉村別墅圖片大全,2026年最新設計
閱讀次數:2492203次
6款農村蓋一層平房的設計圖,10萬元就能建起來
閱讀次數:1852637次
這11個一層農村自建房別墅火爆了朋友圈!我最喜歡戶型十!你呢
閱讀次數:750268次
農村6萬元建一層小別墅圖,你敢相信嗎
閱讀次數:567686次
農村5萬塊就能自建房,6套普通房子設計圖分享,你沒看錯!
閱讀次數:419410次
8套農村漂亮三間平房圖片,非常適合在農村修建!
閱讀次數:411197次
農村自建房化糞池怎么做?附方案及施工過程
閱讀次數:391783次
農村一層三間平房設計圖,告別土氣養老房,讓人忍不住點贊
閱讀次數:350581次
新農村二層樓房圖片造價12萬,挑一套回家建房吧!
閱讀次數:349126次
