
|
雖然現在的農村自建房已經十分普遍,但是對于一般家庭來說,建房子還是一輩子只有一次的大事,可一定要仔細慎重。在我看來,建房不僅要考慮實用性和美觀性,還需要考慮房屋的造價,有多少預算就建什么樣的房子。 下邊給大家推薦3套農村三層別墅,占地150平,內有7個臥室,簡單大氣,村里人都搶著建! 第一套
正面效果圖
鳥瞰效果圖
背面效果圖 占地面積:12.00m*13.00m,占地155平方米左右; 建筑層高:三層; 建筑高度:12.33米(含屋頂); 設計功能: 一 層:玄關、客廳、廚房、餐廳、臥室、衛生間、車庫;【廚房和臥室可以對調】 二 層:客廳、臥室(帶書房)、臥室x3、衛生間; 三 層:臥室x2、書房、娛樂室、露臺x2;
一層平面圖
二層平面圖
三層平面圖 第二套
正面效果圖
背面效果圖 占地面積:13.74m*12.67m,160平方米左右; 建筑層高:三層; 建筑高度:12.10米(含屋頂); 設計功能: 一 層:大廳、客廳、餐廳、廚房、臥室x2、衛生間、儲藏間; 二 層:客廳、主臥(帶書房、衛生間、衣帽間)、臥室(帶衣帽間)、臥室、衛生間、陽臺; 三 層:臥室(帶衣帽間)、臥室、娛樂健身房、衛生間、大露臺;
一層平面圖
二層平面圖
三層平面圖 第三套
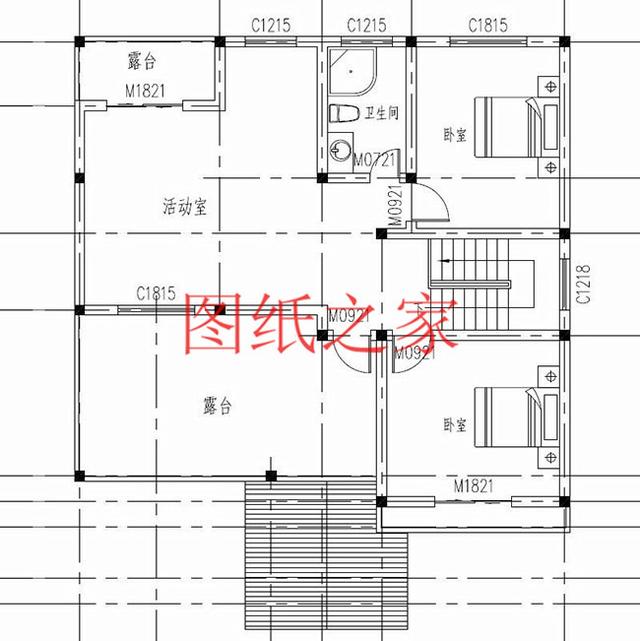
別墅效果圖 占地面積:11.40m*13.2m,占地150平左右; 建筑層高:三層; 建筑高度:11.325米(含屋頂); 設計功能: 一 層:門廳、客廳、廚房、餐廳、衛生間、臥室X2; 二 層:起居室、主臥(帶衣帽間、衛生間)、露臺、小臥室、陽臺、書房、衛生間、臥室; 三 層:臥室X2、陽臺、露臺X2、活動室、衛生間;
一層平面圖
二層平面圖
三層平面圖
圖紙之家-專注農村別墅/自建房設計18年,集合國內200余位經驗豐富的設計師,被評為口碑最好的農村建筑設計公司! |

歐式風二層別墅設計圖,帶陽光房設計,時尚美觀還很實用
占地:多戶型可選
面寬13米帶堂屋三層農村別墅圖,新中式大氣風格
占地:151.58平方米
120平米三層小別墅設計方案和效果圖,端莊大氣很經典
占地:120平方米
農村三層自建房子圖紙設計方案,開間11米左右
占地:151.96平方米
現代二層農村別墅全套設計圖,大旋轉露臺+超大中空客廳
占地:133平方米
兄弟四間三層雙拼別墅設計圖,造價40萬左右
占地:210平方米
170平米自建三層房屋別墅設計圖紙及效果圖
占地:170平米
小L型新款二層別墅設計圖,復式客廳旋轉樓梯,14米乘13米
占地:182平方米
農村二層帶車庫四合院別墅設計圖,新中式外觀圖片,戶型實用方
占地:247平方米
2026新款戶型三層新農村別墅房屋設計圖紙,外觀對稱
占地:160平方米
堂屋共用的三層雙拼別墅設計圖,總占地面積245平米
占地:245平方米
農村二層舒適好房,這款四開間別墅設計圖真的很不錯
占地:220.46平方米
簡單實用的四層農村自建房屋設計圖,占地100平米左右
占地:100平方米
農村平屋頂中式合院設計圖,帶車庫帶庭院
占地:210平方米
高端三層帶地下室別墅房屋設計圖方案及效果圖
占地:135平方米
鄉下建房一層戶型圖及全套圖紙,養老房,還是一層好
占地:210平方米
現代三層農村房屋設計圖紙及效果圖,帶全套cad建筑圖
占地:95平方米
戶型獨特的、二層臥室挑高的別墅房屋設計圖,外觀簡歐風格
占地:250平方米
農村大氣四層樓房圖片及全套設計圖紙,復式客廳旋轉樓梯
占地:143平方米
古典韻味的四層房屋設計圖,占地140平米左右,這樣的外觀配上紅
占地:140平方米
推薦:10套新農村自建房設計圖,2026年最新設計
閱讀次數:4825737次
100套鄉村別墅圖片大全,2026年最新設計
閱讀次數:2492203次
6款農村蓋一層平房的設計圖,10萬元就能建起來
閱讀次數:1852637次
這11個一層農村自建房別墅火爆了朋友圈!我最喜歡戶型十!你呢
閱讀次數:750268次
農村6萬元建一層小別墅圖,你敢相信嗎
閱讀次數:567686次
農村5萬塊就能自建房,6套普通房子設計圖分享,你沒看錯!
閱讀次數:419410次
8套農村漂亮三間平房圖片,非常適合在農村修建!
閱讀次數:411197次
農村自建房化糞池怎么做?附方案及施工過程
閱讀次數:391783次
農村一層三間平房設計圖,告別土氣養老房,讓人忍不住點贊
閱讀次數:350581次
新農村二層樓房圖片造價12萬,挑一套回家建房吧!
閱讀次數:349126次
