
|
在輕鋼別墅的設計方案中,二層和三層的結構無疑是最受歡迎的,特別是對于家庭人口較多的家庭,往往受限于宅基地的面積,二層甚至三層才能保證家人居住的空間和舒適度;而對于大多數的家庭,二層和三層的結構在保證居住性的同時,還能預留一些功能性房間,而且房間分配起來,也會更加的隨性和方便,不會有捉襟見肘的感覺。本期,我們推薦一款非常實用的二層輕鋼別墅設計方案,一層給父母,免去爬樓梯的辛勞,一層給自己,提高生活質量。
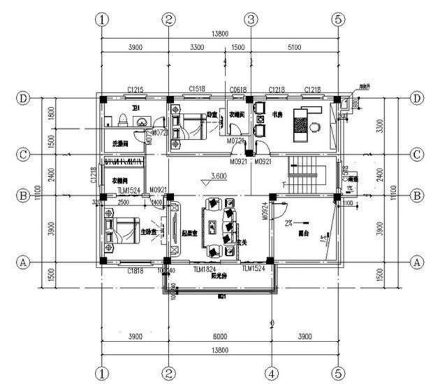
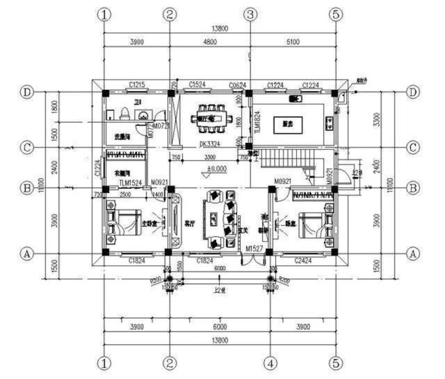
本戶型是農村二層輕鋼戶型,戶型方正,空間利用率高,外墻以暖色調為主,富有田園氣息,大面積的落地窗凸顯現代風格,整體美觀時尚,非常適合普通家庭居住。
一層有玄關、客廳、餐廳、廚房、臥室、衣帽間、衛生間。玄關做隔斷,避免開門見山;客廳與餐廳相連,整體面積大,方便招待;廚房是獨立的,油煙不容易跑出;有2間臥室,可以作為老人房使用;樓梯間有側門,進出方便。
二層有起居室、臥室、書房、陽光房、露臺、衛生間。起居室方便家人交流,與陽光房相鄰,光線充足;陽光房是室內休閑的場所,可以曬太陽喝茶;2間臥室都帶衣帽間,居住舒適;有個大露臺,可以用來晾曬衣服 圖紙之家-專注農村別墅/自建房設計18年,集合國內200余位經驗豐富的設計師,被評為口碑最好的農村建筑設計公司! |

農村15萬元一層半小樓圖,最新的戶型設計
占地:182.31平方米
小L型新款二層別墅設計圖,復式客廳旋轉樓梯,14米乘13米
占地:182平方米
農村16萬一層平房小院設計圖,左右對稱布局好,南北方都能建
占地:195.9平方米
210平米新農村自建二層施工圖紙,預留電梯位,美觀大氣舒適實用
占地:208.5平方米
鄉村中式四合院二層別墅設計圖,中式韻味十足
占地:223平方米左右
80多平米二層小型自建房設計圖,經濟舒適別具一格
占地:84.48平方米
農村三層樓房圖造價26萬,客廳中空,占地90平米
占地:90平方米
超實用的農村一層別墅設計圖,經濟實惠養老自住都不錯,
占地:128.35平方米
中式一層仿古自建平房設計圖,灰墻青瓦,外觀古香古色
占地:168.48平方米
高端三層豪宅別墅設計方案圖,帶地下室,過悠然愜意生活
占地:127.06平方米
一層新中式三合院設計,建好城里大平層都不香了
占地:294.12平方米
農村三層私人住宅設計圖紙及效果圖,帶車庫,帶露臺
占地:150平方米
小占地三層現代時尚風別墅設計圖,平屋頂占地不足100平
占地:98.35平方米
18×15米新中式高檔農村三層別墅設計圖,低調奢華又實用
占地:195.91平方米
簡歐式三層小別墅設計圖,帶地下室,客廳中空,占地150平米
占地:150平方米
農村四層復式樓房設計圖,外觀效果圖+全套圖紙
占地:108平方米
200平方米穩重大氣三層雙拼別墅建筑設計圖紙,含效果圖19.04米
占地:200平方米
預算10萬的簡單二層半別墅房屋設計圖,外觀簡單,造價低
占地:90平方米
農村17萬元一層自建別墅設計圖,外觀簡潔,戶型方正
占地:163平方米
140平方米兩層別墅CAD設計圖紙及效果圖,13x11米
占地:138平方米
推薦:10套新農村自建房設計圖,2026年最新設計
閱讀次數:4825737次
100套鄉村別墅圖片大全,2026年最新設計
閱讀次數:2492203次
6款農村蓋一層平房的設計圖,10萬元就能建起來
閱讀次數:1852637次
這11個一層農村自建房別墅火爆了朋友圈!我最喜歡戶型十!你呢
閱讀次數:750268次
農村6萬元建一層小別墅圖,你敢相信嗎
閱讀次數:567686次
農村5萬塊就能自建房,6套普通房子設計圖分享,你沒看錯!
閱讀次數:419410次
8套農村漂亮三間平房圖片,非常適合在農村修建!
閱讀次數:411197次
農村自建房化糞池怎么做?附方案及施工過程
閱讀次數:391783次
農村一層三間平房設計圖,告別土氣養老房,讓人忍不住點贊
閱讀次數:350581次
新農村二層樓房圖片造價12萬,挑一套回家建房吧!
閱讀次數:349126次
