
|
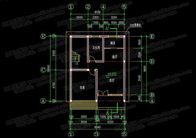
下面要給大家分享的這款三層農村自建房圖紙,前后帶露臺,戶型設計立體感豐富,帶有車庫,房子占地雖然不足一百平方米,但功能齊全,設計合理,可滿足農村人數不多的家庭居住,現在一起來看看圖紙詳細介紹。 圖紙詳情 層數: 三層 結構形式: 磚混結構 主體造價: 20萬 開間: 8.34米 進深: 10米 占地面積: 83.4平方米 建筑面積: 236平方米
這款三層自建房設計圖屬于小戶型,外墻采用比較親切溫馨的淡黃色為主色,二三層的露臺位置斜對角,讓房子外觀更具立體感,三層的凸窗也是設計亮點,既可增加室內的空間感,從外面看上去也很漂亮。房子背面還設有露臺,方便晾曬東西,同時也能欣賞周圍的美麗景色。 設計功能
一層平面圖 一 層: 廚房、餐廳、客廳、廁所、車庫
二層平面圖 二 層: 主臥、次臥、衛生間、起居室
立面圖 三 層: 2個臥室、衛生間、露臺 更多優質圖紙推薦:
1
2
3
4
5
6
圖紙之家-專注農村別墅/自建房設計18年,集合國內200余位經驗豐富的設計師,被評為口碑最好的農村建筑設計公司! |

200平方農村三層別墅房屋設計圖及效果圖,大戶型精選
占地:200平方米
新中式農村三層樓房設計圖,帶地下室,主體建筑面積110平米
占地:110平方米
13.5米乘11米兩層半別墅設計圖,中式與現代相融合
占地:148.5平方米
最漂亮的農村二層小樓房自建別墅設計圖紙及效果圖
占地:168平方米
異形宅基地二層農村別墅設計圖,現代風時尚又大氣
占地:242.03平方米
造價便宜的二層雙拼自建房設計方圖案,一塊宅基地建兩戶
占地:224平方米
鄉村簡約經濟型二層別墅設計圖紙(效果圖+全套施工方案)
占地:145平方米
小面寬大進深三層別墅圖紙設計,戶型非常實用經典
占地:171.39平方米
2026新款農村15萬元二層小樓圖,占地90平米左右
占地:多種戶型
新中式農村自建房三層設計圖,外觀布局均滿分
占地:142.18平方米
時尚的農村二層別墅圖紙設計,現代風格,簡約的外觀
占地:152平方米左右
125平方米新中式農村自建三層別墅建筑設計圖紙及效果圖
占地:124平方米
125平方米新農村三層自建別墅施工設計圖,13x10米
占地:125平方米
農村一層別墅設計圖,3室2廳帶書房,占地面積200平米左右
占地:200平方米
鄉村三層別墅施工圖紙帶效果圖,田園別墅設計圖紙推薦
占地:178平方米
農村最漂亮二層歐式別墅設計圖,面寬16.5米(含車庫)
占地:180.366
實用型二層別墅設計圖,簡單大方最耐看,16.5米乘11米
占地:150.94平方米
多臥室復式二層別墅房屋設計圖,含外觀效果圖
占地:175平方米
復式三層別墅設計圖片及全套圖紙,客廳中空,外觀為歐式建筑的
占地:175平方米
網紅農村一層小別墅設計圖,建一層的必看
占地:多戶型可選
推薦:10套新農村自建房設計圖,2026年最新設計
閱讀次數:4825737次
100套鄉村別墅圖片大全,2026年最新設計
閱讀次數:2492203次
6款農村蓋一層平房的設計圖,10萬元就能建起來
閱讀次數:1852637次
這11個一層農村自建房別墅火爆了朋友圈!我最喜歡戶型十!你呢
閱讀次數:750268次
農村6萬元建一層小別墅圖,你敢相信嗎
閱讀次數:567686次
農村5萬塊就能自建房,6套普通房子設計圖分享,你沒看錯!
閱讀次數:419410次
8套農村漂亮三間平房圖片,非常適合在農村修建!
閱讀次數:411197次
農村自建房化糞池怎么做?附方案及施工過程
閱讀次數:391783次
農村一層三間平房設計圖,告別土氣養老房,讓人忍不住點贊
閱讀次數:350581次
新農村二層樓房圖片造價12萬,挑一套回家建房吧!
閱讀次數:349126次
