圖紙介紹:125平方米新中式農村自建三層別墅建筑設計圖紙及效果圖,外觀簡潔干凈,造型美觀,別墅外觀采用乳白色外墻漆搭配朱紅色的外墻漆,色調溫馨,具有家的歸屬感。落地式的門窗增加了別墅的通透性。屋檐伸展出來較大,能更好地保護外墻和增加造型的美觀性。頂層利用露臺和陽臺來塑造外觀的層次感
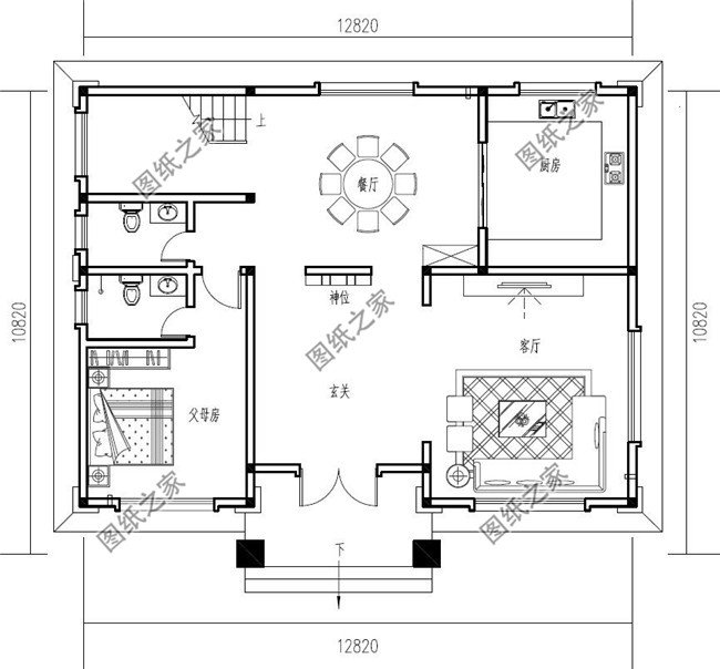
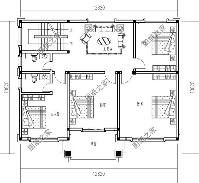
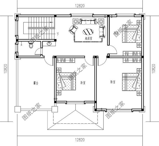
占地面積:12.82m*10.82m,124平方米左右;
建筑層高:三層;
建筑高度:12.32米(含屋頂);
設計功能:
一層戶型:玄關、神位、客廳、餐廳、廚房、棋牌室、父母房(帶衛生間)、衛生間;
二層戶型:起居室、主人房(帶衛生間)、臥室x3、衛生間、陽臺;
三層戶型:起居室、臥室x3、衛生間、露臺;
圖紙目錄:
建 筑 圖:建筑設計說明、一層平面圖、二層平面圖、三層平面圖、屋頂平面圖、正立面圖、背立面圖、左立面圖、右立面圖、1-1剖面圖、樓梯大樣圖、門斗大樣圖、節點大樣圖、門窗詳圖、門窗表等;
結 構 圖:結構設計說明、基礎平面布置圖、基礎大樣圖、一層梁結構平面圖、二層梁結構平面圖、三層梁結構平面圖、屋頂梁結構平面圖、二層板結構平面圖、三層板結構平面圖、屋面板結構平面圖、樓梯大樣圖、節點大樣圖等;
給排水圖:給排水設計說明、一層給排水平面圖、二層給排水平面圖、三層給排水平面圖、屋頂給排水平面圖、衛生間大樣圖、給排水系統圖等;
電 氣 圖:電氣設計說明、配電系統圖、弱電系統圖、配電干線系統圖、一層照明平面圖、二層照明平面圖、三層照明平面圖、一層插座平面圖、二層插座平面圖、三層插座平面圖、一層弱電平面圖、二層弱電平面圖、三層弱電平面圖、接地平面圖、屋頂防雷平面圖等;
本套方案包含全套A3設計圖+彩色效果圖。





































































































