
|
關于農村自建房,大家都喜歡簡單大氣的戶型設計。對于普通的家庭來說,建房成本有限,根本蓋不起豪華的戶型;又因為建一棟別墅就會耗費全家的積蓄,也不會選擇太簡單的戶型。 今天給大家分享5套簡單大氣的農村三層自建房設計,來看看有沒有讓你心動的吧! 第一套
正面效果圖
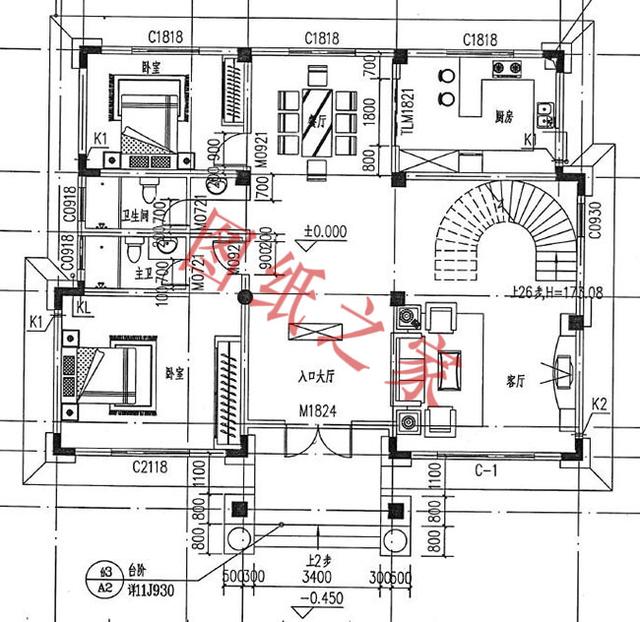
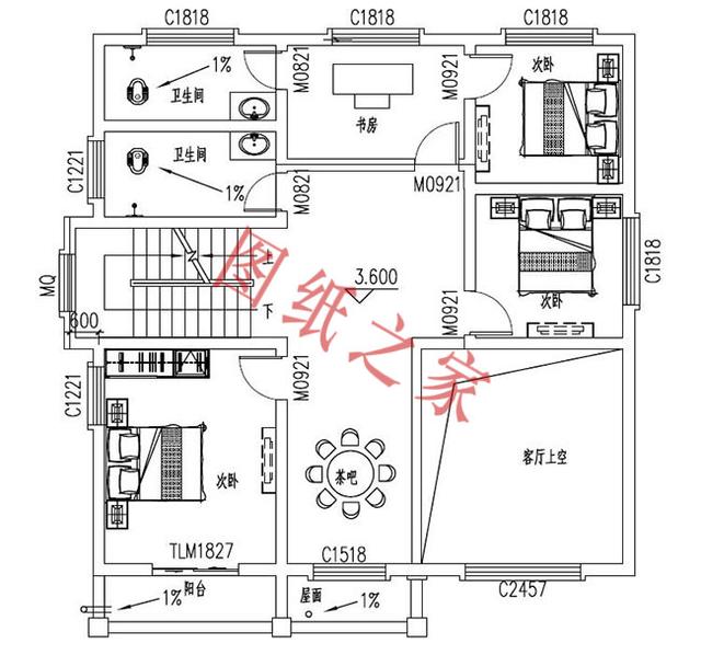
背面效果圖 占地面積:12.8m*11.4m,145平方米左右; 建筑高度:13.68米(含屋頂); 設計功能: 一層戶型:門廳、客廳、餐廳、廚房、主臥(帶衛生間)、次臥、衛生間、儲藏間; 二層戶型:多功能廳、休閑廳、客廳、主臥(帶衛生間)、臥室x2、衛生間、陽臺; 三層戶型:起居室、主臥(帶衛生間)、臥室x2、衛生間、大露臺;
一層平面圖
二層平面圖
三層平面圖
立面圖 第二套
正面效果圖
鳥瞰圖 占地面積:14.0m*12.3m(進深含門廳),一層建筑面積150平方米左右; 建筑高度:14.1米(含屋頂); 設計功能: 一層戶型:門廳、客廳、餐廳、廚房、主臥(帶衛生間)、次臥、衛生間; 二層戶型:客廳、休閑廳、書房、主臥(帶衛生間)、臥室x2(帶衣帽間)、衛生間、陽臺; 三 層戶型:客廳、休閑廳、臥室x2、衛生間、露臺;
一層平面圖
二層平面圖
三層平面圖
立面圖 第三套
別墅效果圖 占地面積:11.0m*12.2m,134平方米左右; 建筑高度:12.66米(含屋頂); 設計功能: 一層戶型:門廳、客廳、餐廳、廚房、主臥(帶衛生間)、次臥、衛生間、雜物間; 二層戶型:客廳上空、茶吧、套間(臥室、書房、衛生間)、臥室x2、衛生間、陽臺; 三層戶型:臥室(帶衛生間和衣帽間)、客房、大露臺;
一層平面圖
二層平面圖
三層平面圖
立面圖 第四套
別墅效果圖 占地面積:11.88m*12.88m,150平方米左右; 建筑高度:12.03米(含屋頂); 設計功能: 一層戶型:玄關、客廳、餐廳、廚房、棋牌室、主臥(帶衛生間)、臥室、衛生間; 二層戶型:客廳、主臥(帶衛生間)、主臥(帶衣帽間和衛生間)、臥室x3、衛生間、陽臺x2; 三層戶型:客廳、主臥(帶衛生間和衣帽間)、臥室x2、衛生間、露臺x2;
一層平面圖
二層平面圖
三層平面圖
立面圖 第五套
別墅效果圖 占地面積:12.9m*11.6m,150平方米左右; 建筑高度:12.0米(含屋頂); 設計功能: 一層戶型:客廳、茶廳、餐廳、廚房、儲藏室、衛生間; 二層戶型:臥室x3、衛生間; 三層戶型:臥室x2、衛生間、陽臺X2;
一層平面圖
二層平面圖
三層平面圖
立面圖 這幾套別墅的設計圖,你最喜歡哪一套? 圖紙之家-專注農村別墅/自建房設計18年,集合國內200余位經驗豐富的設計師,被評為口碑最好的農村建筑設計公司! |

全新農村簡歐風格三層房屋別墅效果圖,110和210兩個戶型,帶電梯
占地:多種戶型
160平方米農村三層別墅CAD設計圖紙及效果圖,13.7x12.6米
占地:160平方米
新農村實用三層帶露臺房屋設計圖紙,占地110平方米
占地:109平方米
二層帶地下室樓房設計方案,效果圖+全套施工圖
占地:160平方米
兩層20萬農村自建房設計圖,經典農村建房款式,越看越有韻味
占地:160平方米
新農村自建房設計圖及效果圖大全,新農村住宅精選
占地:112平方米
建一棟就成了村里的門面擔當!三層歐式別墅,左右對稱太氣派
占地:173.67平方米
適合農村建的二層別墅設計圖,簡約美觀,讓人心動不已
占地:153平方米
雙戶168平方米小戶型新農村雙拼樓房設計建筑圖紙帶外觀圖
占地:168平方米
一層共用,二層兄弟雙拼的二層別墅設計圖
占地:182.48平方米
150平農村三層歐式別墅設計圖紙,盡顯豪華與精致,讓人羨慕不已
占地:147.62平方米
高端二層新中式四合院別墅設計圖,含全套CAD施工圖
占地:217平方米
新中式農村自建房三層設計圖,外觀布局均滿分
占地:142.18平方米
新農村簡歐三層樓房圖片自建3層別墅施工設計圖及效果圖
占地:126平方米
農村三層蓋房設計圖大全,最新的設計,最新的戶型
占地:150平方米
130平方米歐式實用農村二層樓別墅圖紙帶外觀圖12X13米
占地:132平方米
農村三層雙拼別墅戶型圖及全套施工圖紙,帶書房,帶衣帽間
占地:260平方米
三層雙拼別墅效果圖及戶型設計圖,占地150平米
占地:154.8平方米
簡單實用二層自建房子設計圖,主體造價僅17萬
占地:106.387平方米
高端大氣三層半別墅客廳挑空設計,豪華農村自建房圖
占地:179.52平方米
推薦:10套新農村自建房設計圖,2026年最新設計
閱讀次數:4825737次
100套鄉村別墅圖片大全,2026年最新設計
閱讀次數:2492203次
6款農村蓋一層平房的設計圖,10萬元就能建起來
閱讀次數:1852637次
這11個一層農村自建房別墅火爆了朋友圈!我最喜歡戶型十!你呢
閱讀次數:750268次
農村6萬元建一層小別墅圖,你敢相信嗎
閱讀次數:567686次
農村5萬塊就能自建房,6套普通房子設計圖分享,你沒看錯!
閱讀次數:419410次
8套農村漂亮三間平房圖片,非常適合在農村修建!
閱讀次數:411197次
農村自建房化糞池怎么做?附方案及施工過程
閱讀次數:391783次
農村一層三間平房設計圖,告別土氣養老房,讓人忍不住點贊
閱讀次數:350581次
新農村二層樓房圖片造價12萬,挑一套回家建房吧!
閱讀次數:349126次
