
|
在城里購買商品房,需要繳納一定年限的社保才能獲得購房資格,然后還需要搖號才能購買。與之相比,在山清水秀、風光宜人的農村自建小別墅,無論是成本還是難度都要低很多。 今天給大家帶來6套二層別墅設計,經濟劃算,告別搖號買房。 第一套
正面效果圖
背面效果圖 占地面積:11.04m*8.54m,94平方米左右; 建筑高度:8.34米(含屋頂); 設計功能: 一層戶型:客廳、廚房、餐廳、衛生間、雜物間、臥室; 二層戶型:臥室X3、書房、休息廳、衛生間;
一層平面圖
二層平面圖
立面圖 第二套
正面效果圖
背面效果圖
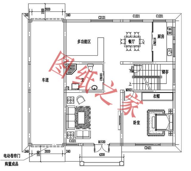
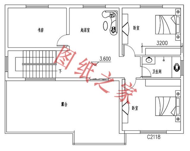
鳥瞰圖 占地面積:14.0m*11.8m,165平方米左右; 建筑高度:9.9米(含屋頂); 設計功能: 一層戶型:客廳、餐廳、廚房、臥室、樓梯間、衛生間、多功能區(自定義,可隔斷)、車道(車庫x2或車庫x1+儲藏室); 二層戶型:小客廳、主臥(帶衛生間)、臥室x2、書房、衛生間、露臺;
一層平面圖
二層平面圖
三層平面圖 第三套
正面效果圖
背面效果圖
鳥瞰圖 占地面積:14.0m*10.0m,140平方米左右; 建筑高度:9.48米(含屋頂); 設計功能: 一層戶型:門廳、客廳、廚房、餐廳、衛生間、臥室x2、儲藏間; 二層戶型:起居室、臥室x2、書房、衛生間、大露臺;
一層平面圖
二層平面圖
立面圖 第四套
正面效果圖
背面效果圖 占地面積:12.8m*11.1m,142平方米左右; 建筑高度:8.70米(含屋頂); 設計功能: 一層戶型:客廳、餐廳、廚房、儲藏間、主臥(帶衛生間)、臥室、衛生間; 二層戶型:起居室、臥室x4、衛生間x3、小露臺;
一層平面圖
二層平面圖
立面圖 第五套
別墅效果圖 占地面積:11.7m*11.1m,130平方米左右; 建筑高度:8.63米(含屋頂); 設計功能: 一層戶型:客廳、廚房、餐廳、儲藏間、衛生間、農具房(可以作為車庫或者臥室); 二層戶型:客廳、主臥(帶衛生間、帶書房)、臥室x2、大露臺;
一層平面圖
二層平面圖
立面圖 第六套
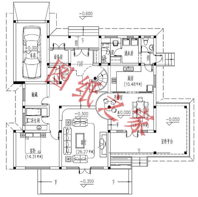
別墅效果圖 占地面積:13.8m*14.4m,198平方米左右; 建筑高度:9.64米(含屋頂); 設計功能: 一層戶型:客廳、門廳、設備房、工人房、洗衣房、廚房、早餐室、客臥、儲藏間、衛生間X2、車庫; 二層戶型:主臥(帶衛生間、更衣室)、臥室x2、衛生間、起居室、露臺;
一層平面圖
二層平面圖
立面圖 這幾套別墅的設計圖,你最喜歡哪一套? 圖紙之家-專注農村別墅/自建房設計18年,集合國內200余位經驗豐富的設計師,被評為口碑最好的農村建筑設計公司! |

面寬13米二層新農村別墅自建房設計圖,功能實用,外觀大氣
占地:168.96平方米
造價低經濟簡單的二層農村自建房圖紙設計,簡潔實用
占地:136.08平方米
農村小別墅一層設計圖紙,外觀漂亮極了,130和160兩個戶型
占地:多種戶型可選
140平方米一層歐式新農村平房設計圖,主體造價僅11萬
占地:141.218平方米
面寬14米農村別墅二層別墅戶型設計,經濟實用
占地:107.1平方米
一層中式四合院別墅設計圖,符合國人審美,簡單大氣穩妥沉穩
占地:388平方米
140平方米農村三層復式房屋設計施工圖,開放式廚房
占地:143平方米
農村二層小樓的設計圖紙,整體外觀凹凸有致,紅色的坡面屋頂
占地:180平方米
最美農村一層合院設計圖紙,自建一棟火遍十里八鄉
占地:190平方米左右
140平一層平房別墅設計圖,兩客廳兩衛四臥室
占地:140平方米
超實用的農村一層別墅設計圖,經濟實惠養老自住都不錯,
占地:128.35平方米
三層別墅設計施工圖紙(含外觀效果圖)帶大露臺
占地:160平方米
新農村三層自建房屋設計圖,含外觀圖片
占地:136平方米
175平大客廳三層別墅房屋設計圖,含外觀造型現代,美觀
占地:175平方米
120平方米新農村房屋設計圖紙,新中式效果圖,3層住宅設計方案
占地:120平方米
現代田園風格一層農村別墅設計圖效果圖,帶閣樓設計
占地:220平方米
經典20萬左右二層別墅設計圖紙,造型頗具設計感的小別墅
占地:多戶型可選
歐式三層農村別墅設計圖,占地130平方米自建房,低調又奢華鄉村
占地:129.8平方米
三層兩開間小面寬別墅設計圖紙帶外觀效果圖,95平方米
占地:94.61平方米
110平方米農村三層復式房屋施工圖,通透時尚,低調又奢華
占地:107.98平方米
推薦:10套新農村自建房設計圖,2026年最新設計
閱讀次數:4825737次
100套鄉村別墅圖片大全,2026年最新設計
閱讀次數:2492203次
6款農村蓋一層平房的設計圖,10萬元就能建起來
閱讀次數:1852637次
這11個一層農村自建房別墅火爆了朋友圈!我最喜歡戶型十!你呢
閱讀次數:750268次
農村6萬元建一層小別墅圖,你敢相信嗎
閱讀次數:567686次
農村5萬塊就能自建房,6套普通房子設計圖分享,你沒看錯!
閱讀次數:419410次
8套農村漂亮三間平房圖片,非常適合在農村修建!
閱讀次數:411197次
農村自建房化糞池怎么做?附方案及施工過程
閱讀次數:391783次
農村一層三間平房設計圖,告別土氣養老房,讓人忍不住點贊
閱讀次數:350581次
新農村二層樓房圖片造價12萬,挑一套回家建房吧!
閱讀次數:349126次
