
|
現在農民不僅能住起別墅,家家戶戶有個小車子也不是什么稀罕事。不同于傳統的建房,現在鄉下建房子必須把車庫也考慮在內,避免車子在外風吹日曬,減少日常零件損耗。今天給大家推薦3款帶車庫的二層自建房,不到30萬就可以搞定帶車庫的豪華別墅。 戶型一 房屋基本信息: 開間:15.2米 進深:11米 占地面積:160平方米左右 主體造價:26—32萬
橙色的西瓦清新亮麗,澆黃色真石漆和深色文化石鑲嵌,端莊樸素。木藝雕鏤欄桿風情萬種,樓上的小閣樓乃點睛之筆。室內功能區域劃分合理,臥室套間提高居住生活的品質。
戶型二 房屋基本信息: 開間:16米 進深:12米 占地面積:156.5平方米 建筑面積:239.4平方米 主體造價:24—28萬
造型豐富的斜坡屋頂,讓整個建筑看起來輕盈靈動,現代感十足。絳紫色外墻以白色涂料裝飾墻邊、窗戶和羅馬柱,優雅中帶點清新和俏皮,不會顯得過于單調沉悶。窗戶造型豐富,采光通透。布局功能齊全,大方實用。
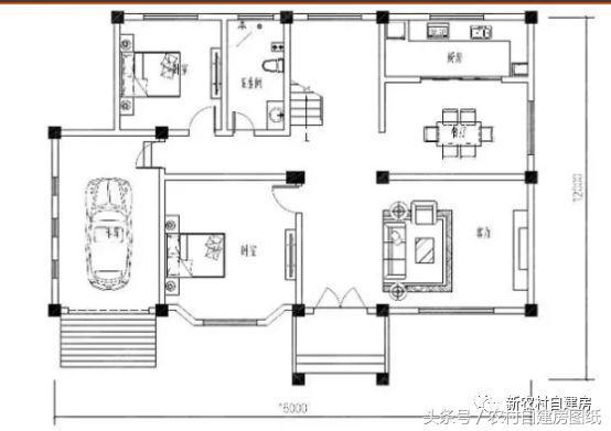
一層:車庫、可同、餐廳、廚房、2間臥室、衛生間 二層:2間臥室、衛生間 戶型三 房屋基本信息: 開間:14.3米 進深:9.4米 占地面積:140.17平方米 建筑面積:274平方米 主體造價:25萬—30萬
外墻的黃色涂料清新自然,屋檐和屋頂的靛藍色西瓦端莊高貴,兩者的搭配卻意外的柔和、寧靜。花瓶式欄桿透露著歐式的風情,四面多開窗,有利于室內采光和通透。室內布局簡潔緊湊,使用方便。
一層:車庫、玄關、客廳、餐廳、廚房、臥室(帶衛生間)、公衛 二層:臥室(帶衣帽間)、臥室(帶書房)、臥室、陽臺、公衛 其實車庫還是挺實用的,平時不用,還可以當雜物房、農具房,存放一些大件物品。 圖紙之家-專注農村別墅/自建房設計18年,集合國內200余位經驗豐富的設計師,被評為口碑最好的農村建筑設計公司! |

對稱一層農村養老別墅設計方案,室內戶型布局合理,14x12米
占地:141.46平方米
2026最好看的農村三層樓房圖片及施工圖紙,客廳寬敞
占地:120平方米
單棟多戶三層別墅設計圖,適合兩三家一起住
占地:125平米
140平米平屋頂二層新農村自建房設計圖,極簡主義設計 ,實用優
占地:143平方米
現代田園風格一層農村別墅設計圖效果圖,帶閣樓設計
占地:220平方米
三層新農村自建小型別墅設計圖及效果圖,三間三層樓房戶型
占地:114平方米
農村小洋樓設計圖及效果圖,二層樓房設計圖
占地:120平方米
275平方米新農村雙拼樓中樓戶型別墅設計圖紙及效果圖21X14米
占地:275平方米
農村二層半新中式小別墅設計圖(帶閣樓層),二層半自建房戶型
占地:144平方米
帶堂屋設計一層三合院設計圖,白墻黛瓦古韻悠悠,比高層舒服接
占地:179.37平方米
三層小別墅40萬造價,大氣農村三層新中式自建房設計圖紙
占地:171.656平方米
農村二層樓建房造型圖及全套施工圖紙,占地110平米左右,帶地下
占地:110平方米
經典美式二層小別墅設計圖,回鄉建房不可不看的經典之作
占地:109.33平方米
農村18萬元二層小樓圖,帶開放式車庫
占地:110平方米
農村三層15萬自建房圖,小戶型別墅設計方案圖
占地:60平方米
二層現代別墅設計圖及效果圖,外觀美觀,大氣
占地:195平方米
新農村住宅設計圖紙含效果圖,方方正正的別墅方案
占地:134平方米左右
120平方米現代新農村二層自建房設計圖,造型時尚好看
占地:120平方米
經濟實惠一層戶型圖,農村養老房舒適至上,簡約而不失溫馨
占地:147.5平方米
大戶型三層別墅設計圖,高貴大氣,占地面積將近300平
占地:273.33平方米
推薦:10套新農村自建房設計圖,2026年最新設計
閱讀次數:4825737次
100套鄉村別墅圖片大全,2026年最新設計
閱讀次數:2492203次
6款農村蓋一層平房的設計圖,10萬元就能建起來
閱讀次數:1852637次
這11個一層農村自建房別墅火爆了朋友圈!我最喜歡戶型十!你呢
閱讀次數:750268次
農村6萬元建一層小別墅圖,你敢相信嗎
閱讀次數:567686次
農村5萬塊就能自建房,6套普通房子設計圖分享,你沒看錯!
閱讀次數:419410次
8套農村漂亮三間平房圖片,非常適合在農村修建!
閱讀次數:411197次
農村自建房化糞池怎么做?附方案及施工過程
閱讀次數:391783次
農村一層三間平房設計圖,告別土氣養老房,讓人忍不住點贊
閱讀次數:350581次
新農村二層樓房圖片造價12萬,挑一套回家建房吧!
閱讀次數:349126次
