
|
如今的經濟快速發展,大城市的房價也是居高不下,北上廣等一線城市動輒幾百萬、上千萬的房價也是讓人望而卻步。與之相比,在農村只要幾十萬就能給自己建造一棟小別墅,經濟壓力明顯減輕。越來越多的人厭倦了城市的喧鬧和污染,向往清新自然的鄉村田園生活。下邊給大家分享6套農村二層自建房設計,造價20萬左右,很多人都能負擔得起,不用做房奴。 第一套
正面效果圖
背面效果圖
鳥瞰圖 占地面積:12.2m*10.1m,96平方米左右; 建筑高度:9.9米(含屋頂); 設計功能: 一層戶型:客廳、餐廳、廚房、衛生間、臥室×2; 二層戶型:客廳、臥室x3、衛生間、陽臺x2;
一層平面圖
二層平面圖
屋頂平面圖
立面圖 第二套
正面效果圖
背面效果圖
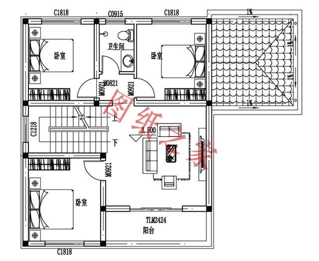
鳥瞰圖 占地面積:11.5m*9.5m,110平方米左右; 建筑高度:9.9米(含屋頂); 設計功能: 一層戶型:客廳、餐廳、廚房、衛生間、主臥(帶衛生間); 二層戶型:客廳、臥室(帶衛生間)、臥室、書房、衛生間、陽臺、廚房(可做儲藏間);
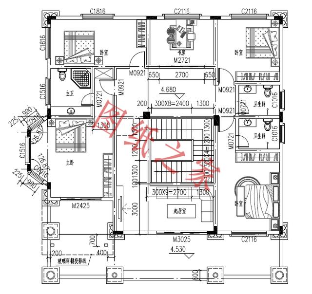
一層平面圖
二層平面圖
立面圖 第三套
正面效果圖
背面效果圖
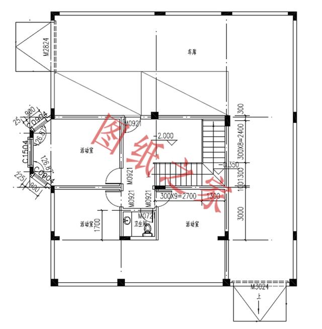
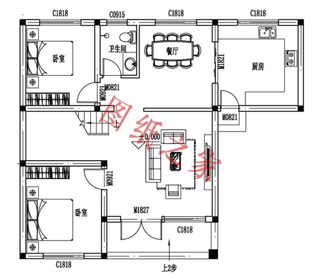
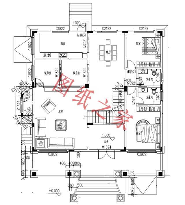
鳥瞰圖 占地面積:15.2m*15.6m,190平方米左右; 建筑高度:10.58米(含屋頂); 設計功能: 地下戶型:車庫、活動室、衛生間; 一層戶型:玄關、客廳、餐廳、廚房、衛生間、主臥(帶衛生間)、臥室; 二層戶型:起居室、主臥(帶衛生間)×2、臥室×2、書房、衛生間、、大露臺;
地下平面圖
一層平面圖
二層平面圖
立面圖 第四套
正面效果圖
背面效果圖
鳥瞰圖 占地面積:11.7m*10.5m,120平方米左右; 建筑高度:10.1米(含屋頂); 設計功能: 一層戶型:客廳、餐廳、廚房、衛生間、臥室、樓梯下衛生間; 二層戶型:起居室、主臥(帶衛生間)、臥室x3、衛生間、露臺;
一層平面圖
二層平面圖
立面圖 第五套
正面效果圖
背面效果圖
鳥瞰圖 占地面積:12.0m*12.0m,140平方米左右; 建筑高度:10.77米(含屋頂); 設計功能: 一層戶型:客廳、餐廳、廚房、衛生間、主臥(帶衛生間)、棋牌室; 二層戶型:客廳、主臥(帶衛生間)、臥室x3、洗衣房、衛生間、陽臺、露臺;
一層平面圖
二層平面圖
立面圖 第六套
正面效果圖
背面效果圖
鳥瞰圖 占地面積:12m*11.2m,130平方米左右; 建筑高度:9.25米(含屋頂); 設計功能: 一層戶型:客廳、儲物間(可以做廚房),臥室×2、衛生間; 二層戶型:起居室、臥室×3、書房、陽臺;
一層平面圖
二層平面圖
立面圖
圖紙之家-專注農村別墅/自建房設計18年,集合國內200余位經驗豐富的設計師,被評為口碑最好的農村建筑設計公司! |

自建一層農村別墅圖,經濟實用新選擇,建房必備參考戶型!
占地:142.88平方米
20萬以內二層歐式小別墅設計方案,全套施工圖+效果圖
占地:115平方米
2026年獨棟三層雙拼別墅戶型圖,總占地面積300平方米左右
占地:300平方米
100平內的三層豪華歐式別墅房屋設計圖紙 ,簡歐風格
占地:94平方米左右
現代田園風格一層農村別墅設計圖效果圖,帶閣樓設計
占地:220平方米
造價便宜的二層雙拼別墅設計圖,造型簡約大氣,進深10米
占地:SP23059
鄉村高檔四層別墅樓設計圖,二三層復式挑空客廳
占地:148.992平方米
豪華新中式兩層半農村別墅設計圖,繁華之外,心之所向
占地:290.4平方米
15萬左右新中式二層別墅設計圖平面圖,占地110平米左右
占地:110平方米
歐式農村三層小別墅設計圖,占地120平米,客廳中空,空間利用率
占地:120平方米
最新小別墅設計圖,復式三層,外觀非常漂亮
占地:158平方米
面寬9米的三層農村自建房設計圖,適合鄉下地區自建
占地:121.94平方米
農村五間房子設計圖,大戶型別墅設計圖推薦
占地:240平方米
95平經濟適用三層農村小別墅設計圖,二開間推薦爆款戶型
占地:95.31平方米
14米乘10米農村二層別墅新款,外觀對稱設計,經久耐看!
占地:140平方米
雙戶168平方米小戶型新農村雙拼樓房設計建筑圖紙帶外觀圖
占地:168平方米
新中式二層雙拼樓房設計圖,單戶面積100平米左右,實用美觀
占地:200平方米
160平方米二層自建別墅設計施工建筑圖紙及效果圖,15x11米
占地:163平方米
兩層半帶閣樓別墅房屋設計圖,含外觀效果圖片
占地:118平方米
110平方米新農村實用現代的二層建筑設計圖紙帶外觀圖11X10米
占地:110平方米
推薦:10套新農村自建房設計圖,2026年最新設計
閱讀次數:4825737次
100套鄉村別墅圖片大全,2026年最新設計
閱讀次數:2492203次
6款農村蓋一層平房的設計圖,10萬元就能建起來
閱讀次數:1852637次
這11個一層農村自建房別墅火爆了朋友圈!我最喜歡戶型十!你呢
閱讀次數:750268次
農村6萬元建一層小別墅圖,你敢相信嗎
閱讀次數:567686次
農村5萬塊就能自建房,6套普通房子設計圖分享,你沒看錯!
閱讀次數:419410次
8套農村漂亮三間平房圖片,非常適合在農村修建!
閱讀次數:411197次
農村自建房化糞池怎么做?附方案及施工過程
閱讀次數:391783次
農村一層三間平房設計圖,告別土氣養老房,讓人忍不住點贊
閱讀次數:350581次
新農村二層樓房圖片造價12萬,挑一套回家建房吧!
閱讀次數:349126次
