
|
這套二層農村自建別墅施工效果圖采用中式風格設計,白墻黛瓦凸顯傳統靜謐色彩,給人一種簡約而明亮清新的視覺感受。布局上從農村住房習俗的角度考慮,共設有4廳5臥,合理利用空間,布局緊湊,二層有大露臺提供晾曬功能,南北開窗,室內明亮。
效果圖 建筑詳情介紹: 層數:二層 主體造價:25萬 開間:14米 進深:12米 占地面積:176.30平方米 總建筑面積:297.12平方米
設計功能及平面圖展示:
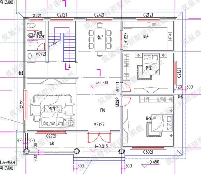
一層平面圖 一層:門廳、客廳、餐廳、廚房、2臥室、衛生間。 入門設有門廳,裝修的時候可以用玄關將客廳隔斷,既能提高室內的私密性,又不影響整體的空間效果。 門廳右邊有兩間臥室,廚房餐廳和衛生間都設在北面,均是明廚明衛,衛生間在樓梯旁邊,隱秘且合理利用空間。
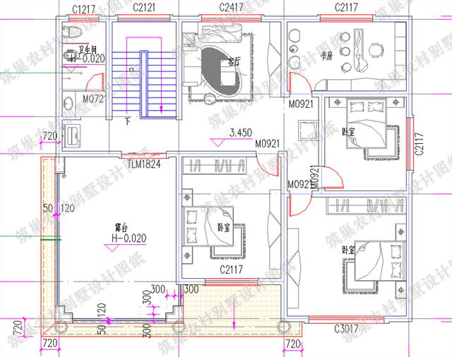
二層平面圖 二層:客廳、臥室x3、書房、露臺、衛生間。 本層共四個房間,其中3間室臥室,1間是書房,大露臺的設計提供活動空間以及晾曬場地,住戶可根據喜好打造一個獨特創意的空中花園。 圖紙之家-專注農村別墅/自建房設計18年,集合國內200余位經驗豐富的設計師,被評為口碑最好的農村建筑設計公司! |

農村二層半雙拼別墅設計圖,客廳中空,帶大露臺
占地:270平方米
小宅基地自建房設計圖,占地不到90平三層別墅圖紙
占地:87平方米左右
簡單時尚二層住宅設計圖紙,簡單的設計,不平凡的視覺感受
占地:110平方米
現代田園風格一層農村別墅設計圖效果圖,帶閣樓設計
占地:220平方米
農村三間三層豪宅設計圖,自建別墅推薦戶型,帶地下室
占地:170平方米
新農村三拼別墅三戶連體別墅設計圖,設計新穎美觀
占地:380平方米
240平方米新農村漂亮的兄弟雙拼別墅設計圖紙,單戶120平
占地:239平方米
新農村全套四層別墅設計圖紙占地面積:190平方米造價預算:42萬
占地:190平方米
豪華三層歐式雙拼別墅設計圖紙,雙拼歐式別墅如何設計看這款
占地:258.294平方米
農村四層雙拼別墅房屋設計圖,造型現代、大氣
占地:220平方米
180平高端歐式三層別墅圖紙設計,大戶型復式客廳
占地:182.016
現代新中式四層復式別墅房屋設計圖,旋轉樓梯,含效果圖
占地:150平方米
135平方米新農村三層別墅設計圖紙,外觀效果圖很漂亮
占地:134平方米
豪華三層歐式風格別墅圖紙設計,挑空客廳大面寬大戶型
占地:225.72平方米
最新140平米三層自建房屋設計圖紙,本戶型帶小院
占地:140平米
小型新中式二層小別墅圖紙設計方案,好看造價不高
占地:232.98平方米
新農村二層客廳挑高樓房設計圖,外觀歐式風格
占地:178平方米
140平三層自建房別墅設計圖,外觀圖大氣、美觀
占地:140平方米
時尚四開間二層農村別墅,經典大氣,引領建房新潮流!
占地:159.6平方米
可以傳家的新中式二層別墅,經典耐看,再過幾十年也不過時
占地:146.81平方米
推薦:10套新農村自建房設計圖,2026年最新設計
閱讀次數:4825737次
100套鄉村別墅圖片大全,2026年最新設計
閱讀次數:2492203次
6款農村蓋一層平房的設計圖,10萬元就能建起來
閱讀次數:1852637次
這11個一層農村自建房別墅火爆了朋友圈!我最喜歡戶型十!你呢
閱讀次數:750268次
農村6萬元建一層小別墅圖,你敢相信嗎
閱讀次數:567686次
農村5萬塊就能自建房,6套普通房子設計圖分享,你沒看錯!
閱讀次數:419410次
8套農村漂亮三間平房圖片,非常適合在農村修建!
閱讀次數:411197次
農村自建房化糞池怎么做?附方案及施工過程
閱讀次數:391783次
農村一層三間平房設計圖,告別土氣養老房,讓人忍不住點贊
閱讀次數:350581次
新農村二層樓房圖片造價12萬,挑一套回家建房吧!
閱讀次數:349126次
