圖紙介紹:本戶型為農村四層雙拼別墅房屋設計圖,造型現代、大氣,帶屋頂露臺,戶型布局經典,本方案可以做三層或者四層,二三層戶型一樣。
占地面積:18.00m*12.00m,總220平方米左右,單戶110平方米左右;
建筑層高:四層(二層和三層戶型一樣,可以建成三層);
建筑高度:16.30米(含屋頂);
設計功能:
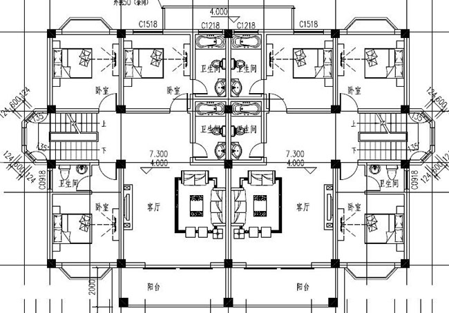
一層戶型設計:客廳、餐廳、廚房、衛生間、主臥(帶衛生間)、儲藏間(可以不建);
二層戶型設計:客廳、臥室x3(其中2個臥室帶衛生間)、衛生間;
三層戶型設計:同二層(可以不建,如不建總層數為三層)
三層(四層)戶型設計:臥室x3(其中2個臥室帶衛生間)、衛生間、大露臺;
圖紙目錄:
建筑圖:圖紙目錄、設計說明、工程做法、一層平面圖、二層平面圖、三層平面圖、屋頂平面圖、立面圖x4、剖面圖、節點大樣圖、門頭大樣圖、樓梯大樣圖、門窗表;
結構圖:圖紙目錄、結構設計說明、基礎平面布置圖、基礎大樣圖、基礎梁平面圖、一層梁結構平面圖、二層梁板結構平面圖、屋頂梁結構平面圖、一層結構平面圖、二層結構平面圖、屋頂結構平面圖等;
給排水圖:圖紙目錄、設計說明、一層給排水平面圖、二層給排水平面圖、三層給排水平面圖、屋頂給排水平面圖、給排水系統圖;
電氣圖:圖紙目錄、設計說明、配電系統圖、一層照明平面圖、二層照明平面圖、三層照明平面圖、一層插座平面圖、二層插座平面圖、三層插座平面圖、一層弱電平面圖、二層弱電平面圖、三層弱電平面圖、接地平面圖、屋頂防雷平面圖。
本套圖紙為全套A3圖紙+高清效果圖,拿到即可施工!






























































































