圖紙介紹:本方案為經典三層雙拼樓房設計圖,經典外觀,經典戶型,三層帶雙露臺,適合兄弟倆或父母、兒女一起居住,本套圖紙面積適中,戶型非常合理,設計師推薦圖紙。
占地面積:19.04m*11.82m,225平方米左右,單戶面積110平左右;
建筑層高:三層;
建筑高度:11.30米(含屋頂);
設計功能:
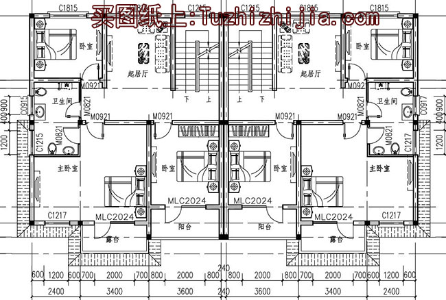
其中一棟的戶型:
一 層:客廳、廚房、餐廳、衛生間、主臥(帶衛生間)、洗衣房(儲藏間);
二 層:客廳、主臥(帶衛生間、帶露臺)、臥室x2、衛生間、陽臺;
三 層:主臥(帶衛生間、帶露臺)、臥室x2、衛生間、大露臺;
圖紙目錄:
建 筑 圖:建筑設計說明、一層平面圖、二層平面圖、三層平面圖、屋頂平面圖、正立面圖、背立面圖、左立面圖、右立面圖、1-1剖面圖、樓梯大樣圖、節點大樣圖、門窗大樣圖、門窗表等;
結 構 圖:結構設計說明、基礎平面布置圖、一層柱配筋圖、二層柱配筋圖、三層柱配筋圖、一層頂梁平法施工圖、二層頂梁平法施工圖、頂層梁平法施工圖、一層頂板結構平面圖、二層頂板結構平面圖、頂層板結構平面圖、樓梯配筋圖等;
給排水圖:給排水設計說明及實例、一層給排水平面圖、二層給排水平面圖、三層給排水平面圖、衛生間大樣圖、給排水系統圖等;
電 氣 圖:電氣設計說明、電氣設備材料表、等電位聯結做法、配電系統圖、弱電系統圖、配電干線系統圖、一層照明平面圖、二層照明平面圖、三層照明平面圖、一層插座平面圖、二層插座平面圖、三層插座平面圖、一層弱電平面圖、二層弱電平面圖、三層弱電平面圖等;
全套A3施工圖+彩色效果圖,拿到即可施工。


































































































