
|
今天小編將圖紙整理了一遍,把下半年新出的戶型一并在此展示給大家,一層、二層、三層都有,都是高清效果圖,還有平面圖展示,每一戶型都有自己的特點,也是目前比較受歡迎的戶型,究竟哪一款能如你的眼呢?一起來看看! 【戶型1】
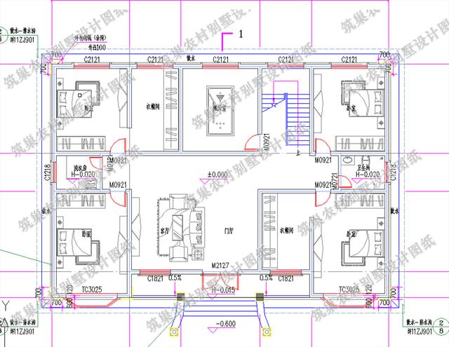
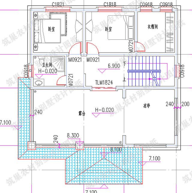
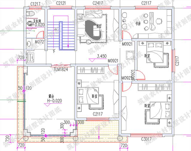
戶型1 層數:二層,開間:13米,進深:11米,占地面積:152.22,總建筑面積:293.77平方米,結構形式:磚混結構;主體造價:23-29萬元
戶型1一層平面圖
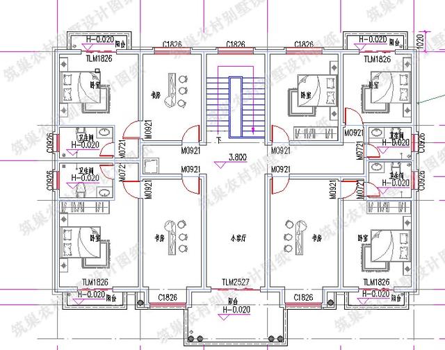
戶型1二層平面圖 【戶型2】
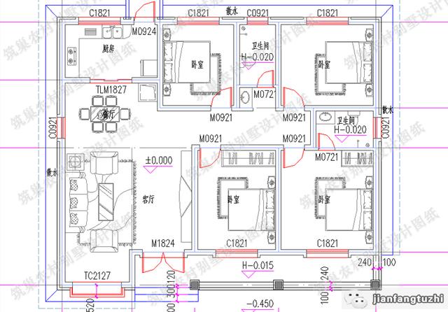
戶型2 層數: 一層 結構形式: 框架結構 主體造價: 20萬 開間: 16米 進深: 11.6米 占地面積: 191.72平方米 總建筑面積: 173.84平方米
戶型2背面圖
戶型2平面圖 【戶型3】
戶型3 層數: 三層 結構形式: 框架結構 主體造價: 26-30萬 開間: 13米 進深: 10.8米(含門柱) 占地面積: 123.51平方米 總建筑面積: 279.58平方米
戶型3背面圖
戶型3一層平面圖
戶型3二層平面圖
戶型3三層平面圖 【戶型4】
層數:二層 主體造價:23-30萬 開間:14米 進深:12米 占地面積:176.30平方米 總建筑面積:297.12平方米
戶型4一層平面圖
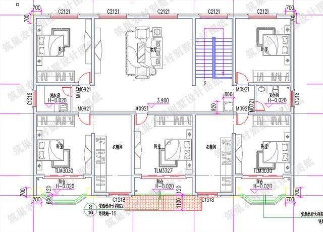
戶型4二層平面圖 【戶型5】
戶型5 層數:二層 主體造價:40-50萬 開間:19.6米 進深:13.6 占地面積:266.56平方米 總建筑面積:517.11平方米
戶型5一層平面圖
戶型5二層平面圖 【戶型6】
戶型6 本戶型共二層,磚混結構,開間進深12米×10米,占地面積138㎡,總建筑面積253.16㎡,建筑高度9.75米,主體參考造價25萬左右。
戶型6一層平面圖
戶型6二層平面圖 【戶型7】
戶型7 層數:二層 結構形式:磚混結構 開間:18米 進深:12.8米 占地面積:244.27平方米 總建筑面積:476.25平方米 主體造價:45萬
戶型7一層平面圖
戶型7二層平面圖 【戶型8】
戶型8 層數: 一層 結構形式: 磚混結構 開間: 13.5米 進深: 11.3米 占地面積: 151.21平方米 總建筑面積: 151.21平方米 主體造價: 15萬
戶型8平面圖 【戶型9】
戶型9 層數: 三層 結構形式: 磚混結構 開間: 10.8米 進深: 10.1米 占地面積: 122.06平方米 總建筑面積: 321.97平方米 建筑總高度:13.05米 主體造價: 30萬
戶型9一層平面圖
戶型9二層平面圖
戶型9三層平面圖 【戶型10】
戶型10 層數: 二層 結構形式: 磚混結構 開間: 14米 進深: 12米 占地面積: 179.61平方米 建筑面積: 341.96平方米 建筑高度:8.9米 主體造價: 30萬
戶型10俯視圖
戶型10一層平面圖
戶型10二層平面圖
圖紙之家-專注農村別墅/自建房設計18年,集合國內200余位經驗豐富的設計師,被評為口碑最好的農村建筑設計公司! |

簡歐風格別墅設計圖帶外觀效果圖,三層140平米戶型方案
占地:140平方米
120平方房子設計圖,農村120平建房設計圖推薦
占地:122平方米
130平左右三層樓房設計圖,新農村住宅自建推薦
占地:128平方米
農村建房兄弟雙拼三層,經典的歐式風格,大氣的外觀
占地:250平方米
160平方米左右二層自建別墅設計圖,對稱設計,23萬建好
占地:157平方米左右
爆款農村一層別墅圖紙設計,看過的都說漂亮實用
占地:144.91平方米
一層中式三合院農村自建別墅圖,面寬18米帶堂屋設計
占地:165.72平方米
簡歐式三層半(4層)農村自建房別墅設計圖效果圖,帶車庫戶型
占地:127平方米
七字形農村自建房二層設計圖,“L”型別墅設計,簡約時尚!
占地:209平米左右
95平經濟適用三層農村小別墅設計圖,二開間推薦爆款戶型
占地:95.31平方米
中式兄弟雙拼別墅設計圖紙,類似合院造型,美爆了
占地:221.9平方米
高端大氣三層半別墅客廳挑空設計,豪華農村自建房圖
占地:179.52平方米
造型對稱的簡約二層別墅設計圖紙,戶型布局好,13x13米5室2廳
占地:151.94平方米
農村三層樓房設計圖及效果圖,復式磚混結構
占地:148平方米
140平方米三層半新農村房屋別墅設計圖,帶車庫
占地:140平方米
面寬14米農村別墅二層別墅戶型設計,經濟實用
占地:107.1平方米
120平方米現代新農村二層自建房設計圖,造型時尚好看
占地:120平方米
帶地下室的一層別墅設計圖,農村自建很實用
占地:192平方米
帶配房的二層農村小別墅設計圖,大方適用,耐看經濟
占地:152.28平方米
120平方米農村漂亮實用的兩層別墅設計圖紙,含外觀圖片
占地:120平方米
推薦:10套新農村自建房設計圖,2026年最新設計
閱讀次數:4825737次
100套鄉村別墅圖片大全,2026年最新設計
閱讀次數:2492203次
6款農村蓋一層平房的設計圖,10萬元就能建起來
閱讀次數:1852637次
這11個一層農村自建房別墅火爆了朋友圈!我最喜歡戶型十!你呢
閱讀次數:750268次
農村6萬元建一層小別墅圖,你敢相信嗎
閱讀次數:567686次
農村5萬塊就能自建房,6套普通房子設計圖分享,你沒看錯!
閱讀次數:419410次
8套農村漂亮三間平房圖片,非常適合在農村修建!
閱讀次數:411197次
農村自建房化糞池怎么做?附方案及施工過程
閱讀次數:391783次
農村一層三間平房設計圖,告別土氣養老房,讓人忍不住點贊
閱讀次數:350581次
新農村二層樓房圖片造價12萬,挑一套回家建房吧!
閱讀次數:349126次
