
|
在農村如果想修建一棟既能讓人稱心如意,又能實用居家的別墅。最重要的是選擇一套合適的圖紙,然后要找到一支靠譜的施工隊,只有這兩歌條件全部滿足,才能蓋出美觀又實用的房子。 下邊給大家推薦5套農村二層自建房圖紙,都是經典的品質住宅設計,大家都喜歡! 第一套
正面效果圖
背面效果圖
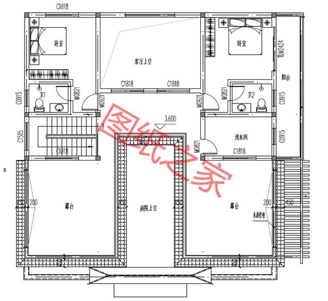
鳥瞰圖 占地面積:13.5m*10.9m,130平方米左右; 建筑層高:二層; 建筑高度:10.018米(含屋頂); 設計功能: 一層戶型:客廳、餐廳、廚房、衛生間、主臥(帶衛生間)、臥室×2; 二層戶型:客廳、臥室x2、衛生間、書房、棋牌室、大露臺;
一層平面圖
二層平面圖
立面圖 第二套
正面效果圖
背面效果圖
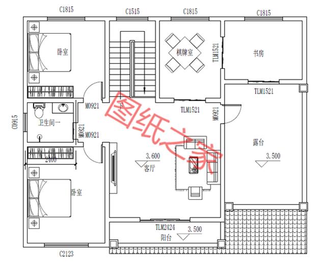
鳥瞰圖 占地面積:17.4m*11.8m,180平方米左右; 建筑層高:二層; 建筑高度:9.8米(含屋頂); 設計功能: 一層戶型:玄關、客廳、餐廳、廚房、衛生間、主臥(帶衛生間)、臥室×2、走廊; 二層戶型:客廳上空、客廳、主臥(帶衛生間)、臥室×2、書房、小書房、露臺×2;
一層平面圖
二層平面圖
立面圖 第三套
正面效果圖
背面效果圖
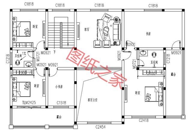
鳥瞰圖 占地面積:13.0m*13.9m,160平方米左右; 建筑層高:二層; 建筑高度:10.17米(含屋頂); 設計功能: 一層戶型:客廳、餐廳、廚房、衛生間、臥室x2、儲藏間; 二層戶型:客廳上空、客廳、臥室x3、衣帽間、衛生間、陽臺;
一層平面圖
二層平面圖
立面圖 第四套
正面效果圖
背面效果圖
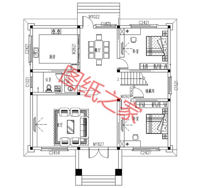
鳥瞰圖 占地面積:11.1m*10.5m,100平方米左右; 建筑層高:二層; 建筑高度:9.76米(含屋頂); 設計功能: 一層戶型:客廳、餐廳、廚房、衛生間、主臥(帶衛生間); 二層戶型:主臥(帶衛生間)、臥室x2、棋牌室、衛生間、陽臺;
一層平面圖
二層平面圖
立面圖 第五套
正面效果圖
背面效果圖
鳥瞰圖 占地面積:15.3m*14.6m,占地220平方米左右; 建筑層高:二層; 建筑高度:9.2米(含屋頂); 設計功能: 一層戶型:客廳、餐廳、廚房、衛生間、臥室(帶衛生間)×2、臥室; 二層戶型:客廳上空、臥室(帶衛生間)×2、洗衣間、大露臺×2、庭院上空;
一層平面圖
二層平面圖
立面圖
圖紙之家-專注農村別墅/自建房設計18年,集合國內200余位經驗豐富的設計師,被評為口碑最好的農村建筑設計公司! |

新農村三層豪華歐式別墅,復式高端自建房設計圖紙及效果圖
占地:多種戶型
二層農村小別墅自建房設計圖,布局實用,占地150平
占地:149.05平方米
一層4間自建平房別墅及全套戶型圖紙,占地160平左右,簡單實用
占地:162.13平方米
平屋頂現代風格三層蓋別墅設計圖紙,面寬18米
占地:235.34平方米
時尚大方的農村二層自建房屋設計圖紙,占地120平米左右
占地:120平米
簡單時尚二層住宅設計圖紙,簡單的設計,不平凡的視覺感受
占地:110平方米
小青瓦一層中式小院三合院設計施工圖,白墻青瓦古色古香
占地:155.3平方米
徽派自建房一層設計圖,七字型設計,獨立餐廚便捷實用
占地:171.65平方米
100來平復式旋轉樓梯二層簡歐別墅設計圖,戶型實用
占地:101.523平方米
堂屋共用五間雙拼別墅設計圖,適合二兄弟的二層別墅
占地:292.5平方米左右
占地130平三層現代別墅設計圖方案,帶電梯和地下室設計
占地:134.75平方米
300平方二層別墅四合院設計圖紙方案(效果圖+施工圖)
占地:332平方米
2026年新款一層住宅別墅設計圖紙,中式風格漂亮極了
占地:207平方米
農村自建房就選它!一層新中式設計,日常居住需求全搞定
占地:128.45平方米
120平方米新農村全套二層施工設計圖紙大全11X11米
占地:120平方米
新農村二層自建房設計圖帶外觀圖片,自建戶型大全
占地:160平方米
平屋頂12米寬別墅三層設計圖,平頂照樣建的漂亮
占地:129.6平方米
挑空客廳戶型歐式二層別墅設計圖紙,高端大氣帶車庫
占地:236.09平方米
150平米經典二層中式別墅設計圖 ,現代中式相結合
占地:154平方米左右
漂亮實用三層自建別墅設計圖紙,超高的性價比
占地:160平方米
推薦:10套新農村自建房設計圖,2026年最新設計
閱讀次數:4825737次
100套鄉村別墅圖片大全,2026年最新設計
閱讀次數:2492203次
6款農村蓋一層平房的設計圖,10萬元就能建起來
閱讀次數:1852637次
這11個一層農村自建房別墅火爆了朋友圈!我最喜歡戶型十!你呢
閱讀次數:750268次
農村6萬元建一層小別墅圖,你敢相信嗎
閱讀次數:567686次
農村5萬塊就能自建房,6套普通房子設計圖分享,你沒看錯!
閱讀次數:419410次
8套農村漂亮三間平房圖片,非常適合在農村修建!
閱讀次數:411197次
農村自建房化糞池怎么做?附方案及施工過程
閱讀次數:391783次
農村一層三間平房設計圖,告別土氣養老房,讓人忍不住點贊
閱讀次數:350581次
新農村二層樓房圖片造價12萬,挑一套回家建房吧!
閱讀次數:349126次
