
|
在人們根深蒂固的印象中,蘇州是詩情畫意,水墨江南的代名詞,有著古典的園林,幽靜古樸的老街,處處小橋流水,風景優美,美如畫卷。
方案圖
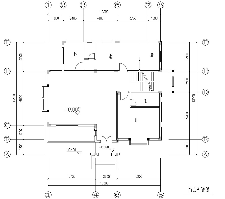
一層平面圖
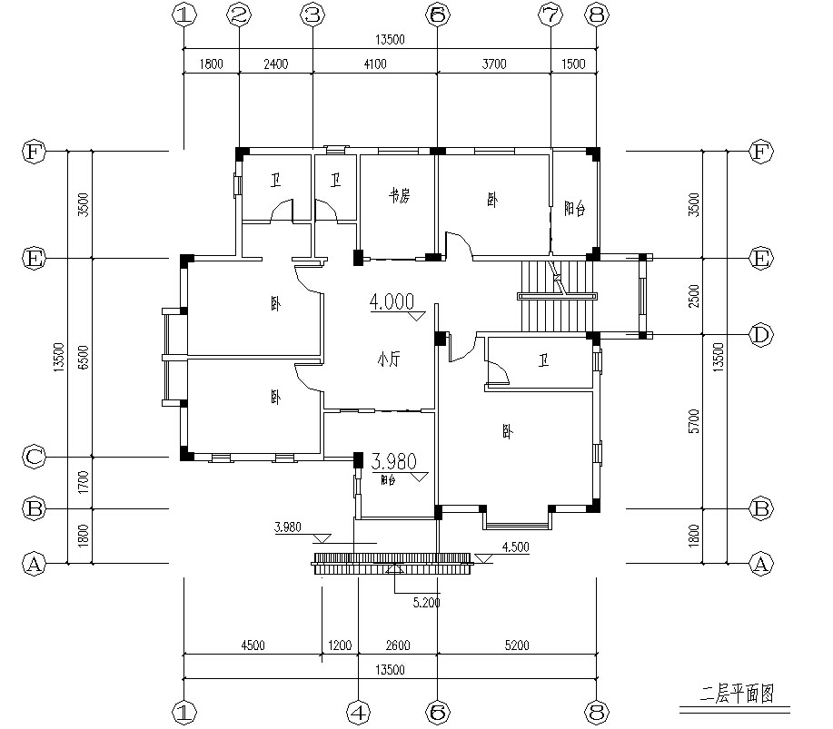
二層平面圖 三層平面圖 1、別墅花園同樣重視風水設計花園是南向的,那么可以種植的植物選擇就比較多,功能上也豐富,無論是休息小歇,還是朋友聚會,或者是兒童游樂都可以,在陽光照射下,一切都顯得清新,舒適。花園是朝北的,那么陽光的照射時間就比較短,娛樂聚會并不適合,做個游泳池,用來避暑倒是個不錯的選擇。除了南北朝向外,有的花園是面向水系的,那么這樣的花園在功能性上就多了一個親水平臺,作為建筑的延伸,形成接觸自然的媒介,以溪流、湖泊為基址的前景,形成開闊平遠的視野,讓花園的賞景功能突顯。 2、慎重考慮別墅花園風格設計別墅花園設計,最終的效果實現。人們漫步在花園青石路上,感受著周圍一草一木的芳香,聆聽著周圍小生靈發出的吵鬧聲,累了即可香樟樹下,有便捷休息椅子而坐。遠離城市喧囂,享受幽靜生活。這才是真正打造別墅花園設計所要實現的高品質生活。在設計時注重人與自然的整合,還是融合東西方造園理念和手法里的元素,但一定要確定的是,既要自己喜歡,并且能與社區的整體風格相協調。真正打造屬于大家享受生活的舒適區域。 3、利用飾品巧裝飾花園花園有敞開式布局的,與社區景觀一一呼應,風格易協調,花園大部分由社區統籌管理,方便業主;圍合式的花園,就是獨門獨院,由業主自行打理。不少業主非常注重私密性,無論是哪種花園,都會有意無意地把它圍起來,劃分出屬于自己的一片天地。一般花園分割是通過綠籬植物,這種植物生命力強,種類豐富,可根據主人的喜好有多種選擇,選擇的綠籬比較低矮,社區景觀依然可以盡收眼底。 圖紙之家-專注農村別墅/自建房設計18年,集合國內200余位經驗豐富的設計師,被評為口碑最好的農村建筑設計公司! |

一層半房屋別墅設計圖,帶閣樓圖、帶露臺,外觀新穎時尚
占地:130平方米
帶電梯農村建房三層小洋樓,樓中樓結構,帶露臺
占地:110平方米
實用農村三層房屋設計圖紙,效果圖+全套施工圖
占地:113平方米
帶堂屋設計一層5間平房新農村自建別墅效果圖全套施工圖
占地:198.41平方米
新農村實用三層帶露臺房屋設計圖紙,占地110平方米
占地:109平方米
面寬11米超實用的農村一層別墅設計圖,南北通透造價不高
占地:110.47平方米
農村蓋房設計大全一層房子的設計圖紙,色調清新靚麗
占地:220平方米
一層四合院別墅,中式庭院寬綽大氣,這樣的合院養老最合適
占地:396平方米
農村一層五間(6間)新農村設計圖方案,含外觀圖片
占地:193.47平方米
中式二層三合院設計圖紙含外觀效果圖片,大氣又實用
占地:216.04平方米
100平新農村三層復式房屋別墅設計圖紙,造價30萬左右
占地:106平方米
三層農村小別墅設計圖,一層帶商鋪,占地110平米,經濟實用
占地:110平方米
田園輕奢三層帶露臺的鄉村別墅設計圖紙,11x10米
占地:106.64平方米
新農村三層別墅設計圖紙及效果圖,全套cad建筑圖
占地:119平方米
新農村三層房屋住宅設計圖紙大全(含效果圖)
占地:122平方米
12x13米豪華三層農村別墅設計圖,宅基地上的貴族人生
占地:156平方米
經典的農村三層小樓房設計圖,外觀圖片時尚、精致
占地:100平方米
新中式農村三層樓房設計圖紙,全套圖紙設計,線條錯落有致
占地:130平方米
二層中式四合院別墅設計圖,經典、漂亮(全套施工圖)
占地:350平方米
推薦:10套新農村自建房設計圖,2026年最新設計
閱讀次數:4825737次
100套鄉村別墅圖片大全,2026年最新設計
閱讀次數:2492203次
6款農村蓋一層平房的設計圖,10萬元就能建起來
閱讀次數:1852637次
這11個一層農村自建房別墅火爆了朋友圈!我最喜歡戶型十!你呢
閱讀次數:750268次
農村6萬元建一層小別墅圖,你敢相信嗎
閱讀次數:567686次
農村5萬塊就能自建房,6套普通房子設計圖分享,你沒看錯!
閱讀次數:419410次
8套農村漂亮三間平房圖片,非常適合在農村修建!
閱讀次數:411197次
農村自建房化糞池怎么做?附方案及施工過程
閱讀次數:391783次
農村一層三間平房設計圖,告別土氣養老房,讓人忍不住點贊
閱讀次數:350581次
新農村二層樓房圖片造價12萬,挑一套回家建房吧!
閱讀次數:349126次
