占地尺寸:面寬11.35米x進深10.8米
占地面積:113.7平方
建筑總面積/總層高:321.7平米(不含入戶平臺、陽臺、露臺)/總高11.7米,屋檐口高9.9米
平面功能介紹:
一層:三室兩廳一廚兩衛一樓梯
進門中間入戶平臺(5.88㎡),進門右邊客房(14.38㎡),進門中間堂屋(31.7㎡)
左邊房間帶衛生間(14.38㎡),左邊后面廚房餐廳(16.2㎡),后面中間樓梯(12.2㎡)
后面右邊客房(11.8㎡),右邊中間衛生間(2.45㎡),以上面積均為室內套內實用面積。
二層:三室一廳一陽臺兩衛一休閑室一書房一樓梯
入戶平臺上陽臺(8.1㎡),左邊前面帶衛生間主臥室(14.38㎡),前面中間客廳過道(31.7㎡)
右邊中間公衛生間(2.45㎡),左邊后面書房(7.1㎡),后面中間休閑廳(8.2㎡),右邊前面臥室(14.38㎡);后面中間樓梯(12.2㎡),右邊后面房間(11.8㎡),以上面積均為室內套內實用面積。
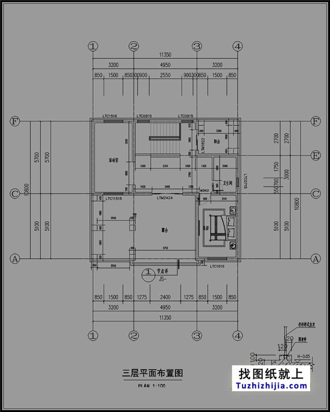
三層:一室一活動室兩露臺一衛生間一樓梯
右邊前面中間露臺(44.1㎡),右邊前面臥室(14.38㎡)
右邊中間公衛生間(4.85㎡),左邊后面活動房(16.2㎡),后面右邊樓梯(12.2㎡),右邊后面陽臺(8.6㎡),以上面積均為室內套內實用面積。
施工圖(建施圖、結施圖、)共40張,效果圖3張。
建施圖指(建筑說明、每層平面圖、各面立面施工圖、以及剖面圖、節點詳圖等)
結施圖指(結構說明、基礎圖、柱配筋、板配筋、梁配筋等與鋼筋結構有關的圖紙)
水施圖指(水路說明、給水系統、排水系統、給排水詳細布置等)
電施圖指(電路說明、電路系統、強弱電位置/線路布置、燈控照明、防雷系統等)





































































































