圖紙目錄:
建 筑 圖:建筑設計說明、一層平面圖、二層平面圖、三層平面圖、屋頂平面圖、正立面圖、背立面圖、左立面圖、右立面圖、1-1剖面圖、樓梯大樣圖、門斗大樣圖、節點大樣圖、門窗詳圖、門窗表等;
結 構 圖:結構設計說明、基礎平面布置圖、基礎大樣圖、一層梁結構平面圖、二層梁結構平面圖、三層梁結構平面圖、屋頂梁結構平面圖、二層板結構平面圖、三層板結構平面圖、屋面板結構平面圖、樓梯大樣圖、節點大樣圖等;
給排水圖:給排水設計說明、一層給排水平面圖、二層給排水平面圖、三層給排水平面圖、屋頂給排水平面圖、衛生間大樣圖、給排水系統圖等;
電 氣 圖:電氣設計說明、配電系統圖、弱電系統圖、配電干線系統圖、一層照明平面圖、二層照明平面圖、三層照明平面圖、一層插座平面圖、二層插座平面圖、三層插座平面圖、一層弱電平面圖、二層弱電平面圖、三層弱電平面圖、接地平面圖、屋頂防雷平面圖等;
全套A3設計圖+效果圖,拿到即可施工。
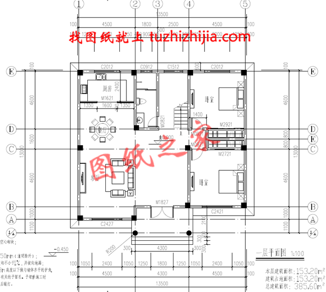
A戶型:開間:13.5 進深:13.0 框架結構







B戶型:開間:16.3 進深14.3 框架結構






C戶型:開間:11.0 進深:11.3 框架結構






D戶型:開間12.06 進深:11.8 磚混結構






E戶型:開間:13.2 進深12.6 磚混結構






F戶型:開間:10.5 進深13.0 磚混結構






G戶型:開間11.4 進深10.5 框架結構






H戶型:開間:11.8 進深12.0 磚混結構






I戶型:開間:12.4 進深:13.9 框架結構






J戶型:開間:9.7 進深:12.6 磚混結構




































































































