
|
給家里要建房的朋友提個醒,王屋的樓層并不是越多越好,能滿足家里的需求就可以了。如果家里蓋了三四層樓,但是上邊很少用到,就是浪費了。對于一般家庭來說,二層的別墅住著剛剛好,最重要的是造價也不高。 下邊給大家推薦6套農村二層自建房,精致漂亮、經濟適用,快來看看吧! 第一套
正面效果圖
鳥瞰圖 占地面積:19.24m*18.00m(帶院子的尺寸),350平方米左右; 建筑層高:二層; 建筑高度:10.09米(含屋頂); 一層戶型設計:院子、車庫、客廳、餐廳、廚房、衛生間、臥室(帶衛生間)、儲藏間、大廳(根據實際情況隔斷); 二層戶型設計:客廳、臥室x5(其中2個臥室帶衛生間)、書房、露臺;
一層平面圖
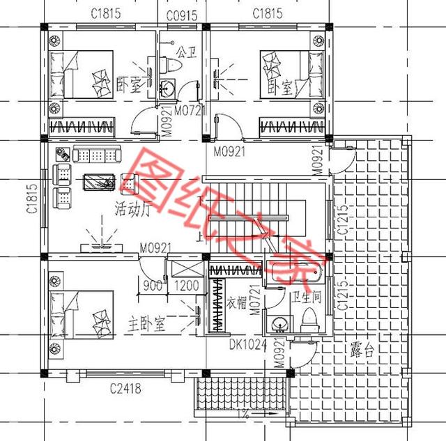
二層平面圖 第二套
別墅效果圖 占地面積:11.5m*10.5m,120平方米左右; 建筑層高:二層; 建筑高度:9.20米(含屋頂); 一層戶型設計:客廳、臥室x2、廚房、餐廳、衛生間 二層戶型設計:主臥、起居室、臥室x2、書房、衛生間、陽臺
一層平面圖
二層平面圖 第三套
別墅效果圖 占地面積:12m*10m,120平方米左右; 建筑層高:二層; 建筑高度:8.60米(含屋頂); 一層戶型設計:客廳(堂房)、臥室、廚房、餐廳、衛生間、雜物房 二層戶型設計:客廳、娛樂室、臥室x3、露臺
一層平面圖
二層平面圖 第四套
別墅效果圖 占地面積:13.2m*16.2m,210平方米左右; 建筑層高:二層; 建筑高度:9.31米(含屋頂); 一層戶型設計:客廳、臥室、廚房、餐廳、衛生間、車庫、曬衣間 二層戶型設計:客廳、主臥(衣帽間、衛生間)、2臥室、衛生間、露臺
一層平面圖
二層平面圖 第五套
別墅效果圖 占地面積:18.20m*16.00m,250平方米左右; 建筑層高:二層; 建筑高度:10.15米(含屋頂); 一層戶型設計:門廳、客廳、廚房、餐廳、臥室(帶衛生間)、衛生間x2(可以做成一個)、車庫; 二層戶型設計:客廳、棋牌室、臥室x4(都帶衛生間,可以根據實際情況去掉)、衛生間;
一層平面圖
二層平面圖 第六套
正面效果圖
背面效果圖
鳥瞰圖 占地面積:20.5m*14.6m,240平方米左右; 建筑層高:二層; 建筑高度:9.9米(含屋頂); 一層戶型設計:堂屋、客廳、餐廳、廚房、土灶房、衛生間×2、臥室×2、棋牌室、儲藏間、車庫; 二層戶型設計:休閑廳、主臥(帶衛生間)×3、臥室x2、衛生間、大露臺;
一層平面圖
二層平面圖
圖紙之家-專注農村別墅/自建房設計18年,集合國內200余位經驗豐富的設計師,被評為口碑最好的農村建筑設計公司! |

最新12x9米一層平房別墅設計圖,好看不貴居住舒適!
占地:108平方米
私人二層農村小樓設計圖,外觀靚麗,富有現代氣息
占地:160平方米
新中式農村兄弟合建三層雙拼別墅全套設計圖紙,3款戶型方案
占地:多種戶型
農村二層別墅優選設計圖,戶型小巧精致,顏值與實用并存!
占地:95.25平方米
20萬左右普通農村房子設計圖,二層簡約小別墅
占地:140平方米
時尚的農村二層別墅圖紙設計,現代風格,簡約的外觀
占地:152平方米左右
農村二間二層房子設計方案圖,造型小巧精致,10米乘12米
占地:110平方米
農村120方三層自建房子圖,好看又不貴的三層農村別墅
占地:120平方米
三層三間別墅設計圖方案,含外觀圖片,自建推薦
占地:125平方米
農村7字形漂亮房子設計圖及外觀效果圖
占地:189.3平方米
農村小戶型三層復式樓房設計圖,100平左右
占地:100平方米
13.5米乘11米兩層半別墅設計圖,中式與現代相融合
占地:148.5平方米
自建二層獨棟別墅建筑施工圖,含效果圖和全套設計圖紙
占地:198.72平方米
200多平方米新農村雙拼別墅設計圖紙,堂屋和樓梯共用
占地:207平方米左右
開間9到10米簡約別墅設計圖紙帶效果圖,全套別墅設計方案
占地:122平方米
驚艷全村的三層別墅設計圖,12×16米美觀大氣布局超合理
占地:179.8平方米
130平方米現代簡約農村兩層樓房施工設計圖紙帶外觀圖
占地:126平方米
面寬17米農村實用自建房一層別墅設計圖,簡約大氣經濟時尚
占地:192.94平方米
全網都在抄的二層別墅!爆款12米面寬設計戶型太實用
占地:139.51平方米
農村二層舒適好房,這款四開間別墅設計圖真的很不錯
占地:220.46平方米
推薦:10套新農村自建房設計圖,2026年最新設計
閱讀次數:4825737次
100套鄉村別墅圖片大全,2026年最新設計
閱讀次數:2492203次
6款農村蓋一層平房的設計圖,10萬元就能建起來
閱讀次數:1852637次
這11個一層農村自建房別墅火爆了朋友圈!我最喜歡戶型十!你呢
閱讀次數:750268次
農村6萬元建一層小別墅圖,你敢相信嗎
閱讀次數:567686次
農村5萬塊就能自建房,6套普通房子設計圖分享,你沒看錯!
閱讀次數:419410次
8套農村漂亮三間平房圖片,非常適合在農村修建!
閱讀次數:411197次
農村自建房化糞池怎么做?附方案及施工過程
閱讀次數:391783次
農村一層三間平房設計圖,告別土氣養老房,讓人忍不住點贊
閱讀次數:350581次
新農村二層樓房圖片造價12萬,挑一套回家建房吧!
閱讀次數:349126次
