
|
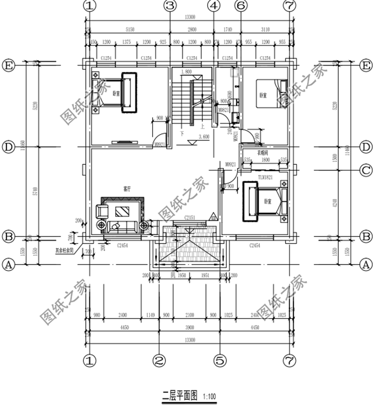
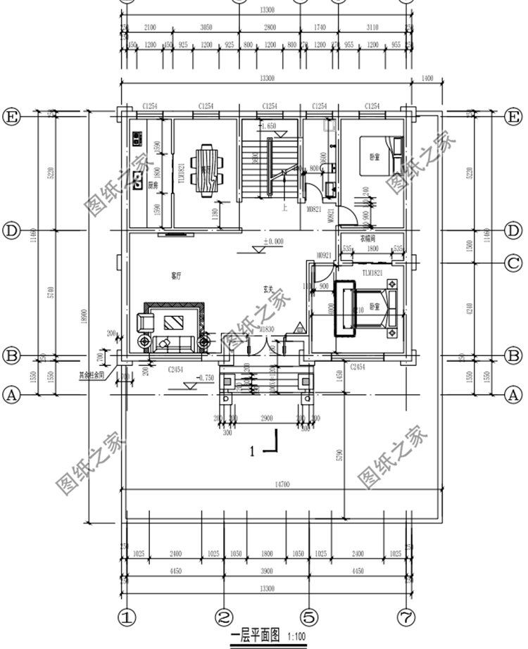
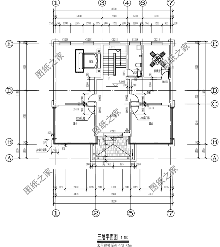
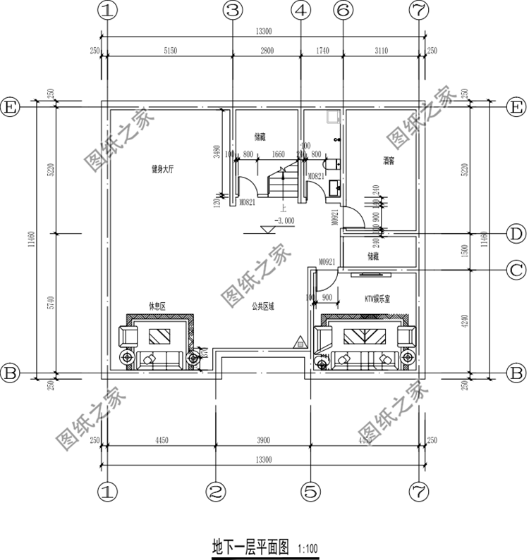
什么是真正意義上的豪宅呢?大多數人都認為占地面積大,外觀豪華,其實真正意義上的豪宅并不是單從外觀看的,還要看看它內部的布局。今天給大家推薦的這三款帶地下室三層自建房設計圖,帶有地下室設計,功能非常齊全,娛樂空間十分充足,絕對堪稱豪宅,喜歡收藏。 戶型一:農村三層別墅設計圖,帶地下室和旋轉樓梯設計圖紙介紹:本戶型占地134平米,帶地下室和旋轉樓梯設計,二三層復式挑空客廳。外墻面采用黃色涂料和墨色涂料裝飾,屋頂為藍色釉面瓷瓦鋪蓋,外觀大氣,優雅端莊,非常好看。地下室空間豐盈,完全沒有進行任何隔斷劃分,可自行安排空間;一層入戶就是玄關,具有連接室內外和空間過渡緩沖的作用,左拐角就是寬敞明亮的客廳,旋轉樓梯大氣時尚,設置一個臥室,可以作老人房,避免老人爬樓梯摔跤受傷;二層三間臥室,挑空設計,加大了整體的視覺效果,保證屋內陽光充足與通風穩定。朝南大露臺方便晾曬家中衣物,也可以開闊視野,作為觀景平臺使用;三層和二層布局相同。小露臺可作為日常生活娛樂場所。 占地面積:12.4m*11.88m,134.75平方米左右; 建筑層高:三層; 建筑高度:12.495米(含屋頂); 設計功能: 地下室戶型:功能自定義; 一層戶型:玄關、客廳、餐廳、廚房、書房、臥室(帶衛生間)、衛生間; 二層戶型:客廳挑空、起居室、娛樂室、臥室(帶衛生間)、臥室x2、衛生間、陽臺; 三層戶型:起居室、娛樂室、臥室(帶衛生間)、臥室x2、衛生間、露臺; ![]() ![]() ![]() ![]() ![]() 戶型二:農村三層別墅設計圖,占地150平米,帶地下室設計圖紙介紹:本戶型占地150平米左右,帶地下室設計,外觀豪華大氣,室內布局合理,地下室功能齊全,娛樂空間十分充足,喜歡這種戶型設計的朋友可以收藏。 占地面積:13.3m*11.4m,一層占地150平方米左右; 建筑層高:三層; 建筑高度:12.7米(含屋頂); 設計功能: 地下室:酒窖、儲藏室、娛樂室、休息區、健身大廳; 一 層:客廳、廚房、餐廳、臥室(帶衣帽間)、臥室、衛生間; 二 層:客廳、臥室(帶衣帽間)、臥室x2、衛生間; 三 層:起居室、臥室、棋牌室、茶室、衛生間、大露臺×2; ![]() ![]() ![]() ![]() ![]() 戶型三:農村三層別墅設計圖,帶地下室設計,復式挑空戶型圖紙介紹:這款三層別墅占地143平米左右,帶地下室設計,復式挑空戶型。一層廚房、餐廳規劃在后,隔離油煙。二層3個臥室,滿足家人日常休息,溫馨舒適;小客廳與陽臺相連,通風采光棒。三層臥室充裕,可作為客房,方便接待親友,臺寬敞,可打造成空中花園。 占地面積:12.2m*13.3m,143.29平方米左右; 建筑層高:三層; 建筑高度:13.9米(含屋頂); 設計功能: 地下室戶型:酒窖、影音室; 一層戶型:客廳、健身房、廚房、餐廳、臥室、衛生間; 二層戶型:客廳上空、小客廳、臥室(衛生間)x2、臥室、衛生間、陽臺; 三層戶型:小客廳、書房\臥室、臥室(衛生間)x2、臥室、露臺x2; ![]() ![]() ![]() ![]() ![]() 不知道這三款戶型大家最喜歡哪一款?全部都有地下室,喜歡收藏。
圖紙之家-專注農村別墅/自建房設計18年,集合國內200余位經驗豐富的設計師,被評為口碑最好的農村建筑設計公司! |

帶電梯高端四層別墅房屋設計圖,外觀圖大氣、上檔次
占地:220平方米
經典農村二層小別墅設計圖紙帶露臺(含外觀效果圖)
占地:110平方米
漂亮實用三層新農村小別墅設計圖紙,占地150平米,帶露臺,從哪
占地:150平方米
230平方農村雙拼別墅設計圖,26x11米自建房屋戶型
占地:230平方米
最新潮的90平方米三層房屋設計圖 ,古樸典雅又不失時尚
占地:90平方米
210平左右三層(兩層半)雙拼新農村別墅設計圖紙及外觀效果圖
占地:206.712平方米
三層兩開間小面寬別墅設計圖紙帶外觀效果圖,95平方米
占地:94.61平方米
農村一層四間平房設計圖方案,含外觀圖片,預算10萬
占地:190平方米
農村中式一層三合院自建房戶型方案圖,帶庭院設計
占地:222平方米
造型新穎漂亮的農村二層現代風別墅設計圖,老少皆宜的外觀
占地:144.54平方米
占地百平三層歐式別墅設計圖,回到家鄉建一棟,大氣美觀有內涵
占地:99.94平方米
新農村二層雙拼小別墅設計圖,開間22米的現代房屋圖紙設計
占地:230平方米
180平方米漂亮大氣三層雙拼別墅設計圖,自建房圖片
占地:186平方米
三層現代簡約農村雙拼小別墅圖,好看精致,開間17米
占地:187平方米
開間8米的小戶型二層別墅設計圖,2開間占地不到60平
占地:56平方米左右
農村二間二層房子設計方案圖,造型小巧精致,10米乘12米
占地:110平方米
兩層樓房設計圖,兩層新農村樓房圖紙,外觀典雅古樸
占地:140平方米
新款漂亮農村三層別墅建筑設計圖紙帶效果圖片,3種戶型
占地:125平方米
巴洛克風格農村二層別墅設計圖(偏法式),對稱式設計,太講究
占地:210.25平方米
100平客廳挑高三層樓房設計圖,復式結構
占地:100平方米
推薦:10套新農村自建房設計圖,2026年最新設計
閱讀次數:4825737次
100套鄉村別墅圖片大全,2026年最新設計
閱讀次數:2492203次
6款農村蓋一層平房的設計圖,10萬元就能建起來
閱讀次數:1852637次
這11個一層農村自建房別墅火爆了朋友圈!我最喜歡戶型十!你呢
閱讀次數:750268次
農村6萬元建一層小別墅圖,你敢相信嗎
閱讀次數:567686次
農村5萬塊就能自建房,6套普通房子設計圖分享,你沒看錯!
閱讀次數:419410次
8套農村漂亮三間平房圖片,非常適合在農村修建!
閱讀次數:411197次
農村自建房化糞池怎么做?附方案及施工過程
閱讀次數:391783次
農村一層三間平房設計圖,告別土氣養老房,讓人忍不住點贊
閱讀次數:350581次
新農村二層樓房圖片造價12萬,挑一套回家建房吧!
閱讀次數:349126次
