
|
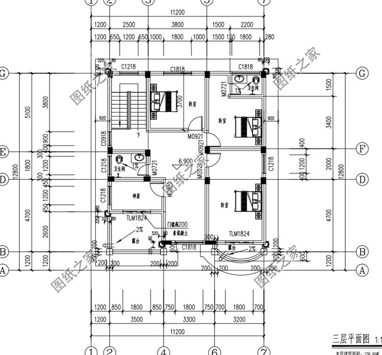
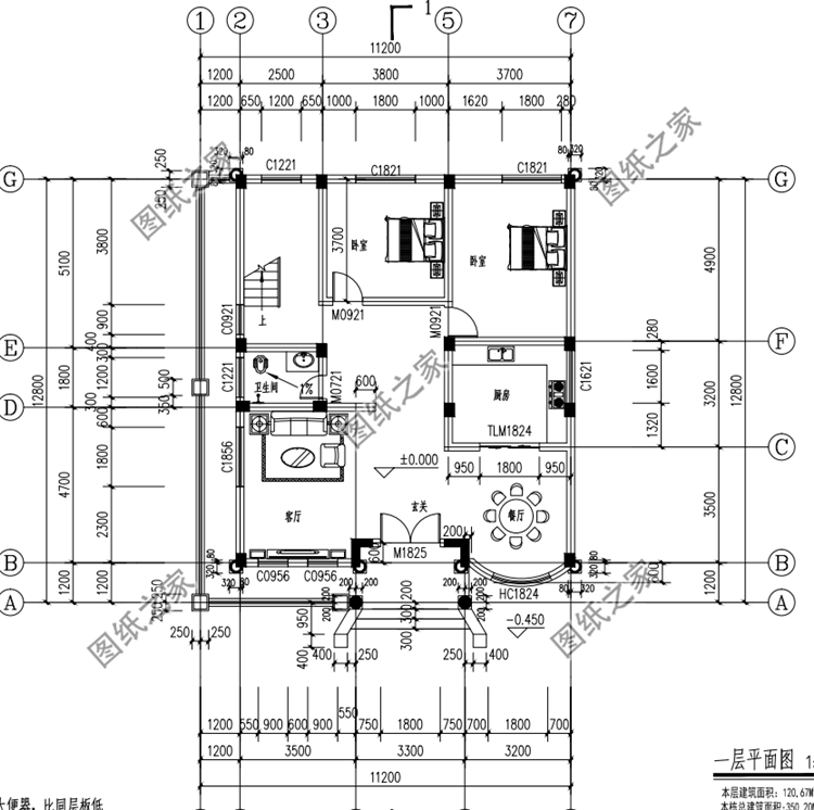
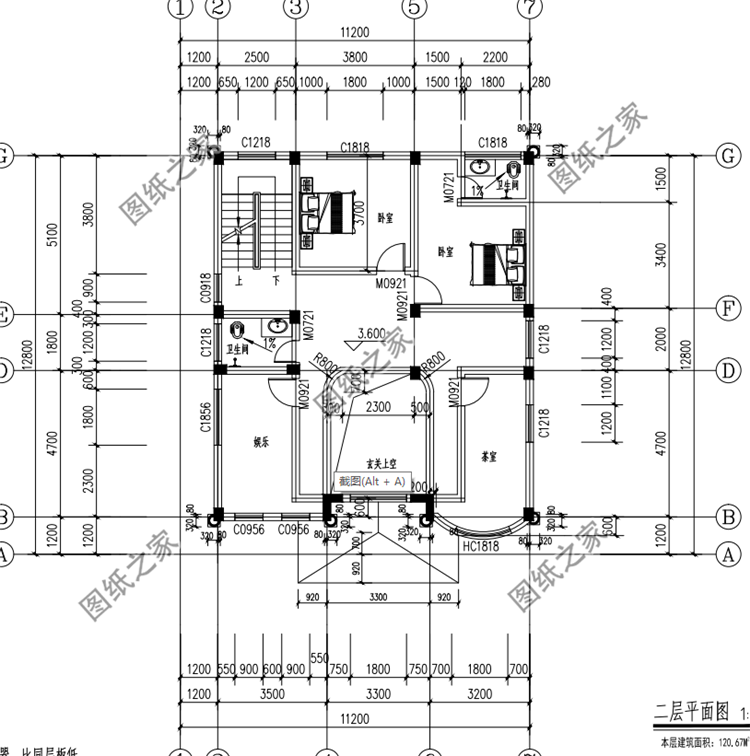
現在的農村可比城市生活好多了,不僅家家戶戶都住小洋樓,空氣也比城里清新多了,所以越來越多的人都回到農村生活。既然選擇回到老家,那么就要蓋一棟小房子住,這樣生活也愉快很多。今天就給大家推薦三款讓人心動的三款復式小洋樓外觀效果圖,戶型大氣方正,讓人看了羨慕不已。 方案一:農村三層別墅設計圖,占地130平方米左右,戶型利用率高圖紙介紹:本戶型占地130平米左右,主體造價30來萬,戶型利用率高,外觀設計經典時尚,外墻采用鮮明的淺黃色主色,給人一種比較活躍的視覺效果。有多個飄窗設計,延伸室內的空間,一樓客廳空間非常大,方便農村置辦紅白事,三樓設有方形大露臺,視野開闊,活動空間充足。 占地面積:11.76m*10.76m,130平方米左右; 建筑層高:三層; 建筑高度:13.44米(含屋頂); 設計功能: 一層戶型:客廳、神臺、餐廳、廚房、臥室(帶衛生間)、儲物間、洗衣房、衛生間; 二層戶型:客廳上空、客廳、臥室x2、主臥(帶衛生間)、衛生間、陽臺; 三層戶型:客廳、臥室x2、臥室(帶衛生間)、衛生間、陽臺、露臺; ![]() ![]() ![]() ![]() 方案二:農村三層別墅設計圖,歐式風格,外觀漂亮戶型實用圖紙介紹:這款三層房子占地128平米,歐式風格外觀漂亮戶型實用,立面造型精致優雅,同時莊嚴穩重,彰顯了房主的格調和品味。一層入戶設玄關,作為進出別墅的過渡區間,老人房緊鄰洗手間,方便老人生活;二層客廳挑空,再搭配旋轉樓梯,看來非常高大上,再配上歐式吊燈,華麗麗既視感。 占地面積:11.76m*10.76m,128.742平方米左右; 建筑層高:三層; 建筑高度:13.392米(含屋頂); 設計功能: 一層戶型:玄關、神位、客廳、餐廳、廚房、臥室、衛生間; 二層戶型:客廳挑空、小客廳、臥室(帶衛生間)x2、陽臺; 三層戶型:小客廳、臥室、臥室(帶衛生間)x2、露臺; ![]() ![]() ![]() ![]() 方案三:農村120平米三層自建房設計圖,歐式風格設計,內部布局合理圖紙介紹:這款三層自建房占地120平米左右,歐式風格,內部設計考慮風水布局,絕對風水好,布局合理,茶室、娛樂室全都有,非常適合農村自建。 占地面積:11.2m*12.8m,一層占地120平方米左右; 建筑層高:三層; 建筑高度:13.4米(含屋頂); 設計功能: 一 層:客廳、廚房、餐廳、臥室×2、衛生間; 二 層:玄關上空、臥室(帶衛生間)、茶室、娛樂室、衛生間; 三 層:臥室(帶衛生間)、臥室×2、神位、衛生間、露臺; ![]() ![]() ![]() ![]() 喜歡復式戶型的朋友記得收藏這三款,不要錯過哦。
圖紙之家-專注農村別墅/自建房設計18年,集合國內200余位經驗豐富的設計師,被評為口碑最好的農村建筑設計公司! |

兩戶250平方米農村豪華歐式三層兄弟雙拼別墅設計圖
占地:251平方米
140平二層帶閣樓別墅設計方案圖,外觀圖片色彩明快
占地:140平方米
方正對稱二層農村自建別墅施工圖,經濟實用舒適大氣
占地:129.6平方米
帶車庫徽派風格三層別墅房屋設計圖,新農村住宅設計推薦
占地:140平方米
30萬農村小別墅設計圖片,30萬別墅設計戶型推薦
占地:130平方米
簡單農村二層平屋頂房屋設計圖,外觀簡潔、大方
占地:200平方米
農村120方三層自建房子圖,好看又不貴的三層農村別墅
占地:120平方米
精致簡歐一層別墅設計圖,經典大氣百看不厭
占地:139.57平方米
一層農村三合院平房設計圖,可以倆兄弟或和父母兒女一起住
占地:202.79平方米
165平方米農村帶陽光房的二層小別墅設計圖紙帶外觀圖18.16米*9.
占地:166平方米
偏徽派風格民居三層農村住宅設計圖,白墻黛瓦的古雅簡潔
占地:101.01平方米
帶小院七字形一層自建房戶型設計圖,平屋頂圖紙
占地:201.08平方米
復式別墅新農村二層房屋設計圖紙,屋頂錯落有致
占地:多戶型可選
最新款二層鄉下別墅設計圖,新中式風格,24萬建好主體
占地:150.94平方米
新中式三層樓房設計圖紙,帶地下室,地下車庫,帶電梯
占地:230平方米
獨棟經濟型二層小別墅房屋設計圖,含全套施工圖效果圖
占地:多種戶型
農村最好看兩層小樓圖及全套CAD施工圖紙,新中式風格,簡潔大氣
占地:150平方米
10米×13米最好看的農村三層樓房圖,客廳中空
占地:124平方米
面寬13米三層新中式獨棟別墅設計圖,復式自建房戶型方案
占地:201.25平方米
110平方米新農村三層別墅設計圖,含外觀效果圖
占地:109平方米
推薦:10套新農村自建房設計圖,2026年最新設計
閱讀次數:4825737次
100套鄉村別墅圖片大全,2026年最新設計
閱讀次數:2492203次
6款農村蓋一層平房的設計圖,10萬元就能建起來
閱讀次數:1852637次
這11個一層農村自建房別墅火爆了朋友圈!我最喜歡戶型十!你呢
閱讀次數:750268次
農村6萬元建一層小別墅圖,你敢相信嗎
閱讀次數:567686次
農村5萬塊就能自建房,6套普通房子設計圖分享,你沒看錯!
閱讀次數:419410次
8套農村漂亮三間平房圖片,非常適合在農村修建!
閱讀次數:411197次
農村自建房化糞池怎么做?附方案及施工過程
閱讀次數:391783次
農村一層三間平房設計圖,告別土氣養老房,讓人忍不住點贊
閱讀次數:350581次
新農村二層樓房圖片造價12萬,挑一套回家建房吧!
閱讀次數:349126次
