
|
想必大家在自建房的時候都糾結過一個問題,到底是選擇坡頂還是平頂?坡頂更美觀,不易積水、漏水,隔熱效果也更好。但是施工難度大、造價也高。與之相比,平屋頂的房屋就更平易近人了,而且可以上到屋頂運動和觀景,農村還可以晾曬糧食,房屋利用率更高,只要修建過程中沒有偷工減料,也不用擔心積水、漏水的問題。下邊給大家分享超好看的平頂二層樓圖片大全,其中包含10套別墅設計,建筑面積從90平方米到300平方米,一起來看看吧! 第一套:精致小巧新農村二層別墅圖紙介紹:精致小巧新農村二層別墅設計圖紙,占地90平米左右,造價15萬左右,經濟實用型的別墅比起歐式和中式風格的豪華,更耐看和具有情懷。 占地面積:9.8m*9.3m,90平方米左右; 建筑層高:二層; 建筑高度:10.8米; 設計功能: 一層戶型:客廳、餐廳、廚房、臥室、衛生間、儲藏間; 二層戶型:客廳、臥室x2、衛生間、書房、陽臺;
第二套:10萬左右的2層小洋樓圖紙介紹:造價10萬左右的2層小洋樓設計圖,平屋頂,戶型設計合理,屋頂有大露臺,活動休閑空間充足,露臺可用于晾曬農作物等,非常實用。 占地面積:8.5m*10.3m,90平方米左右; 建筑層高:二層; 建筑高度:7.5米(含屋頂); 設計功能: 一層戶型:客廳、餐廳、廚房、老人房(帶衛生間)、衛生間; 二層戶型:臥室x3、衛生間、陽臺x2;
第三套:漂亮經濟實用二層農村小別墅圖紙介紹:漂亮經濟實用二層農村小別墅最新房屋設計圖。既然是蓋別墅了,那一定得講究點,首先外形要漂亮,其次空間要大,不能再像商品房那樣憋屈,再次,要質量好點,不能出現漏水返潮之類的質量問題。 占地面積:11.5m*9.5m,110平方米左右; 建筑層高:二層; 建筑高度:9.9米(含屋頂); 設計功能: 一層戶型:客廳、餐廳、廚房、衛生間、主臥(帶衛生間); 二層戶型:客廳、臥室(帶衛生間)、臥室、書房、衛生間、陽臺、廚房(可做儲藏間);
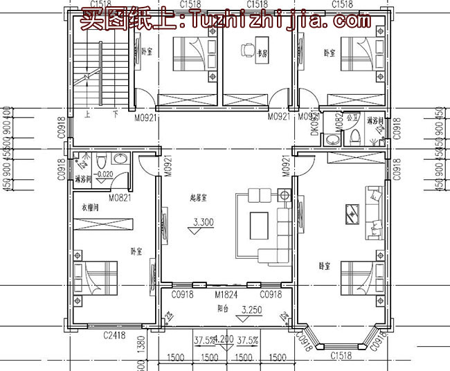
第四套:經濟實用二層復式樓房設計圖圖紙介紹:經濟實用二層復式樓房設計圖 ,占地150平方米,造價25萬左右 ,良好的挑空,能夠增強室內的采光和通風效果,提升空間的立體感、層次感。私人定制版,獨家設計。 占地面積:12.0m*13.6m,150平方米左右; 建筑層高:二層; 建筑高度:10.9米(最高點); 設計功能: 一層戶型:客廳、餐廳、廚房、臥室、棋牌室、儲藏室、衛生間; 二層戶型:客廳上空、臥室(帶衛生間)、臥室×2、衣帽間、衛生間、露臺;
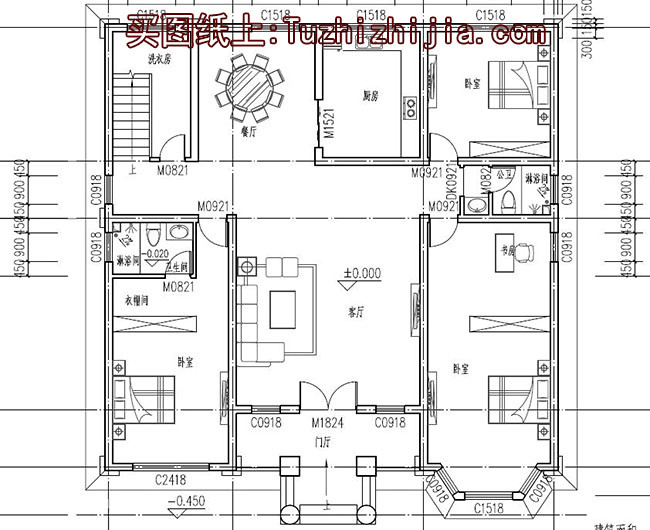
第五套:二層帶地下室樓房設計方案圖紙介紹:本戶型為二層帶地下室樓房設計方案,全套施工圖+效果圖,帶地下室,屋頂是平屋頂(做為大露臺),本方案分區比較明確,衛生間旁的臥室建議做為棋牌室、娛樂房、活動房等。 占地面積:14.4m*10.6m,一層建筑面積160平方米左右; 建筑層高:二層; 建筑高度:9.90米(含屋頂); 設計功能: 地下戶型:功能自定義; 一層戶型:門廳、客廳、臥室x3、廚房、餐廳、衛生間; 二層戶型:客廳、臥室x4、衛生間、露臺、陽臺;【衛生間旁的臥室建議做成棋牌室、娛樂室等】
第六套:最漂亮的農村二層小樓圖圖紙介紹:最漂亮的農村二層小樓,平屋頂的設計對于農村來說尤為便利。建筑特色就是多臥室的戶型,以樸質為主,外墻的配色還有房子的造型都體現出一種農村質樸的風俗習慣。 占地面積:18.0m*9.0m,170平方米左右; 建筑層高:二層; 建筑高度:11.1米(最高點); 設計功能: 一層戶型:客廳、餐廳、廚房、衛生間、臥室(帶衛生間)×2; 二層戶型:臥室(帶衛生間、小臥室)×2、臥室(帶衛生間)×3;
第七套:農村4間2層樓房設計圖圖紙介紹:農村4間2層樓房設計圖,戶型方正,四平八穩的二層農村別墅。在風水學上,方正的房子戶型形狀,可以使氣的能量產生平衡的循環流動,不會產生太過或不及的禍患,從而有益于宅主的身心健康。 占地面積:15.2m*11.6m,180平方米左右; 建筑層高:二層; 建筑高度:11米(含屋頂); 設計功能: 一層戶型:客廳、餐廳、廚房、衛生間、主臥(帶衛生間)、臥室; 二層戶型:臥室(帶衛生間、衣帽間)×2、臥室(帶衛生間)×2、洗衣房、露臺;
第八套:氣派美觀的平頂別墅房屋圖紙介紹:本戶型為氣派美觀的平頂別墅設計方案,簡歐風格,二層到樓頂設有樓梯,樓頂上有涼亭、活動房、露臺等。 占地面積:14.0m*13.8m,190平方米左右; 建筑層高:二層; 建筑高度:9.60米(含屋頂); 設計功能: 一層戶型:門廳、客廳、廚房、餐廳、臥室(含衛生間、衣帽間)、臥室x2、書房、衛生間、洗衣房(儲物間); 二層戶型:起居室(客廳)、臥室(帶衣帽間和衛生間)、臥室x3、書房、衛生間、陽臺; 三層戶型:涼亭、露臺、活動室。
第九套:簡單農村二層平屋頂房屋圖紙介紹:本方案為簡單農村二層平屋頂房屋設計圖,外觀簡潔、大方,不加多余裝飾,內部布局符合農村人的生活習慣,餐廳、廚房獨立,設有單獨的鋼梯上二樓,二樓又有鋼梯直通屋頂,屋頂相當于大曬臺,非常實用。 占地面積:16.5m*12.2m,200平方米左右; 建筑層高:二層; 建筑高度:9.4米(含屋頂); 設計功能: 一層戶型:客廳、主臥(帶衛生間)、臥室x2、衛生間、會客廳、餐廳、廚房、儲藏間; 二層戶型:客廳、臥室x2(帶衛生間)、臥室x2、健身房;
第十套:中式四合院風格別墅設計圖圖紙介紹:中式四合院風格別墅設計圖,書房、茶室、健身房一應俱全,二層大露臺,很適合老人活動養養花,曬曬太陽!這樣的房子最適合建給辛苦了一輩子的父母,讓時光變慢!此款四合院不用于其他四合院的地方是它是平屋頂的設計。 占地面積:24.3m*20.6m,367平方米左右; 建筑層高:二層; 建筑高度:7.3米; 設計功能: 一層戶型:客廳、餐廳、廚房、衛生間、主臥(帶衛生間,衣帽間)×2、臥室(帶衛生間)書房、茶室,健身房、庭院; 二層戶型:客廳、主臥(帶衛生間,衣帽間)、臥室(帶衛生間)×2、書房、茶室、公衛、大露臺;
現在對農村自建房建筑面積的審批是越來越嚴格了,與其修建坡頂房屋而把屋頂空間浪費,不如修建屋頂可以自由活動的平頂房屋。平頂房屋施工簡單,在造價上也有自己的優勢,相信會收到很多人的青睞。超好看的平頂二層樓圖片大全推薦給你,喜歡就修建一棟吧! 圖紙之家-專注農村別墅/自建房設計18年,集合國內200余位經驗豐富的設計師,被評為口碑最好的農村建筑設計公司! |

簡單實用農村自建四層小別墅設計圖(三層半),95平米
占地:95平方米
125平方米新農村三層自建別墅施工設計圖,13x10米
占地:125平方米
10×12米三層別墅戶型,挑空大客廳設計,圈粉無數的爆款方案
占地:120平方米
230平方米新農村二層自建別墅設計圖紙帶外觀圖,20X11米
占地:227平方米
2026帶車庫三層雙拼別墅房屋設計圖,配色淡雅低調
占地:224平方米
新款現代一層小別墅設計圖,農村自建平房推薦戶型
占地:多戶型可選
小戶型農村三層房屋設計圖,占地120平米,布局非常合理,外表典
占地:120平方米
100平方米左右新農村二層房屋設計建筑CAD圖紙帶外觀效果圖
占地:多戶型可選
鄉下二層樓房住宅設計圖紙及效果圖,農村二層小洋樓
占地:140平方米
30萬農村小別墅設計圖片,30萬別墅設計戶型推薦
占地:130平方米
高端大氣三層歐式別墅設計圖,高檔新款外型圖片美觀時尚
占地:168平方米
新款三層農村自建別墅設計圖,中式風復式客廳
占地:158.96平方米
私人經濟小別墅設計圖,農村自建小洋樓100平左右戶型
占地:104平方米
時尚四開間二層農村別墅,經典大氣,引領建房新潮流!
占地:159.6平方米
南方新農村三層別墅設計圖紙,含效果圖,帶車庫
占地:120平方米
舒適大方三層房屋設計圖紙及圖片,占地150平米,布局合理,臥室
占地:150平方米
中式二層三合院設計圖紙含外觀效果圖片,大氣又實用
占地:216.04平方米
巴洛克風格農村二層別墅設計圖(偏法式),對稱式設計,太講究
占地:210.25平方米
農村養老房還是一層好,帶閣樓的一層房子設計圖
占地:135平方米
新中式二層雙拼別墅農村自建房子設計圖紙,面寬19米
占地:240平方米左右,單
推薦:10套新農村自建房設計圖,2026年最新設計
閱讀次數:4825737次
100套鄉村別墅圖片大全,2026年最新設計
閱讀次數:2492203次
6款農村蓋一層平房的設計圖,10萬元就能建起來
閱讀次數:1852637次
這11個一層農村自建房別墅火爆了朋友圈!我最喜歡戶型十!你呢
閱讀次數:750268次
農村6萬元建一層小別墅圖,你敢相信嗎
閱讀次數:567686次
農村5萬塊就能自建房,6套普通房子設計圖分享,你沒看錯!
閱讀次數:419410次
8套農村漂亮三間平房圖片,非常適合在農村修建!
閱讀次數:411197次
農村自建房化糞池怎么做?附方案及施工過程
閱讀次數:391783次
農村一層三間平房設計圖,告別土氣養老房,讓人忍不住點贊
閱讀次數:350581次
新農村二層樓房圖片造價12萬,挑一套回家建房吧!
閱讀次數:349126次
