
|
隨著農村生活品質的提高,越來越多的小高樓在農村建了起來,層出不窮的變化,無非是樣式,顏色以及風格上選擇,二層三層的居多,很少看到四層高樓,誰說小面寬的宅基地就建不了大別墅,下面的兩款別墅面寬小,檔次可不低,不信請往下看! 別墅一:
這套四層別墅在農村可以算是小高樓了,一樓的車庫設計格外貼心,東邊的飄窗設計很特別,增添了幾分唯美浪漫之感,另外頂層的老虎窗造型感很強,通風采光都是杠杠的。 占地尺寸:8.76X10.2米 占地面積:96.08平方 建筑面積:384.34平方 主體造價:32萬左右
一層平面設計圖:車庫的獨立設計,不占用主功能區的使用空間,設客廳,寬敞有余,另外廚房和餐廳不設阻擋,便于就餐。
二層平面設計圖:設有三間臥室,南邊的臥室帶獨衛,北邊的兩臥室之間的空間比較小,設為儲藏室,合理的利用了每一寸空間,另外客廳可以直接通向陽臺,大廳顯得通透敞亮。
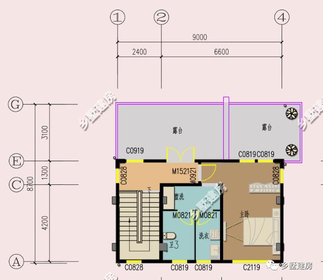
三層平面設計圖:樓梯上去兩間臥室,南邊的臥室帶陽臺,書房,獨衛,居住起來舒心愜意,北邊還有一個小客廳。
四層平面設計圖:一個小閣樓的功能發揮到了極致,設有兩個儲藏室,專門設了個洗衣房,主人平常洗衣服就方便多了,健身房連著陽臺,空間很大,平常健身鍛煉都不用出門,室內的透風采光也是絲毫不用擔心的,采光極佳。 別墅二: 這是另外一款四層小別墅,整體風格屬于超現代簡約風,每一層設單獨的陽臺,相對獨立的空間,如果有多余的一層可以租給農村淘寶做辦公室也未嘗不可,商住一體的農村別墅你見過么?
占地尺寸:9.2×7.1米 占地面積:66平方米 建筑面積:460.46平方米 結構類型:框架結構 建筑層數:5層 建筑高度:17.60米 主體造價:40萬左右
一層平面圖:入戶是餐廳,內堂設神龕,廚房和衛生間都在樓梯口。
二層平面圖:設有兩間臥室,一間臥室在樓梯口,可以設為客房,客廳比較寬敞,可以直接通向陽臺,室內光線就比較亮了,衛生間也是干濕分離的。
三層平面圖:布局基本和二層保持一致,兩個衛生間,一個客廳,一個衛生間,同樣干濕分離,各層的獨立性比較強。
四層平面圖:兩個大露臺的設計格外亮眼,同時也很實用,晾曬、觀景和娛樂為一體,單獨一個主臥,衛生間干濕分離,還設有專門的洗衣區。 圖紙之家-專注農村別墅/自建房設計18年,集合國內200余位經驗豐富的設計師,被評為口碑最好的農村建筑設計公司! |

現代新中式四層復式別墅房屋設計圖,旋轉樓梯,含效果圖
占地:150平方米
新農村小洋樓三層別墅戶型設計圖,開間9米,造價25萬
占地:94平方米
兄弟合建中式一層四合院設計圖,古樸雅致代代相傳,永不過時
占地:468.03平方米
農村小別墅一層設計圖紙,全套施工圖兩款戶型可選
占地:多種戶型可選
農村別墅220-240平米的雙拼自建房設計圖,屋頂帶老虎窗
占地:220平方米
三層蓋房子歐式挑空客廳別墅設計圖,外觀漂亮戶型實用
占地:多種戶型
農村三層別墅新款圖片及戶型設計圖紙大全,110平簡歐風格
占地:110平方米左右
時尚大方的農村二層自建房屋設計圖紙,占地120平米左右
占地:120平米
兩層15萬農村自建房設計圖,農村蓋房設計大全圖
占地:130平方米
獨棟小別墅設計圖,造價30萬左右的獨棟小別墅設計推薦
占地:150平方米
田園兩層半別墅新農村房屋施工設計圖,外觀清新靚麗感情色彩豐
占地:144.12平方米
農村20萬左右三層住房設計圖,小宅基地首選
占地:95平方米
三層帶車庫樓中樓建房別墅圖紙,占地130平米左右,戶型室內布局
占地:130平方米
農村三層樓房設計圖及圖片,客廳挑空,優化室內采光
占地:140平方米
占地170平米2026新款三層別墅設計圖片及設計方案
占地:170平方米
200平米二層自建房別墅設計圖,外觀漂亮布局實用
占地:207.09平方米
二層樓房圖片及施工圖紙,占地160平米左右,帶車庫
占地:160平方米
90平-100平小戶型一層三間平房農村別墅設計圖方案戶型
占地:多戶型可選
門廳共用二層歐式兄弟雙拼別墅圖片及施工圖
占地:340平方米
150平農村三層歐式別墅設計圖紙,盡顯豪華與精致,讓人羨慕不已
占地:147.62平方米
推薦:10套新農村自建房設計圖,2026年最新設計
閱讀次數:4825737次
100套鄉村別墅圖片大全,2026年最新設計
閱讀次數:2492203次
6款農村蓋一層平房的設計圖,10萬元就能建起來
閱讀次數:1852637次
這11個一層農村自建房別墅火爆了朋友圈!我最喜歡戶型十!你呢
閱讀次數:750268次
農村6萬元建一層小別墅圖,你敢相信嗎
閱讀次數:567686次
農村5萬塊就能自建房,6套普通房子設計圖分享,你沒看錯!
閱讀次數:419410次
8套農村漂亮三間平房圖片,非常適合在農村修建!
閱讀次數:411197次
農村自建房化糞池怎么做?附方案及施工過程
閱讀次數:391783次
農村一層三間平房設計圖,告別土氣養老房,讓人忍不住點贊
閱讀次數:350581次
新農村二層樓房圖片造價12萬,挑一套回家建房吧!
閱讀次數:349126次
