
|
安居樂業,是每個人的生活目標,樂業的前面,是安居,所以說我們只有安居了,才能樂業,擁有一個穩定的住所,不管再苦再累也不怕。不管你是在城市里買房也好,在農村建房也罷,首先要考慮給自己和家人營造一個良好的住房環境,生活也會更具幸福感。下面自建別墅網的小編給大家分享2款30萬帶挑空客廳三層農村自建房設計圖。 【戶型1】
戶型1效果圖 開間進深10.9米,建筑高度11.796米,采用框架結構;主體造價30萬;建筑面積 270㎡。一層設有2廳1廚2衛1臥,二層設有3臥1衛1陽臺1露臺,三層設有2臥1衛。 戶型1室內布局
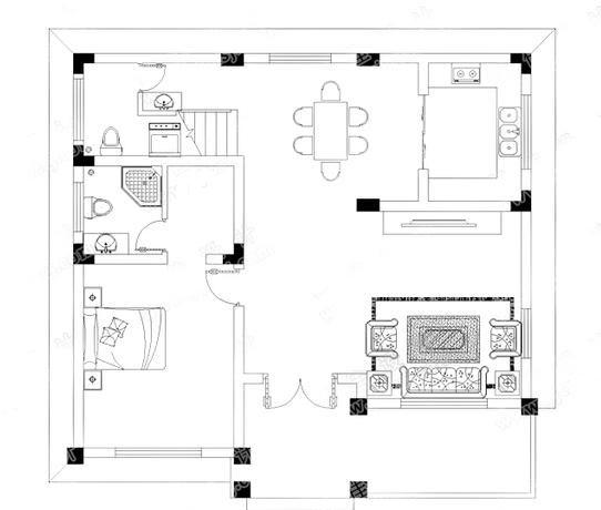
一層平面圖 一層:挑空客廳、餐廳、廚房、臥室(帶衛生間)、衛生間
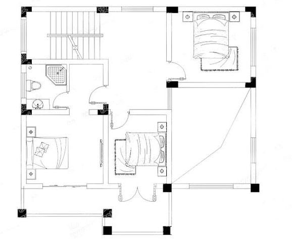
二層平面圖 二層:臥室(帶陽臺)、臥室(帶衛生間、露臺)、臥室
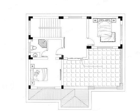
三層平面圖 三層:臥室(帶衛生間)、臥室 【戶型2】
戶型2效果圖 開間10米,建筑高度12.257米,采用磚混結構,主體造價30萬左右,一層設有3廳2臥2衛1廚,二層設有1廳2臥1陽臺1衛1露臺,三層設有2臥2衛1雜物間1露臺1陽臺。 戶型2室內布局
一層平面圖 一層:門廳、挑空客廳、臥室(帶衛生間)、餐廳、廚房、臥室、衛生間
二層平面圖 二層:起居室、露臺、臥室(帶陽臺)、臥室、衛生間
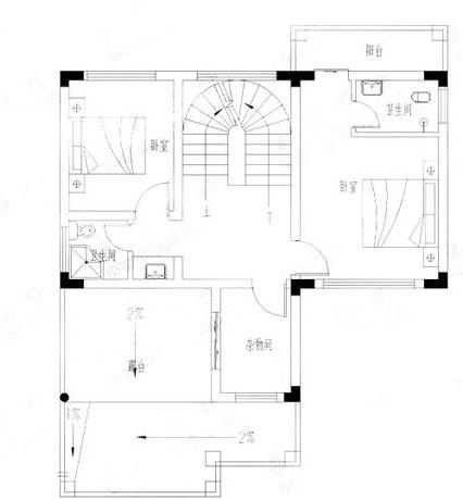
三層平面圖 三層:臥室(帶陽臺、衛生間)、臥室、雜物間、露臺、衛生間 圖紙之家-專注農村別墅/自建房設計18年,集合國內200余位經驗豐富的設計師,被評為口碑最好的農村建筑設計公司! |

130平左右三層樓房設計圖,新農村住宅自建推薦
占地:128平方米
造價30萬的三層簡歐新農村別墅設計施工圖紙及效果圖
占地:133平方米
16×12米二層歐式帶車庫農村小別墅,既舒適又美觀
占地:180平方米
農村二層L戶型農村別墅!設計圖簡約時尚又大氣,住著超舒適
占地:170.55平方米
歐式兩層別墅樓房設計圖紙施工方案,高端豪華外觀圖片
占地:138平方米
帶車庫的別墅設計圖紙,外觀效果圖二層半設計,全套建筑施工圖
占地:174平方米左右
簡單實用二層雙拼樓房設計圖,造價30萬左右
占地:180平方米
農村一層中式三合院別墅戶型圖,這才是適合中國人建的好房子
占地:218.77平方米
帶地下室設計三層自建房別墅設計圖,復式挑空客廳
占地:192平方米
造價65萬左右的三層歐式別墅房屋設計施工CAD圖紙及效果圖
占地:178平方米
歐式風格三層自建房設計圖,外觀高端大氣,彰顯業主的高貴品質
占地:180平方米
農村自建房三間設計圖,花錢少效果好12米乘9米,經濟適用性價比
占地:108.9平方米
農村二層樓房設計圖帶外觀圖片,造價20多萬,13.3x11
占地:146平方米
農村三層帶電梯小別墅設計施工圖,120平方米左右12.2x10.8米
占地:123平方米
私家二層農村自建房設計圖及效果圖,造價20萬左右
占地:125平方米
兩層半20多萬復式農村自建房設計圖,經典不過時戶型
占地:120平方米
二層自建房子最新款設計圖,平屋頂簡約經濟,美觀不失大方。
占地:115.64平方米
最新農村三層樓房設計圖紙,客廳中空,采用暖黃色為主色
占地:160平方米
新古典中式風格別墅設計圖,全套施工圖+效果圖
占地:188平方米
歐式小型二層別墅效果圖片,帶全套Cad別墅設計圖紙
占地:120平方米
推薦:10套新農村自建房設計圖,2026年最新設計
閱讀次數:4825737次
100套鄉村別墅圖片大全,2026年最新設計
閱讀次數:2492203次
6款農村蓋一層平房的設計圖,10萬元就能建起來
閱讀次數:1852637次
這11個一層農村自建房別墅火爆了朋友圈!我最喜歡戶型十!你呢
閱讀次數:750268次
農村6萬元建一層小別墅圖,你敢相信嗎
閱讀次數:567686次
農村5萬塊就能自建房,6套普通房子設計圖分享,你沒看錯!
閱讀次數:419410次
8套農村漂亮三間平房圖片,非常適合在農村修建!
閱讀次數:411197次
農村自建房化糞池怎么做?附方案及施工過程
閱讀次數:391783次
農村一層三間平房設計圖,告別土氣養老房,讓人忍不住點贊
閱讀次數:350581次
新農村二層樓房圖片造價12萬,挑一套回家建房吧!
閱讀次數:349126次
