
|
大家掙錢都不容易,所以錢一定要花在刀刃上。大家在老家宅基地上修建房子,一定要仔細思考、慎重決定,選擇一個在滿足自家需要的基礎上,選擇一個舒適方便的設計。下邊給大家介紹5套農村二層自建房,外形漂亮、結構也很合理,修建了一定能得到了大家的認可和贊揚! 第一套
正面效果圖
鳥瞰圖
背面效果圖
正面效果圖二 占地面積:16.8m*10.8m,占地180平方米左右; 建筑高度:10.4米(含屋頂); 設計功能: 一 層:客廳、餐廳、廚房、衛生間、臥室(衛生間)、茶室、儲藏間; 二 層:主臥(帶衛生間)、臥室×2、衛生間、棋牌室(帶衛生間)、露臺;
一層平面圖
二層平面圖 第二套
正面效果圖
鳥瞰圖 背面效果圖 占地面積:10.0m*11.8m,120平方米左右(包含門廊); 建筑高度:9.23米(含屋頂); 設計功能: 一 層:客廳、餐廳、廚房、臥室,儲藏間、衛生間; 二 層:臥室(帶衛生間)、臥室x2、書房、衛生間、屋面;
一層平面圖
二層平面圖 第三套
正面效果圖
鳥瞰圖
背面效果圖 占地面積:15.8m*12.5m,200平方米左右(不包含室外平臺); 建筑高度:10.2米(含屋頂); 設計功能: 一 層:玄關、客廳、餐廳、廚房、臥室(帶衛生間)、棋牌室、衛生間; 二 層:起居室、主臥(帶衛生間,衣帽間)、臥室(帶衛生間)、臥室×2、健身房、衛生間;
一層平面圖
二層平面圖 第四套
正面效果圖
鳥瞰圖
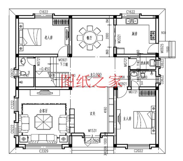
背面效果圖 占地面積:12.8m*11.8m,150平方米左右; 建筑高度:8.9米(含屋頂); 設計功能: 一 層:客廳、餐廳、廚房、主臥(帶衛生間)、老人房、衛生間、洗衣房; 二 層:客廳、主臥(帶衛生間)、客房、小孩房、書房、衛生間、露臺;
一層平面圖
二層平面圖 第五套
正面效果圖
鳥瞰圖
背面效果圖 占地面積:12.8m*8m,94平方米左右; 建筑高度:9.5米(含屋頂); 設計功能: 一 層:堂屋、客廳、餐廳、廚房、臥室、衛生間; 二 層:臥室x3、衛生間、陽臺、露臺;
一層平面圖
二層平面圖 這幾套別墅的設計圖,你最喜歡哪一套? 我們提供數千套自建別墅設計圖,讓您建房無憂。需要查看詳情或更多圖紙請關注【圖紙之家】或點擊下面圖片。 圖紙之家-專注農村別墅/自建房設計18年,集合國內200余位經驗豐富的設計師,被評為口碑最好的農村建筑設計公司! |

農村40萬房子圖片外觀設計效果圖,帶地下室,外觀時尚大氣
占地:110平方米
帶車庫農村二層樓房設計圖,外觀漂亮,精致
占地:154平方米
農村兩層新中式別墅圖紙設計圖,外觀圖片大氣,21萬左右
占地:108平方米
農村三層樓房圖造價26萬,客廳中空,占地90平米
占地:90平方米
農村四間兩層樓房設計圖,帶車庫,時尚經濟,最適合農村施工的
占地:180平方米
二層簡歐農房!經濟實惠+大氣耐看,20年后不落后
占地:120平方米
140平方米新農村三層房屋設計圖,磚混結構帶地下室
占地:138平方米左右
120平方米三層歐式別墅設計圖,進門就是旋轉樓梯
占地:119.76平方米
時尚漂亮的二層小洋樓設計圖,設計師建房都選這個方案
占地:149.27平方米
簡約現代的二層別墅自建房設計圖,13米乘9米
占地:124平方米
現代風格二層別墅設計圖,外觀時尚、大氣
占地:153平方米
時尚二層現代風別墅設計圖紙,平屋頂方案13×10米
占地:98平方米
260平方米兩層帶車庫四合院房屋設計圖紙及效果圖
占地:260平方米
新款現代一層小別墅設計圖,農村自建平房推薦戶型
占地:多戶型可選
農村兄弟雙拼二層四合院別墅設計圖,戶型左右對稱
占地:430平方米
人字坡房屋一層別墅設計圖,簡約低調超實用,、
占地:101.17平方米
歐式獨棟二層小別墅設計圖,客廳中空,占地126平米
占地:120平方米
三十萬農村別墅設計圖帶外觀圖片,30萬造價別墅展示
占地:125平方米
小戶型二層四合院別墅設計圖,含外觀效果圖,小宅基地選擇
占地:134平方米
新中式一層別墅設計圖紙,農村自建平房戶型方案圖
占地:183.7平方
推薦:10套新農村自建房設計圖,2026年最新設計
100套鄉村別墅圖片大全,2026年最新設計
閱讀次數:2492203次
6款農村蓋一層平房的設計圖,10萬元就能建起來
閱讀次數:1852637次
這11個一層農村自建房別墅火爆了朋友圈!我最喜歡戶型十!你呢
閱讀次數:750268次
農村6萬元建一層小別墅圖,你敢相信嗎
閱讀次數:567686次
農村5萬塊就能自建房,6套普通房子設計圖分享,你沒看錯!
閱讀次數:419410次
8套農村漂亮三間平房圖片,非常適合在農村修建!
閱讀次數:411197次
農村自建房化糞池怎么做?附方案及施工過程
閱讀次數:391783次
農村一層三間平房設計圖,告別土氣養老房,讓人忍不住點贊
閱讀次數:350581次
新農村二層樓房圖片造價12萬,挑一套回家建房吧!
閱讀次數:349126次
