
|
都說現在是農村自建房的盛行期,但有些人認為其實回農村自建房也不是那么容易的事情,第一家中沒有地,回去也沒用啊,現在的政策不允許買地了,第二,你有地也得看多大,現在的地得申請才能建,所以很多人家里的宅基地都很小,想建個豪宅是不可能了,建個小的顏值又跟不上,今天,小編就來幫大家解決這個問題,推薦的三款占地面積都沒過百,而且顏值還達標,想要建房的朋友可以作上參考喔! 農村別墅一: 基本信息 占地尺寸:10.4×8.9米, 占地面積:89.66平方米 建筑面積:174.61平方米 參考造價:15萬左右
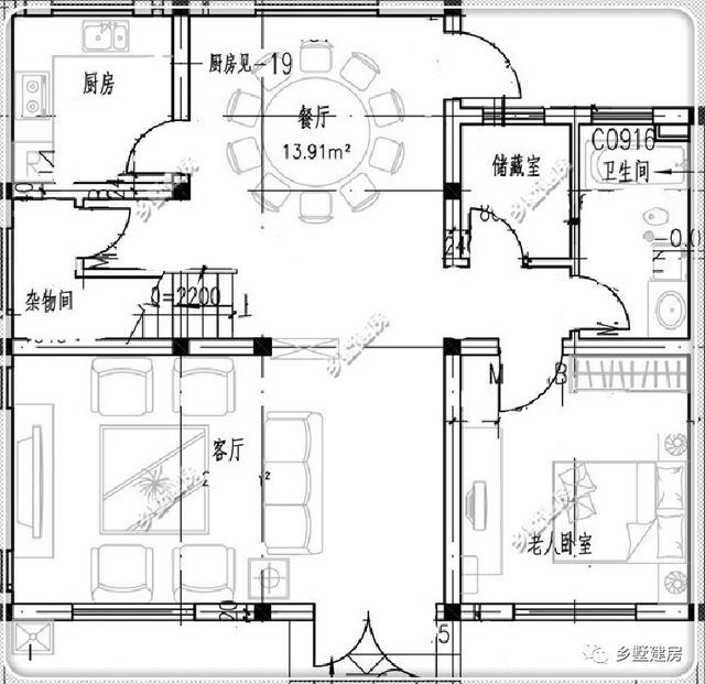
一層設有玄關、客廳、臥室、廚房、餐廳、餐廳、雜物間、儲藏室、衛生間。 進門的玄關可自行隔斷,現在農村建房用的最多的像是博古架就不錯,右側的老人臥室離衛生間近, 對老人有腿腳方便,儲藏室,儲藏室可放置一些雜物,但如果有人覺得樓梯下方的雜物間夠用了,這也可以改為棋牌室等娛樂空間,餐廳空間大,還在旁邊開了后門,對于農村來說,符合習性。
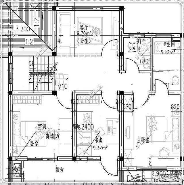
二層設有陽臺、客廳(臥室)、2臥室、書房、2衛生間。 客廳也可改為臥室,根據自己需要,主臥內設獨立衛生間,獨立書房與陽臺相鄰,采光好又通風。
農村別墅二: 基本信息 占地尺寸:9.8X11.1米 占地面積:86.29平方米 建筑面積:159.86平方米 結構類型:磚混結構 建筑層數:2層 毛坯造價:13萬左右
一層設有玄關、客廳、餐廳、廚房、臥室、衛生間、儲藏室。 客廳與餐廳同屬一空間,與城里的布局相同,吃飯時也同樣能看到電視,后門設計在樓梯口,十分方便,樓梯下方的空間設有儲藏室, 對于農村來說也是不可缺的設計。
二層設有2臥室、書房、衛生間、4陽臺。 一間臥室休息空間大,設有陽臺與衛生間相近,另一間則內設書房、小陽臺,學習空間內置,更用心。
農村別墅三: 基本信息 占地尺寸:10.76X7.96米 占地面積:90.2平方米 建筑面積:196.92平方米 結構類型:磚混結構 毛坯造價:16萬左右
一層設有玄關、臥室、廚房、餐廳、衛生間、客廳。 空間布局看起來很舒適,無論是作為房屋門面的進門處玄關,還是逢年過節來人幫廚需要的寬大的廚房,布局都很完美,餐廳所處位置空間較大,來人多可自行加桌。
二層設有3臥室、客廳、衛生間、陽臺。 二層的設計十分簡潔,但又不失大方,三間臥室大小相差無幾,一個主衛足夠二層使用,客廳與陽臺相鄰,不僅通風采光好,還多了一次休息娛樂空間,客廳對面的空閑位置也可以利用起來,做個開放式茶室也是不錯的選擇。
宅基地小的你們,還不收藏起來嗎? 圖紙之家-專注農村別墅/自建房設計18年,集合國內200余位經驗豐富的設計師,被評為口碑最好的農村建筑設計公司! |

新農村全套四層別墅設計圖紙占地面積:190平方米造價預算:42萬
占地:190平方米
小戶型二層四合院別墅設計圖,含外觀效果圖,小宅基地選擇
占地:134平方米
時尚大方的農村二層自建房屋設計圖紙,占地120平米左右
占地:120平米
大戶型三層別墅設計圖,高貴大氣,占地面積將近300平
占地:273.33平方米
鄉下120平米二層樓房設計圖,23萬就可以建漂亮別墅
占地:120平方米
帶車庫的新中式風格一層別墅設計圖,鳥語花香回家建房
占地:184平方米
超實用超現代兩層自建小樓圖,純粹極簡風格
占地:184平方米左右
120平方米農村漂亮實用的兩層別墅設計圖紙,含外觀圖片
占地:120平方米
經典小戶型二層新農村房屋設計圖紙,客廳中空,造價20萬
占地:94平方米
2026年新款一層住宅別墅設計圖紙,中式風格漂亮極了
占地:207平方米
160平方米二層平屋頂房屋設計圖紙及效果圖17x11米
占地:164平方米
二層小別墅設計方案圖,平頂設計帶cad施工圖和外觀效果圖
占地:147平方米
經典三層農村房屋設計圖紙,占地100平米左右,外觀典雅精致,內
占地:100平方米
簡單大氣的農村二層樓設計圖,二層歐式農村別墅設計圖
占地:180平方米
新中式高端豪宅三層別墅自建房設計圖,大戶型經典
占地:270平方米左右
300平大戶型豪華三層別墅設計圖,帶總統套房
占地:300平方米
2026年新款別墅外觀圖,新中式風格,比簡歐大氣,時尚
占地:135平方米
三層奢華歐式別墅圖片及全套設計圖,帶地下室和車庫
占地:208平方米左右
戶型方正的三層平頂小別墅設計圖,占地面積100平
占地:100.19平方米
私人二層農村小樓設計圖,外觀靚麗,富有現代氣息
占地:160平方米
推薦:10套新農村自建房設計圖,2026年最新設計
閱讀次數:4825737次
100套鄉村別墅圖片大全,2026年最新設計
閱讀次數:2492203次
6款農村蓋一層平房的設計圖,10萬元就能建起來
閱讀次數:1852637次
這11個一層農村自建房別墅火爆了朋友圈!我最喜歡戶型十!你呢
閱讀次數:750268次
農村6萬元建一層小別墅圖,你敢相信嗎
閱讀次數:567686次
農村5萬塊就能自建房,6套普通房子設計圖分享,你沒看錯!
閱讀次數:419410次
8套農村漂亮三間平房圖片,非常適合在農村修建!
閱讀次數:411197次
農村自建房化糞池怎么做?附方案及施工過程
閱讀次數:391783次
農村一層三間平房設計圖,告別土氣養老房,讓人忍不住點贊
閱讀次數:350581次
新農村二層樓房圖片造價12萬,挑一套回家建房吧!
閱讀次數:349126次
