
|
對于農村自建房來說,歐式風格、美式風格這些建筑風格已經司空見慣了,但是日式風格的二層小樓卻很少能看到。日式設計風格又稱“和風”或稱“和樣建筑”。日本建筑繼承了早期傳統神社和中國唐代建筑的特點,多采用歇山頂、深挑檐、架空地板、橫向木板壁外墻、檜樹皮葺屋頂這些特點。日式建筑講究空間的互通與分隔,互通則為一室,分隔則分幾個功能空間,多以實用至上,特別注重簡約。日式風格的房子從外觀看起來舒適幽靜,這種生活氛圍能讓人忘掉生活瑣事,放下疲憊,寧靜致遠。這里小編就給大家推薦一套日式農村二層房屋設計圖,希望大家能夠喜歡。
外觀是典型的日式風格,歇山頂、深挑檐、室外空間這些典型的日式元素一項都不缺,一層為橫向木板壁外墻搭配二層的白色漆面配上棕色的歇山頂,看起來寧靜優雅。
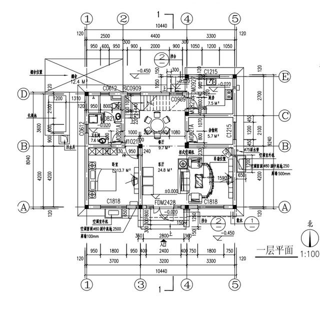
建筑占地面寬10.44米,進深9.24米。建筑占地面積約100平方米,磚混結構,主體造價不超過20萬。一層的設計功能有客廳、餐廳、老人房、衛生間、雜物間和廚房。
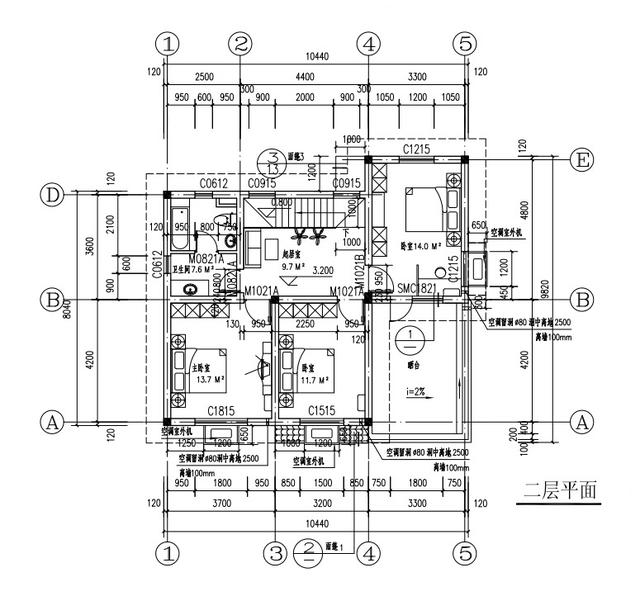
二層主要是休息空間,有三個臥室和一個起居室還有一個衛生間。除此之外還有一個很大面積的曬臺,這在農村是非常實用的,小資情調可以種花種草營造一個小花園的空間,同時也可以晾曬衣服和干菜。總體來說對于一個100平米小戶型的農村二層房屋設計圖能打造出4個臥室又有休閑娛樂空間是很合理實用的,強烈推薦! 圖紙之家-專注農村別墅/自建房設計18年,集合國內200余位經驗豐富的設計師,被評為口碑最好的農村建筑設計公司! |

鄉村最美四合院設計圖及外觀效果圖片,國人的理想住宅
占地:280.62平方米
農村二層半雙拼別墅設計圖,客廳中空,帶大露臺
占地:270平方米
時尚典雅歐式三層自建房設計圖,美觀大氣簡單舒適,好看到沒得
占地:153.12平方米
氣派的帶旋轉樓梯三層別墅房屋設計圖,戶型很好
占地:150平方米
新中式二層農村別墅設計圖紙及外觀圖,面寬15米左右
占地:148.86平方米
新農村三層房屋設計圖紙(含效果圖),農村小別墅圖紙推薦
占地:116.15平方米
簡歐漂亮農村二層別墅設計方案圖紙,12米乘9米
占地:多戶型可選
150平二層別墅房屋設計圖,現代風格,造型精致
占地:150平方米
面寬16米三層法式別墅設計圖,設計新穎別致,建成后美不勝收
占地:162.07平方米
農村三層帶車庫、帶露臺別墅設計圖,經典自建別墅設計方案
占地:160平方米
160平方米經典鄉村二層房屋設計圖紙
占地:160平方米
最美中式農村別墅二層三間的房子圖,帶土灶房,娛樂室,大露臺
占地:180平方米
四層雙拼豪華別墅設計圖及外觀效果圖,貴族氣質爆棚
占地:188.5平方米
一層農村自建房別墅設計方案,左右對稱布局好
占地:154平方米
獨棟別墅設計戶型圖帶外觀效果圖,雙向樓梯設計
占地:155平方米
農村最漂亮二層歐式別墅設計圖,面寬16.5米(含車庫)
占地:180.366
帶小院七字形一層自建房戶型設計圖,平屋頂圖紙
占地:201.08平方米
新中式小戶型二層別墅效果圖及全套施工設計圖,造價經濟實惠
占地:108平方米
二層復式雙拼別墅設計圖(客廳中空),含外觀效果圖
占地:195平方米
回村蓋一層養老房別墅設計圖紙,面寬16米四開間戶型圖
占地:127平方米左右
推薦:10套新農村自建房設計圖,2026年最新設計
閱讀次數:4825737次
100套鄉村別墅圖片大全,2026年最新設計
閱讀次數:2492203次
6款農村蓋一層平房的設計圖,10萬元就能建起來
閱讀次數:1852637次
這11個一層農村自建房別墅火爆了朋友圈!我最喜歡戶型十!你呢
閱讀次數:750268次
農村6萬元建一層小別墅圖,你敢相信嗎
閱讀次數:567686次
農村5萬塊就能自建房,6套普通房子設計圖分享,你沒看錯!
閱讀次數:419410次
8套農村漂亮三間平房圖片,非常適合在農村修建!
閱讀次數:411197次
農村自建房化糞池怎么做?附方案及施工過程
閱讀次數:391783次
農村一層三間平房設計圖,告別土氣養老房,讓人忍不住點贊
閱讀次數:350581次
新農村二層樓房圖片造價12萬,挑一套回家建房吧!
閱讀次數:349126次
