
|
這是一套現代時尚的別墅戶型。設計師多以豎線條做造型藝術,豎線條的柱子、豎線條的護欄、豎線條的防盜窗,宛若風琴一般充滿藝術的氣息,帶有很好的藝術裝飾的效果。一個坡屋頂的設計又恰到好處的避免了豎線條造型的單調感,給別墅帶來一點優美與靈動。
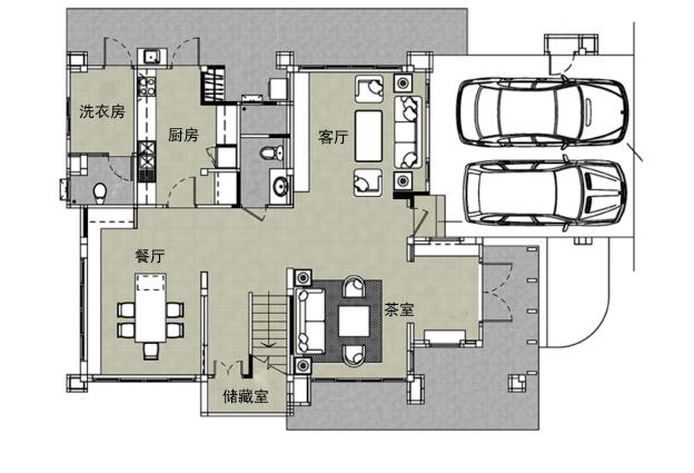
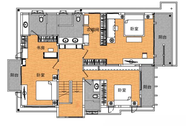
此別墅不僅外觀具有時尚感和現代感,它還內外兼修,擁有一個非常舒適的室內生活。我們不僅有客廳,還有茶室,我們可以哈哈大笑、談笑風生,也可以坐在靠窗戶的榻榻米上,靜靜地享受一個明媚的午后。 廚房、餐廳、洗衣房這些喧鬧的場地都交給了一層,那么安靜的區域當然就是有二層來承擔。自建建房子,住別墅不就是為了舒服嗎?那就在二層做三個臥室,并且全都是套間,什么書房、衣帽間、衛生間之類的樣樣齊全,就是算不上什么總統待遇,那五星級的待遇總算是夠了吧。
這套房子的設計就是這么的任性,不管你是不是會感覺有那么一點點的浪費,畢竟,人生來不只是為了受苦,還是來享受的。你說,對嗎? 圖紙之家-專注農村別墅/自建房設計18年,集合國內200余位經驗豐富的設計師,被評為口碑最好的農村建筑設計公司! |

帶配房的二層鄉村歐式別墅設計圖,尺寸15.84×13.84米
占地:149.19平方米
一層平屋頂自建房圖,簡單而舒適,既省錢不說還不愁沒地曬糧食
占地:106平方米
鄉下建房一層平房設計圖紙及戶型圖,占地150平米左右
占地:150平方米
獨棟別墅設計戶型圖帶外觀效果圖,雙向樓梯設計
占地:155平方米
90平-100平小戶型一層三間平房農村別墅設計圖方案戶型
占地:多戶型可選
旋轉樓梯挑空獨棟二層簡歐小別墅設計圖,大氣時尚
占地:189.26平方米
新中式二層農村小樓房設計圖,戶型圖方正,外觀大氣
占地:143平方米
130多平方米新農村三層別墅建筑設計圖及效果圖
占地:133平方米左右
農村三層別墅新款圖片及戶型設計圖紙大全,110平簡歐風格
占地:110平方米左右
后面帶小院的農村房屋設計圖,適合鄉村自建
占地:300平方米
豪華三層歐式風格別墅圖紙設計,挑空客廳大面寬大戶型
占地:225.72平方米
2026年新款別墅外觀圖,新中式風格,比簡歐大氣,時尚
占地:135平方米
農村兄弟合建一層雙拼房別墅圖,對稱設計,工整大方!
占地:170平方米
戳中年輕人喜好!時尚三層自建房,簡約時尚設計,住著舒適自然
占地:169.76平方米
80平方米農村四層房屋設計圖紙及效果圖
占地:80平方米
農村四間一層房屋設計圖,160平方米,用來養老正合適!
占地:160平方米
占地70平方米的三層獨棟別墅設計圖,小戶型自建房屋效果圖
占地:70平方米左右
114平方米農村四層別墅設計圖紙及效果圖,11X11米
占地:114平方米
二層復式小洋樓設計圖,外觀精致,戶型合理
占地:115平方米
鄉村自建獨棟三層別墅樓房設計圖,預算30萬內
占地:120平方米
推薦:10套新農村自建房設計圖,2026年最新設計
閱讀次數:4825737次
100套鄉村別墅圖片大全,2026年最新設計
閱讀次數:2492203次
6款農村蓋一層平房的設計圖,10萬元就能建起來
閱讀次數:1852637次
這11個一層農村自建房別墅火爆了朋友圈!我最喜歡戶型十!你呢
閱讀次數:750268次
農村6萬元建一層小別墅圖,你敢相信嗎
閱讀次數:567686次
農村5萬塊就能自建房,6套普通房子設計圖分享,你沒看錯!
閱讀次數:419410次
8套農村漂亮三間平房圖片,非常適合在農村修建!
閱讀次數:411197次
農村自建房化糞池怎么做?附方案及施工過程
閱讀次數:391783次
農村一層三間平房設計圖,告別土氣養老房,讓人忍不住點贊
閱讀次數:350581次
新農村二層樓房圖片造價12萬,挑一套回家建房吧!
閱讀次數:349126次
