占地面積:10.8m*10.7m,115平方米左右;
建筑層高:二層;
建筑高度:10.15米(含屋頂);
設計功能:
一層別墅戶型:客廳、餐廳、廚房、臥室(帶衣帽間或衛生間)、衛生間、娛樂室;
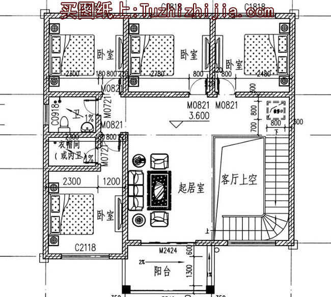
二層別墅戶型:起居室、主臥(衣帽間或衛生間)、臥室x3(一個臥室可以做書房)、衛生間;
圖紙目錄:
別墅建筑圖:建筑施工總說明、建筑構造設計說明、一層平面圖、二層平面圖、閣樓平面圖、屋頂平面圖、正立面圖、背立面圖、左立面圖、右立面圖、1-1剖面圖、樓梯大樣圖、節點詳圖、門窗表等;
別墅結構圖:結構設計總說明、基礎平面布置圖、基礎詳圖、一層頂板施工圖、客廳頂板施工圖、二層頂板施工圖、坡屋頂板施工圖、一層頂梁施工圖、二層頂梁施工圖、坡屋頂梁施工圖、樓梯施工圖、節點詳圖、坡屋面做法大樣圖等;
別墅給排水圖:給排水設計說明、一層給排水平面圖、二層給排水平面圖、閣樓給排水平面圖、屋頂給排水平面圖、衛生間大樣圖、給排水系統圖等;
別墅電氣圖:電氣設計說明、設備材料表、等電位聯結做法、配電系統圖、弱電系統圖、一層照明平面圖、二層照明平面圖、一層插座平面圖、二層插座平面圖、一層弱電平面圖、二層弱電平面圖、基礎接地平面圖、屋頂防雷平面圖等;
全套A3設計圖+高清效果圖,拿到即可施工!




































































































