圖紙介紹:14x12.5米二層農村別墅設計圖,布局完美獨立,顏值高又實用,房屋外觀線條設計簡約、外墻棕黃面磚與白色涂料兩色搭配簡單又大氣,通透的玻璃元素更顯居室敞亮,陽臺設計,進一步美化了居室的居住氛圍。室內布局簡單實用,五間臥室可以滿足一家四代人的居住需求,書房衣帽間的設計,給家人的生活帶來更多趣味。
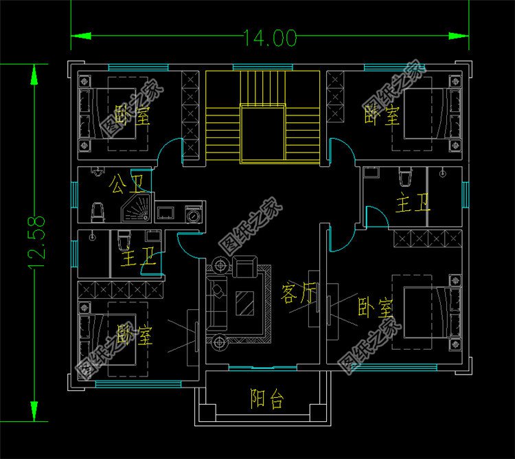
占地面積:14m*12.58m,153.95平方米;
建筑層高:二層;
建筑高度:10.664米(含屋頂);
設計功能:
一層戶型:客廳、廚房、餐廳、臥室(帶衛生間)、書房(衣帽間)、衛生間;
二層戶型:客廳、臥室(帶衛生間)x2、臥室x2、衛生間、陽臺;
圖紙目錄:
建 筑 圖:建筑設計說明、一層平面圖、二層平面圖、屋頂平面圖、正立面圖、背立面圖、左立面圖、右立面圖、1-1剖面圖、樓梯大樣圖、門斗大樣圖、節點大樣圖、門窗詳圖、門窗表等;
結 構 圖:結構設計說明、基礎平面布置圖、基礎大樣圖、一層梁結構平面圖、二層梁結構平面圖、屋頂梁結構平面圖、二層板結構平面圖、屋面板結構平面圖、樓梯大樣圖、節點大樣圖等;
給排水圖:給排水設計說明、一層給排水平面圖、二層給排水平面圖、屋頂給排水平面圖、衛生間大樣圖、給排水系統圖等;
電 氣 圖:電氣設計說明、配電系統圖、弱電系統圖、配電干線系統圖、一層照明平面圖、二層照明平面圖、一層插座平面圖、二層插座平面圖、一層弱電平面圖、二層弱電平面圖、接地平面圖、屋頂防雷平面圖等;
本套方案包含全套A3設計圖+彩色效果圖。

































































































