圖紙介紹:本戶型氣派的帶旋轉樓梯的三層別墅房屋設計圖,復式結構,帶大露臺,戶型很經典,設計師推薦。
占地面積:13.40m*11.8m,150平方米左右;
建筑層高:三層;
建筑高度:12.60米(含屋頂);
設計功能:
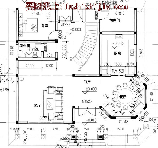
一 層:門廳、客廳、廚房、餐廳、衛生間、臥室、儲藏間;
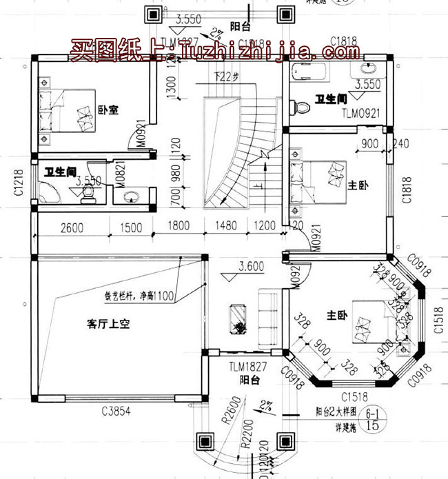
二 層:小客廳、主臥(帶衛生間)、臥室x2、衛生間、陽臺x2;
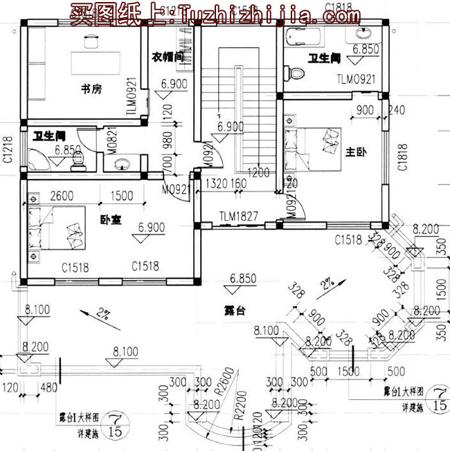
三 層:主臥(帶衛生間)、臥室、書房、衛生間、衣帽間、大露臺(屋頂花園);
圖紙目錄:
建 筑 圖:建筑設計說明、工程做法、一層平面圖、二層平面圖、三層平面圖、屋頂平面圖、正立面圖、背立面圖、左立面圖、右立面圖、1-1剖面圖、樓梯大樣圖、門斗大樣圖、節點大樣圖、門窗詳圖、門窗表等;
結 構 圖:結構設計總說明、基礎平面布置圖、基礎大樣圖、一層梁結構平面圖、二層梁結構平面圖、三層梁結構平面圖、屋頂梁結構平面圖、二層板結構平面圖、三層板結構平面圖、屋面板結構平面圖、樓梯大樣圖、節點大樣圖等;
給排水圖:給排水設計說明及圖例、一層給排水平面圖、二層給排水平面圖、三層給排水平面圖、屋頂給排水平面圖、衛生間大樣圖、給排水系統圖等;
電 氣 圖:電氣設計說明、電氣設備材料表、等電位聯結做法、配電系統圖、弱電系統圖、配電干線系統圖、一層照明平面圖、二層照明平面圖、三層照明平面圖、一層插座平面圖、二層插座平面圖、三層插座平面圖、一層弱電平面圖、二層弱電平面圖、三層弱電平面圖、接地平面圖、屋頂防雷平面圖等;
本套圖紙含全套A3設計圖+高清效果圖,拿到即可施工。

































































































